Flat A, 98 Lowden Road, Herne Hill, London, SE24 0BQ
SA

Flat A, 98 Lowden Road, Herne Hill, London, SE24 0BQ

By Savills

£ 250,000

Reviews

3 out of 5 stars

Savills says ..

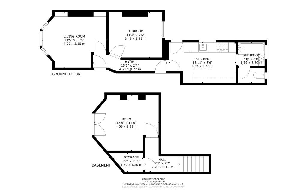
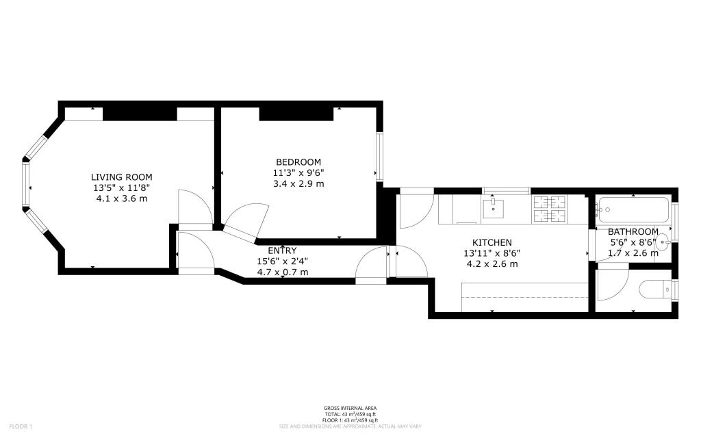
Auction Sale - 16/09/2025 - To book viewings, view the legal pack and register to bid please refer to the full sales particulars on the Savills Auctions website A one bedroom ground floor flat plus shared basement storage, benefiting from a private rear garden, in need of refurbishment, wel...

Property Oracle says ..

The property is a one-bedroom flat located on Lowden Road in Herne Hill, London. The area benefits from good transport links and proximity to schools. The property requires renovation, as evidenced by the dated kitchen and bathroom, as well as the general state of disrepair. The garden is overgrown and requires landscaping. The property is priced below the average for the area, which may represent an opportunity, considering the need for renovation.

Therefore, we give this property 6 / 10. *Disclaimer: This is our option and does constitute a recommendation or financial advice. Do your own research. *

Price
8
Condition
3
Location
7
Land
6
Bedrooms
1
Bathrooms
0

The heatmap indicates the level of crime in the area. The color of the heatmap indicates the crime severity and recency.

Metrics Year-on-Year

Average area value
795,417.00 £
Increased by 12.21 %
from 708,841.00 £
Average area rental value
2,268.00 £/mo
Decreased by 0.48 %
from 2,279.00 £/mo
Est rental Yield
3.42 %
Decreased by 11.40 %
from 3.86 %
Crime Rate
2.00 %
Unchanged by 0.00 %
from 2.00 %

Agent Activity

  • Savills created the listing.

Nearby Schools

NameTypeOfstedDistance
The Michael Tippett SchoolCommunity Special SchoolGood0.15 KM
Jessop Primary SchoolCommunity SchoolOutstanding0.19 KM
Jessop Primary School & Children'S CentreChildren's Centre0.19 KM
St Saviour'S Church Of England Primary SchoolVoluntary Aided SchoolGood0.42 KM
Ark Evelyn Grace AcademyAcademy Sponsor LedGood0.48 KM

Images

Flat A, 98 Lowden Road, Herne Hill, London, SE24 0BQ Flat A, 98 Lowden Road, Herne Hill, London, SE24 0BQ Flat A, 98 Lowden Road, Herne Hill, London, SE24 0BQ Flat A, 98 Lowden Road, Herne Hill, London, SE24 0BQ Flat A, 98 Lowden Road, Herne Hill, London, SE24 0BQ Flat A, 98 Lowden Road, Herne Hill, London, SE24 0BQ Flat A, 98 Lowden Road, Herne Hill, London, SE24 0BQ Flat A, 98 Lowden Road, Herne Hill, London, SE24 0BQ Flat A, 98 Lowden Road, Herne Hill, London, SE24 0BQ Flat A, 98 Lowden Road, Herne Hill, London, SE24 0BQ Flat A, 98 Lowden Road, Herne Hill, London, SE24 0BQ Flat A, 98 Lowden Road, Herne Hill, London, SE24 0BQ Flat A, 98 Lowden Road, Herne Hill, London, SE24 0BQ Flat A, 98 Lowden Road, Herne Hill, London, SE24 0BQ Flat A, 98 Lowden Road, Herne Hill, London, SE24 0BQ Flat A, 98 Lowden Road, Herne Hill, London, SE24 0BQ Flat A, 98 Lowden Road, Herne Hill, London, SE24 0BQ

Nearby Streets

NameAverage PriceAverage SqftDistance
Tram Close £ 000.00 KM
Railton Road £ 000.00 KM
Half Moon Lane £ 000.00 KM
Wickwood Street £ 000.00 KM
Deepdene Road £ 000.00 KM

Nearby Transport

NameNLCTLCDistance
Loughborough Junction5082LGJ0.71 KM
Herne Hill5066HNH0.83 KM
Denmark Hill5421DMK1.44 KM
North Dulwich5429NDL1.46 KM
Brixton5081BRX1.63 KM

Nearby Listings

AddressPriceTypeScoreDistance
Flat A, 98 Lowden Road, Herne Hill, London, SE24 0BQ £ 250,000BUY6 / 100.00 KM
Lowden Road, London, SE24 £ 725,000BUY8 / 100.01 KM
Lowden Road, London, SE24 £ 675,000BUY6 / 100.01 KM
Lowden Road, London, SE24 £ 750,000BUY6 / 100.01 KM
Fawnbrake Avenue, London, SE24 £ 1,850,000BUY7 / 100.08 KM

Nearby Properties

AddressPriceDistance
142 Lowden Road £ 915,0000.00 KM
138 Lowden Road £ 346,0000.00 KM
136 Lowden Road £ 310,0000.00 KM
100b Lowden Road £ 299,9500.00 KM
100a Lowden Road £ 750,5000.00 KM