ST
York Road, Woking, Surrey, GU22
By Stirling Ackroyd
£ 210,000
Reviews
3 out of 5 stars
Stirling Ackroyd says ..
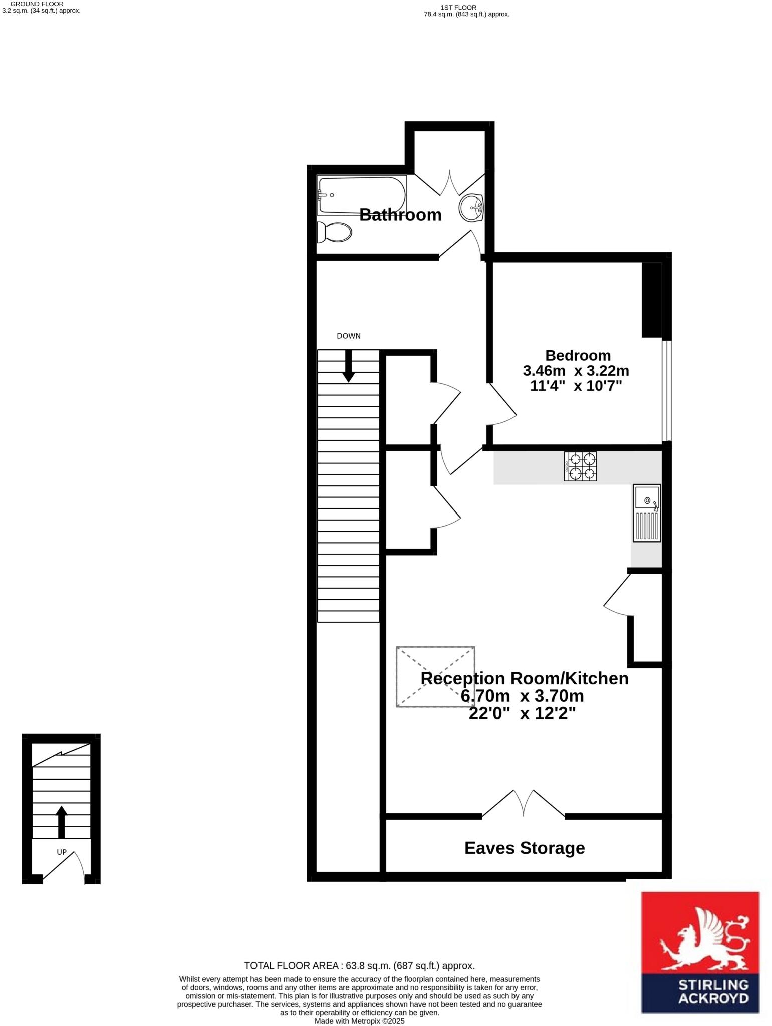
Located on the second floor of this beautiful Victorian conversion made up of just five apartments is this one double bedroom property, offered to the market with no onward chain. Entry to the property is available on the first floor, followed by a private staircase leading up to the ...
Property Oracle says ..
Therefore, we give this property 6 / 10. *Disclaimer: This is our option and does constitute a recommendation or financial advice. Do your own research. *
- Price
- 8
- Condition
- 5
- Location
- 7
- Land
- 4
- Bedrooms
- 1
- Bathrooms
- 1
- Sqft (est)
- 686.74
The heatmap indicates the level of crime in the area. The color of the heatmap indicates the crime severity and recency.
Metrics Year-on-Year
- Average area value
- 943,000.00 £Increased by 128.77 %
- Est sale value
- 326,201.50 £Decreased by 7.23 %
- Average area rental value
- 1,665.00 £/moDecreased by 14.57 %
- Est letting value
- 0.00 £/moDecreased by 100.00 %
- Est rental Yield
- 2.12 %Decreased by 62.61 %
- Crime Rate
- 2.00 %Unchanged by 0.00 %
from 412,198.00 £
from 351,610.88 £
from 1,949.00 £/mo
from 1,373.48 £/mo
from 5.67 %
from 2.00 %
Agent Activity
Stirling Ackroyd created the listing.
Nearby Schools
| Name | Type | Ofsted | Distance |
|---|---|---|---|
| North West Surrey Short Stay School | Pupil Referral Unit | Good | 0.59 KM |
| Barnsbury Primary School And Nursery | Academy Converter | Good | 0.80 KM |
| Goldsworth Primary School | Academy Converter | 0.91 KM | |
| Westfield Primary School | Academy Converter | 1.18 KM | |
| Hoe Valley School | Free Schools | Outstanding | 1.30 KM |
Images
Nearby Streets
| Name | Average Price | Average Sqft | Distance |
|---|---|---|---|
| Mount Hermon Road | £ 435,000 | 0 | 0.00 KM |
| Julian Close | £ 0 | 0 | 0.00 KM |
| Hurst Close | £ 1,100,000 | 0 | 0.00 KM |
| Lucerne Close | £ 0 | 0 | 0.00 KM |
| Swift Close | £ 0 | 0 | 0.00 KM |
Nearby Transport
| Name | NLC | TLC | Distance |
|---|---|---|---|
| Woking | 5685 | WOK | 1.70 KM |
| Worplesdon | 5686 | WPL | 2.75 KM |
| Brookwood | 5687 | BKO | 7.31 KM |
| London Road (Guildford) | 5632 | LRD | 7.77 KM |
| West Byfleet | 5684 | WBY | 7.82 KM |
Nearby Listings
| Address | Price | Type | Score | Distance |
|---|---|---|---|---|
| York Road, Woking, Surrey, GU22 | £ 210,000 | BUY | 6 / 10 | 0.00 KM |
| York Road, Woking, Surrey, GU22 | £ 215,000 | BUY | 6 / 10 | 0.01 KM |
| York Road, Woking, Surrey, GU22 | £ 210,000 | BUY | 6 / 10 | 0.01 KM |
| York Road, Woking, Surrey, GU22 | £ 205,000 | BUY | 6 / 10 | 0.02 KM |
| Azalea Court, Woking, Surrey, GU22 | £ 279,950 | BUY | 6 / 10 | 0.10 KM |
Nearby Properties
| Address | Price | Distance |
|---|---|---|
| 141 York Road | £ 859,260 | 0.01 KM |
| 110 York Road | £ 573,300 | 0.01 KM |
| 120 York Road | £ 822,500 | 0.01 KM |
| 102 York Road | £ 425,000 | 0.01 KM |
| 118 York Road | £ 362,500 | 0.01 KM |