Dale Road, Coalbrookdale, Telford, Shropshire
By Nock Deighton, Land and New Homes
£ 275,000
Reviews
4 out of 5 stars
Nock Deighton, Land and New Homes says ..
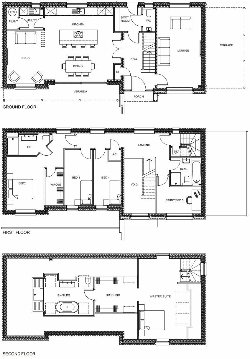
Full planning permission has been granted for the erection of this impressive detached residential dwelling near to where Coalbrookdale meets Ironbridge. The planning reference on Telford & Wrekin Council's planning portal is TWC/2021/1200 with the decision notice dated 25/05/2022.
Property Oracle says ..
This property is a new build located in Coalbrookdale, Telford. It is a large property with a modern design and is situated in a desirable location close to good schools and transport links. The property benefits from a good-sized garden. While the list price is above the average price per square foot for the area, it is in line with prices of similar properties in the immediate vicinity. The property appears to be of high quality and well-finished.
Therefore, we give this property 8 / 10. *Disclaimer: This is our option and does constitute a recommendation or financial advice. Do your own research. *
- Price
- 7
- Condition
- 10
- Location
- 9
- Land
- 8
- Bedrooms
- 0
- Bathrooms
- 0
- Sqft (est)
- 1,740.00
The heatmap indicates the level of crime in the area. The color of the heatmap indicates the crime severity and recency.
Metrics Year-on-Year
- Average area value
- 382,875.00 £Decreased by 13.12 %
- Est sale value
- 901,320.00 £Decreased by 4.43 %
- Average area rental value
- 1,824.00 £/moIncreased by 43.40 %
- Est letting value
- 3,480.00 £/moIncreased by 100.00 %
- Est rental Yield
- 5.72 %Increased by 65.32 %
- Crime Rate
- 4.00 %Unchanged by 0.00 %
Agent Activity
Nock Deighton, Land and New Homes created the listing.
Nearby Schools
| Name | Type | Ofsted | Distance |
|---|---|---|---|
| Aspris Telford School | Other Independent Special School | Good | 0.03 KM |
| Coalbrookdale And Ironbridge Cofe Primary School | Voluntary Aided School | Outstanding | 0.23 KM |
| Lightmoor Village Primary School | Community School | Good | 2.29 KM |
| Broseley Ce Primary School | Voluntary Controlled School | Good | 2.43 KM |
| Broseley Children'S Centre Delivery Point | Children's Centre Linked Site | 2.43 KM |
Images
Nearby Streets
| Name | Average Price | Average Sqft | Distance |
|---|---|---|---|
| Belle Vue Road | £ 0 | 0 | 0.00 KM |
| Woodlands Road | £ 0 | 0 | 0.00 KM |
| Saint Luke's Road | £ 299,950 | 0 | 0.00 KM |
| Chapel Road | £ 405,000 | 0 | 0.00 KM |
| Stoney Hill Roundabout | £ 0 | 0 | 0.00 KM |
Nearby Transport
| Name | NLC | TLC | Distance |
|---|---|---|---|
| Telford Central | 4691 | TFC | 7.88 KM |
| Wellington (Shropshire) | 4690 | WLN | 8.13 KM |
| Oakengates | 4689 | OKN | 8.25 KM |
Nearby Listings
| Address | Price | Type | Score | Distance |
|---|---|---|---|---|
| Dale Road, Coalbrookdale, Telford, Shropshire | £ 275,000 | BUY | 8 / 10 | 0.00 KM |
| Dale Rd, Coalbrookdale | £ 425,000 | BUY | 7 / 10 | 0.03 KM |
| Paradise, Coalbrookdale | £ 850,000 | BUY | 7 / 10 | 0.07 KM |
| Paradise, Coalbrookdale, TF8 | £ 320,000 | BUY | 6 / 10 | 0.09 KM |
| Paradise, Coalbrookdale, Telford, Shropshire. | £ 310,000 | BUY | 7 / 10 | 0.09 KM |
Nearby Properties
| Address | Price | Distance |
|---|---|---|
| 43 Paradise | £ 250,000 | 0.08 KM |
| 45 Paradise | £ 333,000 | 0.08 KM |
| 44 Paradise | £ 250,000 | 0.08 KM |
| 47 Paradise | £ 220,000 | 0.08 KM |
| Innwood | £ 445,000 | 0.09 KM |