MA
Green End, Yateley, Hampshire, GU46
By Mackenzie Smith
£ 425,000
Reviews
3 out of 5 stars
Mackenzie Smith says ..
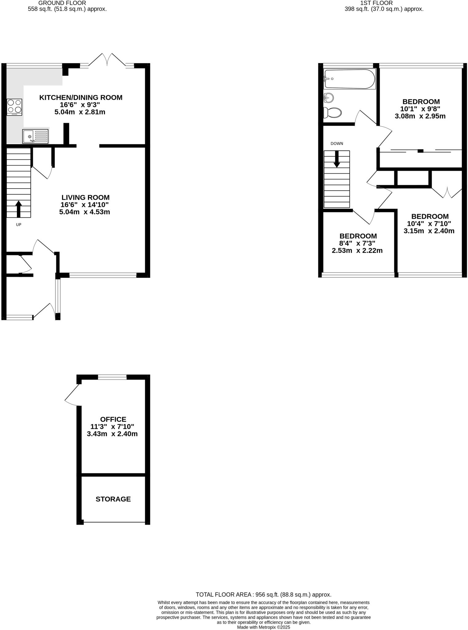
A well-presented three-bedroom terraced home situated in a quiet residential cul-de-sac close to local amenities and popular schools. There is an open plan kitchen/diner with some built in appliances, good sized private garden and the garage has been partially converted to provide a useful home o...
Property Oracle says ..
Therefore, we give this property 7 / 10. *Disclaimer: This is our option and does constitute a recommendation or financial advice. Do your own research. *
- Price
- 6
- Condition
- 8
- Location
- 7
- Land
- 7
- Bedrooms
- 3
- Bathrooms
- 1
- Sqft (est)
- 699.11
The heatmap indicates the level of crime in the area. The color of the heatmap indicates the crime severity and recency.
Metrics Year-on-Year
- Average area value
- 453,750.00 £Decreased by 10.46 %
- Est sale value
- 347,457.67 £Decreased by 1.78 %
- Average area rental value
- 1,675.00 £/moDecreased by 47.29 %
- Est letting value
- 699.11 £/moDecreased by 66.67 %
- Est rental Yield
- 4.43 %Decreased by 41.17 %
- Crime Rate
- 5.00 %Unchanged by 0.00 %
from 506,735.00 £
from 353,749.66 £
from 3,178.00 £/mo
from 2,097.33 £/mo
from 7.53 %
from 5.00 %
Agent Activity
Mackenzie Smith created the listing.
Nearby Schools
| Name | Type | Ofsted | Distance |
|---|---|---|---|
| Yateley Manor School | Other Independent School | 0.46 KM | |
| Cranford Park Primary | Voluntary Controlled School | Good | 0.79 KM |
| Woodlark And Water Lilies Children'S Centre | Children's Centre | 1.21 KM | |
| Yateley School | Community School | Good | 1.21 KM |
| Newlands Primary School | Community School | Good | 1.33 KM |
Images
Nearby Streets
| Name | Average Price | Average Sqft | Distance |
|---|---|---|---|
| Wyndham Close | £ 550,000 | 0 | 0.00 KM |
| The Crescent | £ 0 | 0 | 0.00 KM |
| St Peter's Gardens | £ 475,000 | 0 | 0.00 KM |
| Gale Close | £ 0 | 0 | 0.00 KM |
| Nutley Close | £ 500,000 | 0 | 0.00 KM |
Nearby Transport
| Name | NLC | TLC | Distance |
|---|---|---|---|
| Sandhurst (Berks) | 5646 | SND | 2.60 KM |
| Crowthorne | 5628 | CRN | 2.66 KM |
| Blackwater | 5625 | BAW | 5.84 KM |
| Fleet | 5522 | FLE | 6.00 KM |
| Wokingham | 5696 | WKM | 7.60 KM |
Nearby Listings
| Address | Price | Type | Score | Distance |
|---|---|---|---|---|
| Green End, Yateley, Hampshire, GU46 | £ 425,000 | BUY | 7 / 10 | 0.00 KM |
| Village Way, Yateley, Hampshire | £ 600,000 | BUY | Unknown | 0.11 KM |
| Village Way, Yateley | £ 600,000 | BUY | 6 / 10 | 0.11 KM |
| Bridge Walk, Yateley, Hampshire, GU46 | £ 550,000 | BUY | 7 / 10 | 0.12 KM |
| Driftways, Yateley, Hampshire, GU46 | £ 375,000 | BUY | 7 / 10 | 0.16 KM |
Nearby Properties
| Address | Price | Distance |
|---|---|---|
| 32 Firglen Drive | £ 345,000 | 0.04 KM |
| 14 Firglen Drive | £ 185,000 | 0.04 KM |
| 30 Firglen Drive | £ 415,000 | 0.04 KM |
| 10 Firglen Drive | £ 140,000 | 0.04 KM |
| 54 Firglen Drive | £ 387,500 | 0.04 KM |