Smalldale Cottages, Smalldale, Buxton
By Gascoigne Halman
£ 190,000
Reviews
3 out of 5 stars
Gascoigne Halman says ..
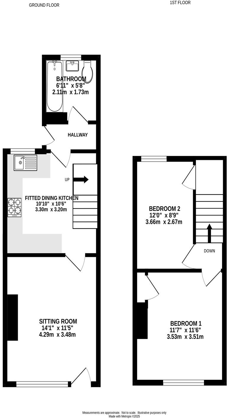
*** NO CHAIN *** A REFURBISHED AND UPGRADED stone terrace cottage which is located within a popular semi rural location with use of GARDENS and VIEWS front and rear. Ready to move into and offers excellent LIVING AND DINING/KITCHEN SPACES and TWO generous bedrooms. The pro...
Property Oracle says ..
Smalldale Cottages is a two-bedroom terraced property located in Smalldale, Buxton, Derbyshire. The property benefits from a recently modernised interior, with a new kitchen and bathroom. The property is situated in a quiet location with views of the surrounding countryside. The property is in good condition, with a modern kitchen and bathroom. The property has been recently renovated and is presented in excellent condition. The property has a small garden, which is enclosed by a fence. The garden is mostly lawn, with a few shrubs and trees. The list price of £190,000 seems reasonable given the condition of the property, its location, and the size of the garden. The average price for properties in the area is £295,393, but this is for larger properties. The average price per square foot in the area is £301, while this property is listed at a lower price per sqft. This could be due to the smaller plot size or the type of property. However, considering the recent modernisation and the good condition of the property, the asking price appears to be competitive within the local market. Nearby amenities include Peak Dale Primary School (rated ‘Good’ by Ofsted) and several train stations within a reasonable distance, providing convenient access to Buxton and other towns.
Therefore, we give this property 6 / 10. *Disclaimer: This is our option and does constitute a recommendation or financial advice. Do your own research. *
- Price
- 8
- Condition
- 9
- Location
- 7
- Land
- 3
- Bedrooms
- 2
- Bathrooms
- 1
- Sqft (est)
- 661.66
The heatmap indicates the level of crime in the area. The color of the heatmap indicates the crime severity and recency.
Metrics Year-on-Year
- Average area value
- 334,167.00 £Increased by 24.23 %
- Est sale value
- 170,046.62 £Decreased by 19.44 %
- Average area rental value
- 1,252.00 £/moIncreased by 4.33 %
- Est letting value
- 0.00 £/moDecreased by 100.00 %
- Est rental Yield
- 4.50 %Decreased by 15.89 %
- Crime Rate
- 26.00 %Unchanged by 0.00 %
Agent Activity
Gascoigne Halman created the listing.
Nearby Schools
| Name | Type | Ofsted | Distance |
|---|---|---|---|
| Peak Dale Primary School | Community School | Good | 1.69 KM |
| Dove Holes Cofe Primary School | Voluntary Controlled School | Good | 3.35 KM |
| Peak Forest Church Of England Voluntary Controlled Primary School | Voluntary Controlled School | Good | 3.53 KM |
| The Meadows | Other Independent Special School | Outstanding | 3.69 KM |
| Fairfield Endowed Cofe (C) Junior School | Voluntary Controlled School | Good | 5.61 KM |
Images
Nearby Streets
| Name | Average Price | Average Sqft | Distance |
|---|---|---|---|
| Lodes Lane | £ 0 | 0 | 0.00 KM |
| Highfields | £ 150,000 | 0 | 0.00 KM |
| Ferndale Road | £ 210,000 | 0 | 0.00 KM |
| New Street | £ 0 | 0 | 0.00 KM |
Nearby Transport
| Name | NLC | TLC | Distance |
|---|---|---|---|
| Dove Holes | 2766 | DVH | 3.69 KM |
| Buxton | 2946 | BUX | 7.13 KM |
| Chapel-En-Le-Frith | 2762 | CEF | 7.14 KM |
| Edale | 2824 | EDL | 9.18 KM |
Nearby Listings
| Address | Price | Type | Score | Distance |
|---|---|---|---|---|
| Smalldale Cottages, Smalldale, Buxton | £ 190,000 | BUY | 6 / 10 | 0.00 KM |
| Peak Dale, Buxton, Derbyshire, SK17 | £ 650,000 | BUY | 6 / 10 | 0.09 KM |
| Smalldale Cottages, Smalldale, Buxton | £ 185,000 | BUY | 7 / 10 | 0.09 KM |
| Smalldale Farm, Smalldale, Buxton | £ 399,950 | BUY | Unknown | 0.10 KM |
| Smalldale, Buxton | £ 425,000 | BUY | 6 / 10 | 0.11 KM |
Nearby Properties
| Address | Price | Distance |
|---|---|---|
| 22 Small Dale Cottages | £ 107,000 | 0.10 KM |
| 10 Small Dale Cottages | £ 122,500 | 0.10 KM |
| 34 Small Dale Cottages | £ 120,000 | 0.10 KM |
| 26 Small Dale Cottages | £ 109,895 | 0.10 KM |
| 14 Small Dale Cottages | £ 126,500 | 0.10 KM |