Langford Russell says ..
A rare opportunity to purchase a substantial split level first and second floor apartment within this imposing locally listed building in the Mavelstone Road Conservation area. Benefiting from a wealth of character with large, elegant rooms, many original features, private garden, garden room/off...
Property Oracle says ..
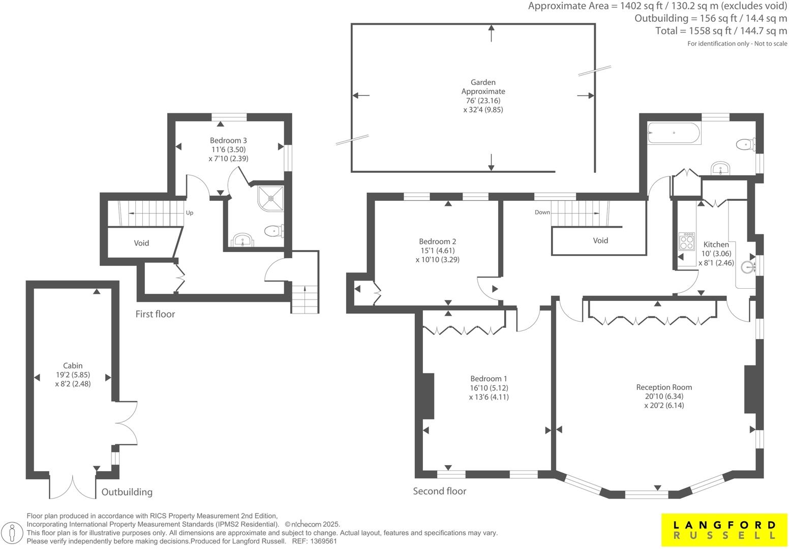
This is a three-bedroom apartment located on Mavelstone Road, Bickley, Bromley. The property offers 1,558 sqft of living space and is listed for £829,000. The apartment is situated in a desirable location, close to good schools and transportation links. While the property is generally in good condition, some areas could benefit from modernisation. The property includes a garden and a shed, adding to its appeal. The price per square foot is below the Bromley average, making it a reasonably priced property.
Therefore, we give this property 7 / 10. *Disclaimer: This is our option and does constitute a recommendation or financial advice. Do your own research. *
- Price
- 7
- Condition
- 7
- Location
- 8
- Land
- 7
- Bedrooms
- 3
- Bathrooms
- 1
- Sqft (est)
- 1,558.00
- Lot (est)
- 2,460.00
The heatmap indicates the level of crime in the area. The color of the heatmap indicates the crime severity and recency.
Metrics Year-on-Year
- Average area value
- 792,143.00 £Decreased by 2.39 %
- Est sale value
- 1,251,074.00 £Increased by 78.44 %
- Average area rental value
- 3,133.00 £/moIncreased by 38.32 %
- Est letting value
- 4,674.00 £/moIncreased by 200.00 %
- Est rental Yield
- 4.75 %Increased by 41.79 %
- Crime Rate
- 2.00 %Unchanged by 0.00 %
Agent Activity
Langford Russell created the listing.
Nearby Schools
| Name | Type | Ofsted | Distance |
|---|---|---|---|
| Bullers Wood School | Academy Converter | Outstanding | 0.55 KM |
| Bullers Wood School For Boys | Free Schools | 0.74 KM | |
| Bickley Park School | Other Independent School | 0.96 KM | |
| Breaside Preparatory School | Other Independent School | 0.97 KM | |
| Babington House School | Other Independent School | 1.18 KM |
Images
Nearby Streets
| Name | Average Price | Average Sqft | Distance |
|---|---|---|---|
| Little Redlands | £ 0 | 0 | 0.00 KM |
| St George's Road West | £ 0 | 0 | 0.00 KM |
| Harton Close | £ 0 | 0 | 0.00 KM |
| Elmbank Drive | £ 1,100,000 | 0 | 0.00 KM |
| St. Michael's Close | £ 800,000 | 0 | 0.00 KM |
Nearby Transport
| Name | NLC | TLC | Distance |
|---|---|---|---|
| Elmstead Woods | 5135 | ESD | 0.82 KM |
| Bickley | 5063 | BKL | 1.11 KM |
| Chislehurst | 5099 | CIT | 1.66 KM |
| Sundridge Park | 5155 | SUP | 2.43 KM |
| Bromley North | 5096 | BMN | 2.89 KM |
Nearby Listings
| Address | Price | Type | Score | Distance |
|---|---|---|---|---|
| Mavelstone Road, Bromley | £ 829,000 | BUY | 7 / 10 | 0.00 KM |
| Mavelstone Road, Bromley | £ 890,000 | BUY | Unknown | 0.00 KM |
| Manor Place, Mavelstone Road, Bickley, BR1 | £ 500,000 | BUY | 7 / 10 | 0.07 KM |
| Mavelstone Road, Bromley, Kent, BR1 | £ 799,950 | BUY | Unknown | 0.09 KM |
| Mavelstone Close, Bromley, BR1 | £ 1,800,000 | BUY | 7 / 10 | 0.14 KM |
Nearby Properties
| Address | Price | Distance |
|---|---|---|
| Manor Cottage | £ 366,000 | 0.03 KM |
| 8 Mavelstone Road | £ 985,000 | 0.03 KM |
| 34 Mavelstone Road | £ 990,000 | 0.03 KM |
| 4 Mavelstone Road | £ 670,000 | 0.03 KM |
| 36 Mavelstone Road | £ 935,000 | 0.03 KM |