Bloomfield Close, Knaphill, Woking, Surrey, GU21
By Seymours Estate Agents
£ 425,000
Reviews
3 out of 5 stars
Seymours Estate Agents says ..
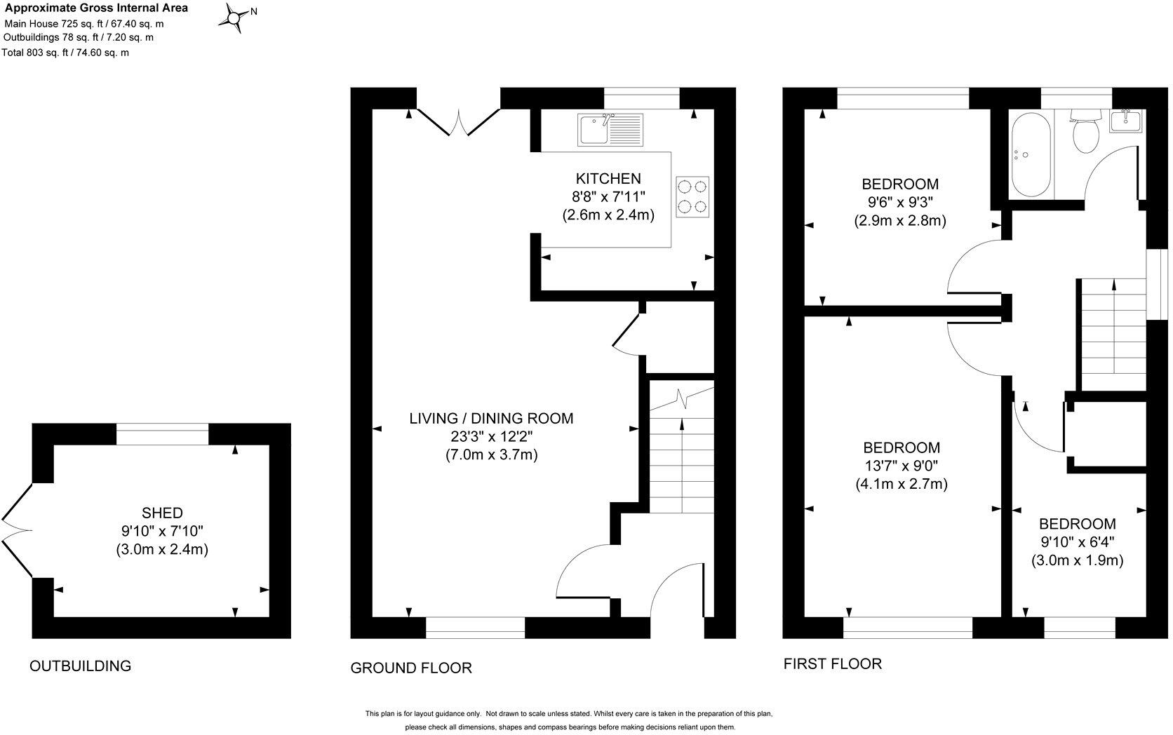
A semi detached family home, located in popular cul de sac in Knaphill, within easy reach of a number of local schools and bus links that offer easy access to Woking Town Centre. The property is well presented throughout and provides accommodation to include a spacious front aspect lou...
Property Oracle says ..
This property is a 3-bedroom semi-detached house located in Knaphill, Woking. The location benefits from being relatively close to several schools, including St John’s Primary School and The Winston Churchill School, both within a 1km radius. There are also several train stations within a reasonable distance, providing convenient access to commuting routes. The property itself appears to be in good condition based on the images provided. The interior is modern and well-maintained, with a recently updated kitchen and bathroom. The property includes a small garden, which is a desirable feature for many buyers. While the plot size is not specified, the garden appears manageable. The list price of £425,000 is slightly above the average price for the area (£374,740), but considering the property’s condition and proximity to amenities, it seems relatively reasonable. The average price per square foot in the area is £373, and while the property’s square footage is lower than the average, the overall package of condition, location, and amenities may justify the slightly higher price. More information on the plot size would help to refine this assessment.
Therefore, we give this property 7 / 10. *Disclaimer: This is our option and does constitute a recommendation or financial advice. Do your own research. *
- Price
- 7
- Condition
- 8
- Location
- 7
- Land
- 6
- Bedrooms
- 3
- Bathrooms
- 1
- Sqft (est)
- 802.99
The heatmap indicates the level of crime in the area. The color of the heatmap indicates the crime severity and recency.
Metrics Year-on-Year
- Average area value
- 384,737.00 £Decreased by 1.20 %
- Est sale value
- 326,816.93 £Increased by 15.95 %
- Average area rental value
- 1,963.00 £/moIncreased by 39.81 %
- Est letting value
- 1,605.98 £/moIncreased by 100.00 %
- Est rental Yield
- 6.12 %Increased by 41.34 %
- Crime Rate
- 11.00 %Unchanged by 0.00 %
Agent Activity
Seymours Estate Agents created the listing.
Nearby Schools
| Name | Type | Ofsted | Distance |
|---|---|---|---|
| St John'S Primary School And Sure Start Children'S Centre | Children's Centre | 0.33 KM | |
| St John'S Primary School | Academy Sponsor Led | Requires improvement | 0.33 KM |
| The Winston Churchill School A Specialist Sports College | Foundation School | Good | 0.65 KM |
| Beaufort Primary School | Academy Converter | Good | 0.90 KM |
| The Oaktree School | Academy Converter | 0.91 KM |
Images
Nearby Streets
| Name | Average Price | Average Sqft | Distance |
|---|---|---|---|
| Beechwood Close | £ 0 | 0 | 0.00 KM |
| Robin Hood Roundabout cycle path | £ 0 | 0 | 0.00 KM |
| Lockfield Drive cycle path | £ 0 | 0 | 0.00 KM |
| Oakway | £ 475,000 | 0 | 0.00 KM |
| Oakwood Road | £ 0 | 0 | 0.00 KM |
Nearby Transport
| Name | NLC | TLC | Distance |
|---|---|---|---|
| Brookwood | 5687 | BKO | 3.74 KM |
| Worplesdon | 5686 | WPL | 4.03 KM |
| Woking | 5685 | WOK | 5.30 KM |
| Longcross | 5674 | LNG | 7.61 KM |
| Sunningdale | 5671 | SNG | 8.84 KM |
Nearby Listings
| Address | Price | Type | Score | Distance |
|---|---|---|---|---|
| Bloomfield Close, Knaphill, Woking, Surrey, GU21 | £ 425,000 | BUY | 7 / 10 | 0.00 KM |
| Bloomfield Close, Knaphill | £ 375,000 | BUY | 7 / 10 | 0.08 KM |
| Alma Close, Knaphill, Woking, GU21 | £ 389,950 | BUY | 6 / 10 | 0.09 KM |
| Highview, Mulgrave Way, Knaphill, Woking, GU21 | £ 86,000 | BUY | 6 / 10 | 0.10 KM |
| Bloomfield Close, Knaphill, Woking, Surrey, GU21 | £ 499,950 | BUY | 7 / 10 | 0.14 KM |
Nearby Properties
| Address | Price | Distance |
|---|---|---|
| 9 Bloomfield Close | £ 280,000 | 0.07 KM |
| 45 Bloomfield Close | £ 288,000 | 0.07 KM |
| 42 Bloomfield Close | £ 485,000 | 0.07 KM |
| 53 Bloomfield Close | £ 188,500 | 0.07 KM |
| 17 Bloomfield Close | £ 243,500 | 0.07 KM |