Doddington Road, Benwick, March
By Maxey Grounds
£ 425,000
Reviews
3 out of 5 stars
Maxey Grounds says ..
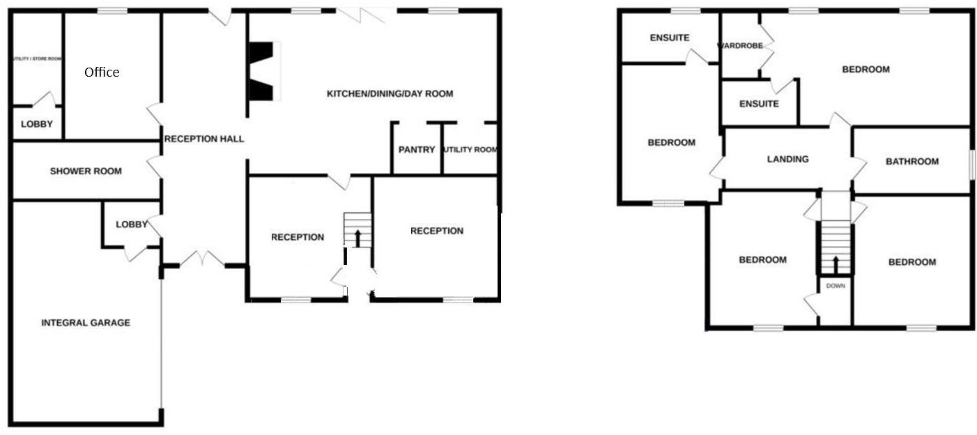
**GUIDE PRICE £425,000 - £450,000** The Stylishly Renovated Village Farmhouse Situated In The Semi Rural Village of Benwick Offers Live Space Consisting Of Up To Five Double Bedrooms, Four Bathrooms, Multiple Reception Rooms Plus a Generous Open Plan kitchen-Diner-Day Room With Ing...
Property Oracle says ..
This property is a 5 bedroom detached house located in Benwick, Cambridgeshire. It benefits from a large garden and has been recently renovated to a high standard. The property is well presented and offers spacious accommodation throughout. The location is peaceful yet convenient, with local amenities within easy reach. While the average price per square foot in the area is £312, this property is listed at a price that reflects its size, condition, and desirable features. Given the recent renovations, the property appears to be in excellent condition. The large garden is a significant asset, adding to the overall value of the property. The location is also a positive factor, with access to local schools and amenities. The list price of £425,000 is in line with comparable properties in the area.
Therefore, we give this property 7 / 10. *Disclaimer: This is our option and does constitute a recommendation or financial advice. Do your own research. *
- Price
- 7
- Condition
- 9
- Location
- 7
- Land
- 8
- Bedrooms
- 5
- Bathrooms
- 3
- Sqft (est)
- 1,800.00
The heatmap indicates the level of crime in the area. The color of the heatmap indicates the crime severity and recency.
Metrics Year-on-Year
- Average area value
- 257,476.00 £Increased by 20.60 %
- Est sale value
- 883,800.00 £Increased by 49.24 %
- Average area rental value
- 1,276.00 £/moIncreased by 2.82 %
- Est letting value
- 3,600.00 £/moIncreased by 100.00 %
- Est rental Yield
- 5.95 %Decreased by 14.76 %
- Crime Rate
- 9.00 %Unchanged by 0.00 %
Agent Activity
Maxey Grounds created the listing.
Nearby Schools
| Name | Type | Ofsted | Distance |
|---|---|---|---|
| Benwick Primary School | Community School | Requires improvement | 0.96 KM |
| Chatteris Child And Family Centre | Children's Centre | 8.10 KM | |
| Kingsfield Primary School | Academy Sponsor Led | Special Measures | 8.23 KM |
| Lionel Walden Primary School | Community School | Good | 9.15 KM |
| Cromwell Community College | Academy Converter | Good | 9.42 KM |
Images
Nearby Streets
| Name | Average Price | Average Sqft | Distance |
|---|---|---|---|
| The Old Orchard | £ 0 | 0 | 0.00 KM |
Nearby Listings
| Address | Price | Type | Score | Distance |
|---|---|---|---|---|
| Doddington Road, Benwick, March | £ 425,000 | BUY | 7 / 10 | 0.00 KM |
| Doddington Road, Benwick, MARCH | £ 200,000 | BUY | 6 / 10 | 0.01 KM |
| Doddington Road, Benwick | £ 265,000 | BUY | 7 / 10 | 0.01 KM |
| Doddington Road, Benwick, MARCH | £ 240,000 | BUY | 7 / 10 | 0.01 KM |
| Doddington Road, Benwick, March | £ 120,000 | BUY | 4 / 10 | 0.01 KM |
Nearby Properties
| Address | Price | Distance |
|---|---|---|
| 28a Doddington Road | £ 283,000 | 0.01 KM |
| 24 Doddington Road | £ 207,000 | 0.01 KM |
| 15 Doddington Road | £ 167,000 | 0.01 KM |
| 23 Doddington Road | £ 150,000 | 0.01 KM |
| 34 Doddington Road | £ 246,000 | 0.01 KM |