Upper Milton, a mile from Wells
By Roderick Thomas
£ 2,250,000
Reviews
3 out of 5 stars
Roderick Thomas says ..
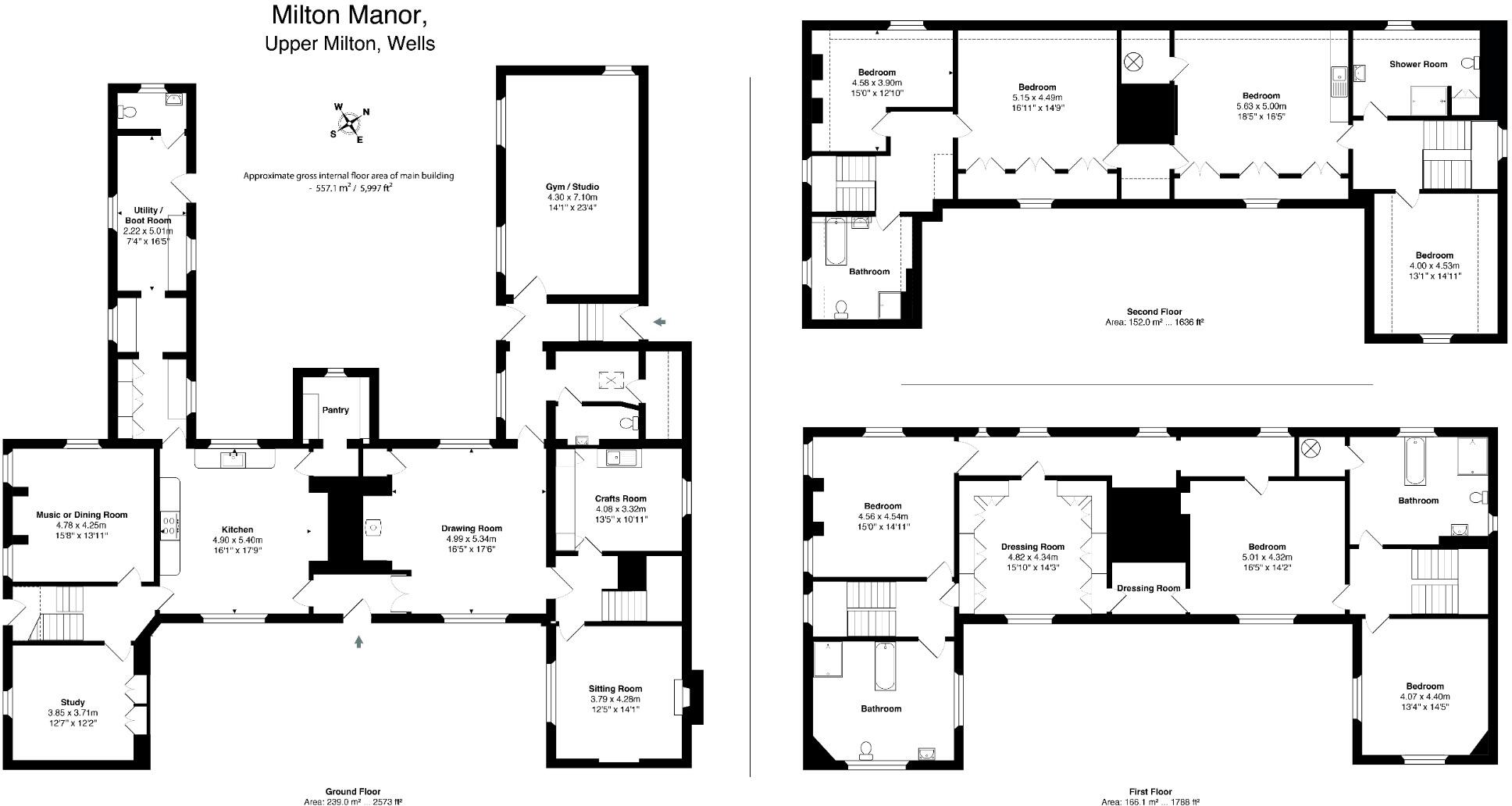
A sublime 17th century manor house, with 25 acre of woodland & meadows, spectacular views & a peaceful setting within a few minutes’ drive of the Cathedral City of Wells.
Property Oracle says ..
This detached property, located a mile from Wells in Somerset, presents a unique opportunity for buyers seeking a substantial family home with extensive land. The house features seven bedrooms and four bathrooms, offering ample space for a large family or those who enjoy hosting guests. The property retains many of its original features, adding to its character and charm.
The location offers a blend of rural living and accessibility to nearby amenities in Wells. Several schools are within a reasonable distance, making it an attractive option for families with children. The property’s extensive land includes gardens, fields, and woodland, providing privacy and opportunities for outdoor activities.
While the property appears to be in generally good condition, some areas may benefit from modernization to suit contemporary tastes. The price is relatively high compared to other properties in the area, but the extensive land and unique features may justify the investment for the right buyer. Overall, this property offers a desirable combination of space, character, and location in the sought-after area of Somerset.
Therefore, we give this property 7 / 10. *Disclaimer: This is our option and does constitute a recommendation or financial advice. Do your own research. *
- Price
- 6
- Condition
- 7
- Location
- 7
- Land
- 9
- Bedrooms
- 7
- Bathrooms
- 4
The heatmap indicates the level of crime in the area. The color of the heatmap indicates the crime severity and recency.
Metrics Year-on-Year
- Average area value
- 475,000.00 £Increased by 2.81 %
- Average area rental value
- 1,350.00 £/moIncreased by 1.35 %
- Est rental Yield
- 3.41 %Decreased by 1.45 %
- Crime Rate
- 1.00 %Unchanged by 0.00 %
Agent Activity
Roderick Thomas created the listing.
Nearby Schools
| Name | Type | Ofsted | Distance |
|---|---|---|---|
| The Blue School | Academy Converter | Good | 1.29 KM |
| Stoberry Park School | Community School | Good | 1.50 KM |
| Wells Cathedral School | Other Independent School | 1.51 KM | |
| St Cuthbert'S Cofe Junior School | Voluntary Controlled School | Requires improvement | 2.31 KM |
| Wells Building | Children's Centre Linked Site | 2.35 KM |
Images
Nearby Streets
| Name | Average Price | Average Sqft | Distance |
|---|---|---|---|
| Kennion Road | £ 239,950 | 0 | 0.00 KM |
| Montery Close | £ 0 | 0 | 0.00 KM |
| Wookey Hole Road | £ 580,000 | 0 | 0.00 KM |
| Davies Court | £ 0 | 0 | 0.00 KM |
| Melrose Court | £ 0 | 0 | 0.00 KM |
Nearby Listings
| Address | Price | Type | Score | Distance |
|---|---|---|---|---|
| Upper Milton, a mile from Wells | £ 2,250,000 | BUY | 7 / 10 | 0.00 KM |
| Manor house (with land) near Wells | £ 2,250,000 | BUY | 7 / 10 | 0.00 KM |
| Upper Milton, Wells, Somerset, BA5 | £ 2,500,000 | BUY | 8 / 10 | 0.03 KM |
| A mile from Wells, up on the Mendips | £ 1,275,000 | BUY | Unknown | 0.16 KM |
| Upper Milton, Wells, BA5 | £ 950,000 | BUY | 6 / 10 | 0.38 KM |
Nearby Properties
| Address | Price | Distance |
|---|---|---|
| Ridgeway | £ 376,000 | 0.16 KM |
| Tynings | £ 795,000 | 0.26 KM |
| 1 Reservoir Lane | £ 480,000 | 0.69 KM |
| 3 Reservoir Lane | £ 615,000 | 0.72 KM |
| 53 Milton Lane | £ 875,000 | 0.90 KM |