Danebank Mews, Denton, Manchester, M34 2JN
By Visum
£ 290,000
Reviews
3 out of 5 stars
Visum says ..
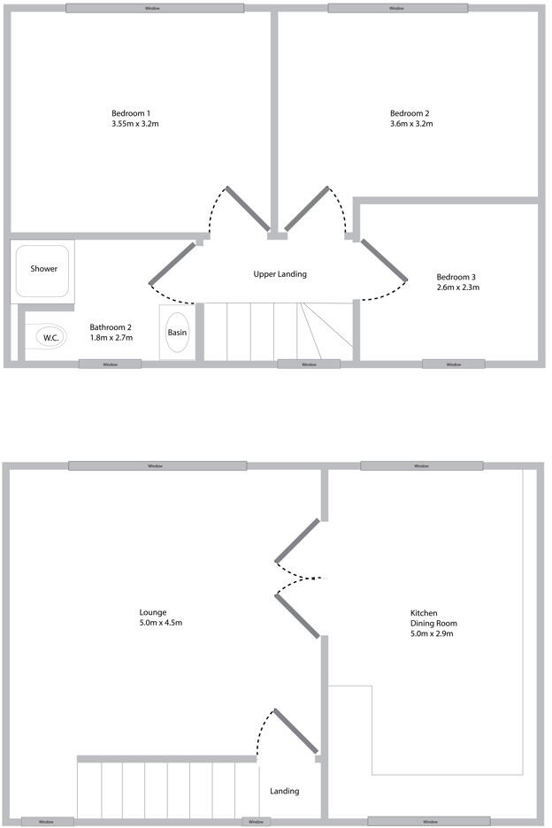
Property number 52234. DANEBANK, DENTON. THREE BEDROOM/ TWO BATHROOM/ MEWS HOUSEBuilt in 1990, this modern three storey townhouse is in Dane Bank, a popular area of Denton. Near Junction 24 of the M60 with great access via road to Manchester City Centre (approx 7 miles) this property benefits fro...
Property Oracle says ..
Therefore, we give this property 6 / 10. *Disclaimer: This is our option and does constitute a recommendation or financial advice. Do your own research. *
- Price
- 6
- Condition
- 7
- Location
- 7
- Land
- 6
- Bedrooms
- 3
- Bathrooms
- 2
- Sqft (est)
- 787.38
- Lot (est)
- 347.14
The heatmap indicates the level of crime in the area. The color of the heatmap indicates the crime severity and recency.
Metrics Year-on-Year
- Average area value
- 316,500.00 £Increased by 22.65 %
- Est sale value
- 286,606.32 £Increased by 25.95 %
- Average area rental value
- 1,190.00 £/moIncreased by 14.20 %
- Est letting value
- 787.38 £/moUnchanged by 0.00 %
- Est rental Yield
- 4.51 %Decreased by 7.01 %
- Crime Rate
- 0.00 %
from 258,043.00 £
from 227,552.82 £
from 1,042.00 £/mo
from 787.38 £/mo
from 4.85 %
from 0.00 %
Agent Activity
Visum created the listing.
Nearby Schools
| Name | Type | Ofsted | Distance |
|---|---|---|---|
| Denton West End Primary School | Academy Converter | Good | 0.91 KM |
| Dane Bank Primary School | Academy Converter | 1.29 KM | |
| Vale View Primary School | Community School | Good | 1.64 KM |
| Reddish Hall School | Other Independent Special School | Good | 2.00 KM |
| Denton Community College | Community School | Good | 2.15 KM |
Images
Nearby Streets
| Name | Average Price | Average Sqft | Distance |
|---|---|---|---|
| Rydal Close | £ 257,500 | 0 | 0.00 KM |
| Thompson Close | £ 300,000 | 0 | 0.00 KM |
| Coniston Close | £ 252,500 | 0 | 0.00 KM |
| Derwent Close | £ 343,750 | 0 | 0.00 KM |
| Kent Road | £ 262,990 | 0 | 0.00 KM |
Nearby Transport
| Name | NLC | TLC | Distance |
|---|---|---|---|
| Denton | 2855 | DTN | 1.01 KM |
| Reddish North | 2979 | RDN | 1.96 KM |
| Brinnington | 2603 | BNT | 2.13 KM |
| Fairfield | 2780 | FRF | 2.40 KM |
| Reddish South | 2857 | RDS | 2.79 KM |
Nearby Listings
| Address | Price | Type | Score | Distance |
|---|---|---|---|---|
| Danebank Mews, Denton, Manchester, M34 2JN | £ 290,000 | BUY | 6 / 10 | 0.00 KM |
| Danebank Mews, Denton | £ 150,000 | BUY | 6 / 10 | 0.01 KM |
| Rydal Close, Denton, Manchester | £ 260,000 | BUY | 5 / 10 | 0.11 KM |
| Rydal Close, Denton, M34 2FL | £ 315,000 | BUY | 7 / 10 | 0.11 KM |
| Rydal Close, Denton, Manchester, Greater Manchester, M34 | £ 270,000 | BUY | 6 / 10 | 0.13 KM |
Nearby Properties
| Address | Price | Distance |
|---|---|---|
| 29 Danebank Mews | £ 170,000 | 0.00 KM |
| 18 Danebank Mews | £ 142,000 | 0.00 KM |
| 43 Danebank Mews | £ 230,000 | 0.00 KM |
| 35 Danebank Mews | £ 72,950 | 0.00 KM |
| 2 Danebank Mews | £ 156,000 | 0.00 KM |