Yopa says ..
A spacious, well appointed traditional extended bay fronted 3 bedroom detached house, ideal for a young and growing family, with a large private rear garden , off road parking and garage. **BOOK A VIEWING 24/7 AT YOPA.CO.UK**
Property Oracle says ..
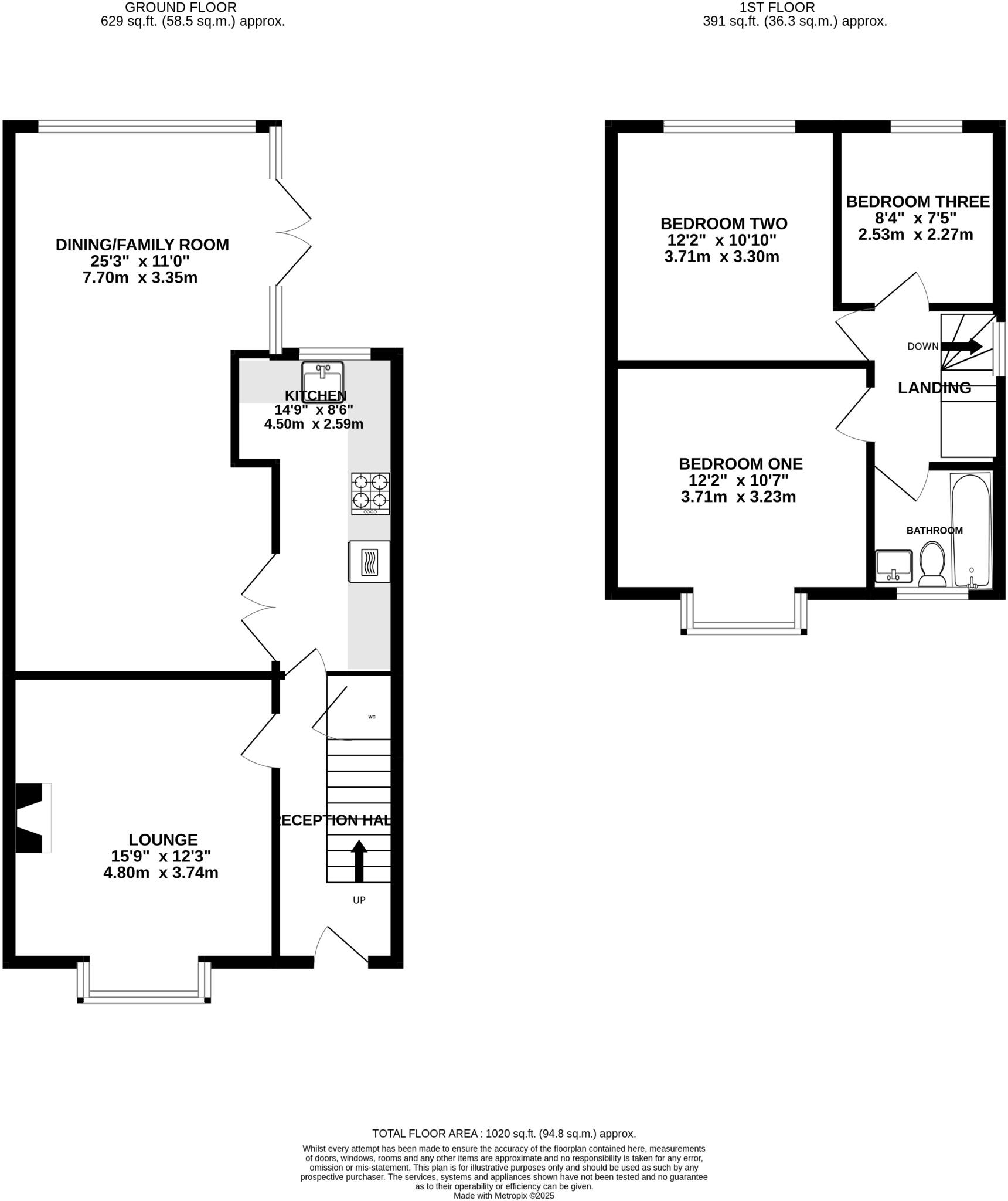
This is a three-bedroom detached house on Finlay Road, Gloucester. The property benefits from a modern kitchen and bathroom, and a conservatory. The location is reasonably convenient, with a school and train station nearby. The garden is of average size and the property appears to be in generally good condition, although some areas could benefit from cosmetic improvements. The asking price of £365,000 may be slightly high compared to the average price in the area.
Therefore, we give this property 6 / 10. *Disclaimer: This is our option and does constitute a recommendation or financial advice. Do your own research. *
- Price
- 5
- Condition
- 7
- Location
- 7
- Land
- 6
- Bedrooms
- 3
- Bathrooms
- 1
- Sqft (est)
- 923.01
The heatmap indicates the level of crime in the area. The color of the heatmap indicates the crime severity and recency.
Metrics Year-on-Year
- Average area value
- 290,495.00 £Decreased by 11.63 %
- Est sale value
- 299,978.25 £Increased by 0.31 %
- Average area rental value
- 1,124.00 £/moIncreased by 4.46 %
- Est letting value
- 923.01 £/moUnchanged by 0.00 %
- Est rental Yield
- 4.64 %Increased by 18.07 %
- Crime Rate
- 5.00 %Unchanged by 0.00 %
Agent Activity
Yopa created the listing.
Nearby Schools
| Name | Type | Ofsted | Distance |
|---|---|---|---|
| Finlay Community School | Foundation School | Good | 0.54 KM |
| Finlay And Tredworth Children'S Centre | Children's Centre | 0.54 KM | |
| Hatherley Infant School | Community School | Requires improvement | 0.99 KM |
| Tredworth Infant And Nursery Academy | Academy Converter | Good | 1.00 KM |
| Tredworth Junior School | Community School | Good | 1.11 KM |
Images
Nearby Streets
| Name | Average Price | Average Sqft | Distance |
|---|---|---|---|
| A38 | £ 0 | 0 | 0.00 KM |
| Sorrel Close | £ 0 | 0 | 0.00 KM |
| Leonard Road | £ 0 | 0 | 0.00 KM |
| Hill Road | £ 0 | 0 | 0.00 KM |
| Paul Street | £ 0 | 0 | 0.00 KM |
Nearby Transport
| Name | NLC | TLC | Distance |
|---|---|---|---|
| Gloucester | 4760 | GCR | 2.38 KM |
Nearby Listings
| Address | Price | Type | Score | Distance |
|---|---|---|---|---|
| Finlay Road, Gloucester, GL4 | £ 365,000 | BUY | 6 / 10 | 0.00 KM |
| Finlay Road, Gloucester, Gloucestershire, GL4 | £ 375,000 | BUY | 6 / 10 | 0.14 KM |
| Finlay Road, Gloucester, Gloucestershire, GL4 | £ 290,000 | BUY | Unknown | 0.16 KM |
| Reservoir Road, Gloucester | £ 280,000 | BUY | 6 / 10 | 0.20 KM |
| Beaufort Road, Gloucester, Gloucestershire, GL4 | £ 250,000 | BUY | 6 / 10 | 0.25 KM |
Nearby Properties
| Address | Price | Distance |
|---|---|---|
| 31 Finlay Road | £ 165,000 | 0.01 KM |
| 67 Finlay Road | £ 230,000 | 0.01 KM |
| 39 Finlay Road | £ 230,000 | 0.01 KM |
| 61 Finlay Road | £ 285,000 | 0.01 KM |
| 11 Finlay Road | £ 163,500 | 0.01 KM |