Chancellors says ..
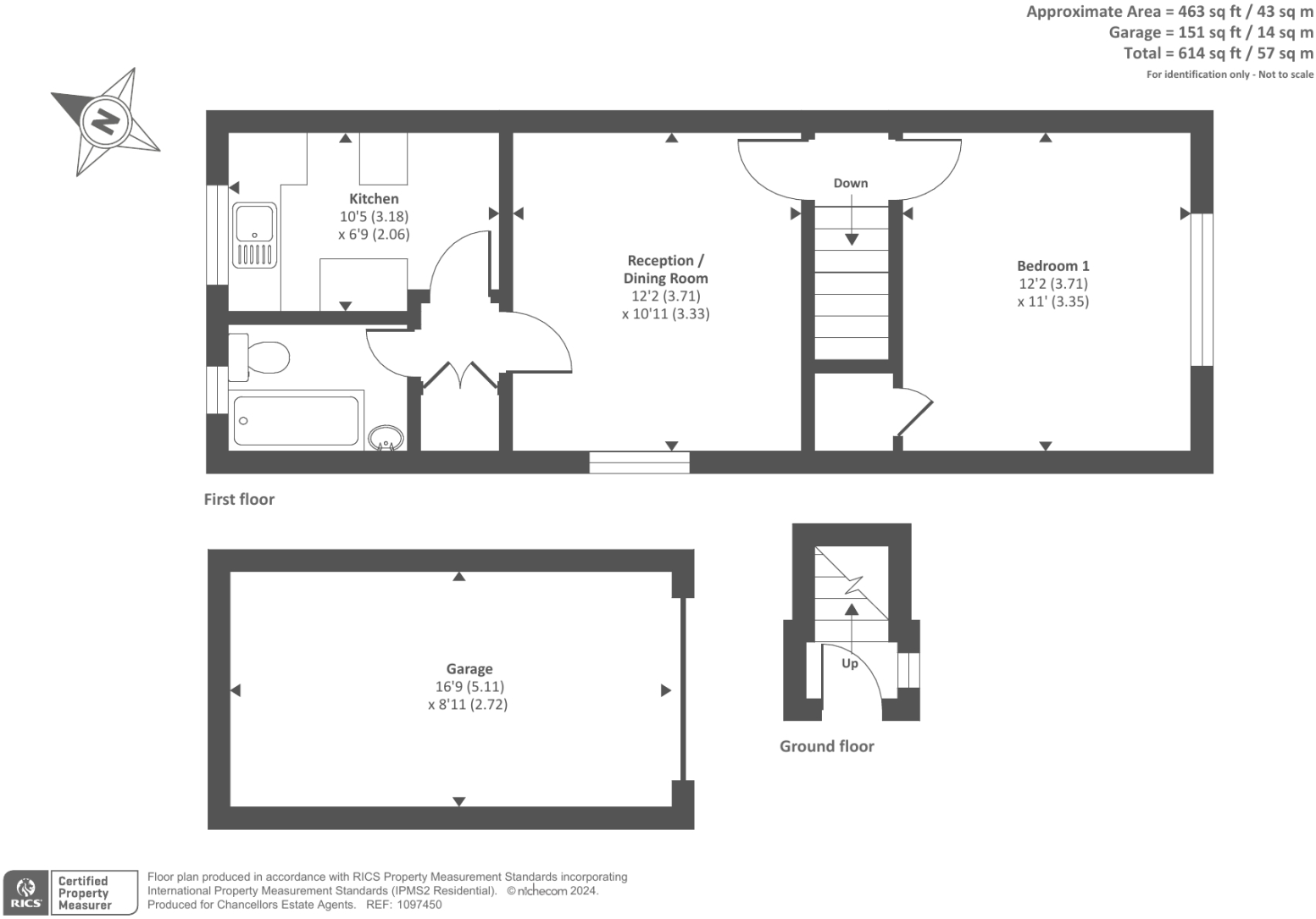
A well presented first floor apartment situated in Fleet town centre within a mile of Fleet mainline train station. Accommodation comprises, entrance hall, lounge/dining room, kitchen, double bedroom with built-in wardrobes and a refitted bathroom. In process of getting lease extended to 999 years
Property Oracle says ..
This property is a maisonette located in Fleet, Hampshire. It is a 1-bedroom property with a small plot size of 614 sqft. The property is in need of significant renovation, as seen in the photos. The location is convenient, with nearby transportation links and schools. However, the list price of £130,000 seems high compared to the average price per sqft in the area. More comparable properties in the area are selling for significantly more, suggesting that this property may be overpriced considering its condition and size. The average price per sqft in the area is £441, while this property is listed at a much higher price per sqft. This discrepancy needs to be taken into account when considering the value of the property.
Therefore, we give this property 4 / 10. *Disclaimer: This is our option and does constitute a recommendation or financial advice. Do your own research. *
- Price
- 4
- Condition
- 3
- Location
- 7
- Land
- 3
- Bedrooms
- 1
- Bathrooms
- 0
- Sqft (est)
- 489.95
- Lot (est)
- 614.00
The heatmap indicates the level of crime in the area. The color of the heatmap indicates the crime severity and recency.
Metrics Year-on-Year
- Average area value
- 399,167.00 £Increased by 7.59 %
- Est sale value
- 181,281.50 £Increased by 3.64 %
- Average area rental value
- 1,292.00 £/moIncreased by 3.03 %
- Est letting value
- 489.95 £/moUnchanged by 0.00 %
- Est rental Yield
- 3.88 %Decreased by 4.43 %
- Crime Rate
- 28.00 %Unchanged by 0.00 %
Agent Activity
Chancellors created the listing.
Nearby Schools
| Name | Type | Ofsted | Distance |
|---|---|---|---|
| Fleet Fireflies Children'S Centre | Children's Centre Linked Site | 0.20 KM | |
| Heatherside Junior School | Community School | Outstanding | 0.49 KM |
| Heatherside Infant School | Community School | Outstanding | 0.49 KM |
| Court Moor School | Community School | Good | 0.86 KM |
| All Saints Church Of England Aided Junior School | Voluntary Aided School | Good | 1.42 KM |
Images
Nearby Streets
| Name | Average Price | Average Sqft | Distance |
|---|---|---|---|
| Richmond Court | £ 0 | 0 | 0.00 KM |
| St James Court | £ 0 | 0 | 0.00 KM |
| Alexis Court | £ 0 | 0 | 0.00 KM |
| Hart Shopping Centre | £ 0 | 0 | 0.00 KM |
| Kingfisher Court | £ 0 | 0 | 0.00 KM |
Nearby Transport
| Name | NLC | TLC | Distance |
|---|---|---|---|
| Fleet | 5522 | FLE | 1.99 KM |
| Winchfield | 5528 | WNF | 7.02 KM |
| Sandhurst (Berks) | 5646 | SND | 8.78 KM |
| Farnham | 5545 | FNH | 9.33 KM |
| Blackwater | 5625 | BAW | 9.50 KM |
Nearby Listings
| Address | Price | Type | Score | Distance |
|---|---|---|---|---|
| Fleet, Hampshire, GU51 | £ 130,000 | BUY | 4 / 10 | 0.00 KM |
| Fleet, Hampshire, GU51 | £ 130,000 | BUY | 4 / 10 | 0.00 KM |
| Albert Street, Fleet | £ 245,000 | BUY | 6 / 10 | 0.04 KM |
| Woodman Court, Albert Street, Fleet, Hampshire, GU51 | £ 145,000 | BUY | 6 / 10 | 0.06 KM |
| Albert Street, Fleet, Hampshire, GU51 | £ 245,000 | BUY | 6 / 10 | 0.07 KM |
Nearby Properties
| Address | Price | Distance |
|---|---|---|
| 150 Albert Street | £ 350,000 | 0.07 KM |
| 152 Albert Street | £ 193,950 | 0.07 KM |
| 145 Albert Street | £ 343,000 | 0.07 KM |
| 158 Albert Street | £ 199,950 | 0.07 KM |
| 125a Albert Street | £ 182,500 | 0.07 KM |