High Street, Robertsbridge
By Rush Witt & Wilson
£ 825,000
Reviews
3 out of 5 stars
Rush Witt & Wilson says ..
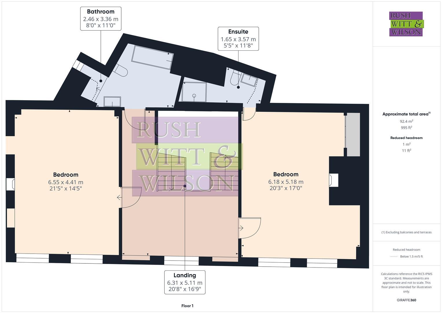
***GUIDE PRICE £825,000–£875,000*** Steeped in history and full of soul, this remarkable Grade II-listed former inn sits proudly in the heart of Robertsbridge's picturesque High Street, offering over 3,700 sq ft of truly atmospheric living space spread across three floors — all beautifully re...
Property Oracle says ..
This is a substantial, four-bedroom semi-detached property located on High Street, Robertsbridge, in East Sussex.
The property is situated in close proximity to local schooling and the Robertsbridge train station, offering convenient access to transportation.
The interior of the property showcases period features, including exposed beams and brickwork, and multiple fireplaces. The condition appears to be good, with a modern bathroom. The property also benefits from a basement.
The property includes a garden with mature shrubs and trees, a shed, and a patio area.
The list price of £825,000 is significantly higher than the average property price in the area of £443,750. The average price per square foot in the area is £519.00, while this property is listed at approximately £230 per square foot. However, this property offers significantly more space than average at 3,586.54 sqft. Given the size and period features, the price appears to be reasonable.
Therefore, we give this property 7 / 10. *Disclaimer: This is our option and does constitute a recommendation or financial advice. Do your own research. *
- Price
- 8
- Condition
- 7
- Location
- 8
- Land
- 7
- Bedrooms
- 4
- Bathrooms
- 1
- Sqft (est)
- 3,586.54
The heatmap indicates the level of crime in the area. The color of the heatmap indicates the crime severity and recency.
Metrics Year-on-Year
- Average area value
- 443,750.00 £Decreased by 18.92 %
- Est sale value
- 1,861,414.26 £Increased by 40.65 %
- Average area rental value
- 1,293.00 £/moDecreased by 31.77 %
- Est letting value
- 3,586.54 £/moUnchanged by 0.00 %
- Est rental Yield
- 3.50 %Decreased by 15.87 %
- Crime Rate
- 205.00 %Unchanged by 0.00 %
Agent Activity
Rush Witt & Wilson created the listing.
Nearby Schools
| Name | Type | Ofsted | Distance |
|---|---|---|---|
| Salehurst Church Of England Primary School | Voluntary Controlled School | Good | 0.17 KM |
| Darvell School | Other Independent School | Good | 1.30 KM |
| Robertsbridge Community College | Community School | Good | 1.38 KM |
| Mountfield Heath School | Other Independent Special School | Good | 2.76 KM |
| Hurst Green Church Of England Primary School And Nursery | Academy Converter | 3.51 KM |
Images
Nearby Streets
| Name | Average Price | Average Sqft | Distance |
|---|---|---|---|
| Willow Mews | £ 0 | 0 | 0.00 KM |
| Bakery Place | £ 0 | 0 | 0.00 KM |
| John's Cross Road | £ 0 | 0 | 0.00 KM |
| A21 | £ 0 | 0 | 0.00 KM |
Nearby Transport
| Name | NLC | TLC | Distance |
|---|---|---|---|
| Robertsbridge | 5226 | RBR | 0.63 KM |
| Etchingham | 5217 | ETC | 4.54 KM |
| Battle | 5215 | BAT | 8.34 KM |
Nearby Listings
| Address | Price | Type | Score | Distance |
|---|---|---|---|---|
| High Street, Robertsbridge | £ 825,000 | BUY | 7 / 10 | 0.00 KM |
| High Street, Robertsbridge | £ 552,750 | BUY | 7 / 10 | 0.02 KM |
| 69 High Street,, Robertsbridge | £ 850,000 | BUY | 7 / 10 | 0.05 KM |
| High Street, Robertsbridge, East Sussex, TN32 | £ 400,000 | BUY | 6 / 10 | 0.06 KM |
| Station Road, Robertsbridge, TN32 | £ 425,000 | BUY | Unknown | 0.08 KM |
Nearby Properties
| Address | Price | Distance |
|---|---|---|
| 59 High Street | £ 220,000 | 0.02 KM |
| 57 High Street | £ 192,000 | 0.02 KM |
| 75 High Street | £ 247,500 | 0.02 KM |
| 63a High Street | £ 375,000 | 0.02 KM |
| 65 High Street | £ 220,000 | 0.02 KM |