Archbold & Edwards says ..
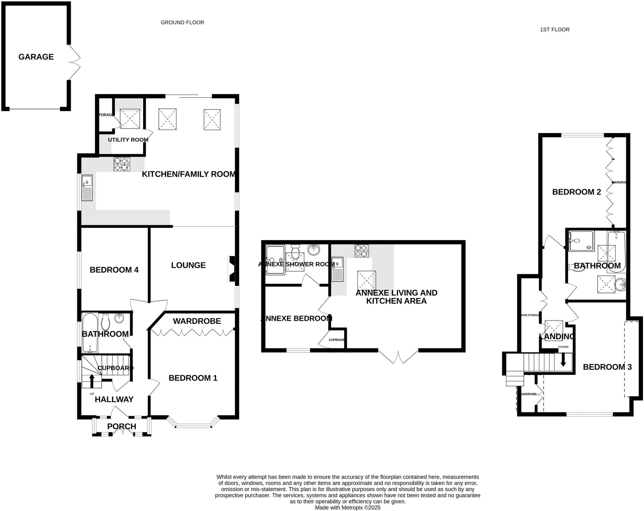
MORE THAN MEETS THE EYE AT THIS FOUR BEDROOM HOME WITH A DETACHED ONE BEDROOM SELF CONTAINED ANNEXE. A four bedroom detached house located in Widley, near Waterlooville and Purbrook. This impressive home which offers flexible accommodation benefits from double glazing, gas central heating system,...
Property Oracle says ..
Therefore, we give this property 7 / 10. *Disclaimer: This is our option and does constitute a recommendation or financial advice. Do your own research. *
- Price
- 7
- Condition
- 8
- Location
- 7
- Land
- 7
- Bedrooms
- 5
- Bathrooms
- 3
- Sqft (est)
- 1,764.00
The heatmap indicates the level of crime in the area. The color of the heatmap indicates the crime severity and recency.
Metrics Year-on-Year
- Average area value
- 416,856.00 £Increased by 18.13 %
- Est sale value
- 677,376.00 £Increased by 2.95 %
- Average area rental value
- 1,463.00 £/moIncreased by 21.92 %
- Est letting value
- 1,764.00 £/moUnchanged by 0.00 %
- Est rental Yield
- 4.21 %Increased by 3.19 %
- Crime Rate
- 5.00 %Unchanged by 0.00 %
from 352,880.00 £
from 657,972.00 £
from 1,200.00 £/mo
from 1,764.00 £/mo
from 4.08 %
from 5.00 %
Agent Activity
Archbold & Edwards created the listing.
Nearby Schools
| Name | Type | Ofsted | Distance |
|---|---|---|---|
| Purbrook Park School | Foundation School | Good | 1.11 KM |
| Solent Junior School | Academy Converter | Good | 1.43 KM |
| Solent Infant School | Academy Converter | Good | 1.57 KM |
| Springfield School | Academy Converter | Good | 1.62 KM |
| Court Lane Infant Academy | Academy Converter | Good | 1.81 KM |
Images
Nearby Streets
| Name | Average Price | Average Sqft | Distance |
|---|---|---|---|
| Cliffdale Gardens | £ 160,000 | 0 | 0.00 KM |
| Chiffdale Gardens | £ 177,500 | 0 | 0.00 KM |
| Langstone Court | £ 285,000 | 0 | 0.00 KM |
| Marrelswood Gardens | £ 699,995 | 0 | 0.00 KM |
| Courtmount Path | £ 0 | 0 | 0.00 KM |
Nearby Transport
| Name | NLC | TLC | Distance |
|---|---|---|---|
| Cosham | 5896 | CSA | 2.59 KM |
| Hilsea | 5539 | HLS | 3.38 KM |
| Bedhampton | 5538 | BDH | 5.97 KM |
| Fratton | 5509 | FTN | 7.30 KM |
| Havant | 5532 | HAV | 7.54 KM |
Nearby Listings
| Address | Price | Type | Score | Distance |
|---|---|---|---|---|
| London Road, Widley | £ 664,995 | BUY | 7 / 10 | 0.00 KM |
| London Road, Widley | £ 650,000 | BUY | 7 / 10 | 0.00 KM |
| London Road, Widley | £ 650,000 | BUY | 7 / 10 | 0.02 KM |
| London Road, WATERLOOVILLE, Hampshire, PO7 | £ 700,000 | BUY | 7 / 10 | 0.02 KM |
| London Road, Widley, Waterlooville | £ 700,000 | BUY | 7 / 10 | 0.02 KM |
Nearby Properties
| Address | Price | Distance |
|---|---|---|
| 20 London Road | £ 330,000 | 0.00 KM |
| 8 London Road | £ 290,000 | 0.00 KM |
| 10 London Road | £ 373,000 | 0.00 KM |
| 6 London Road | £ 660,000 | 0.00 KM |
| 28 London Road | £ 245,000 | 0.00 KM |