Wilkinson Grant & Co says ..
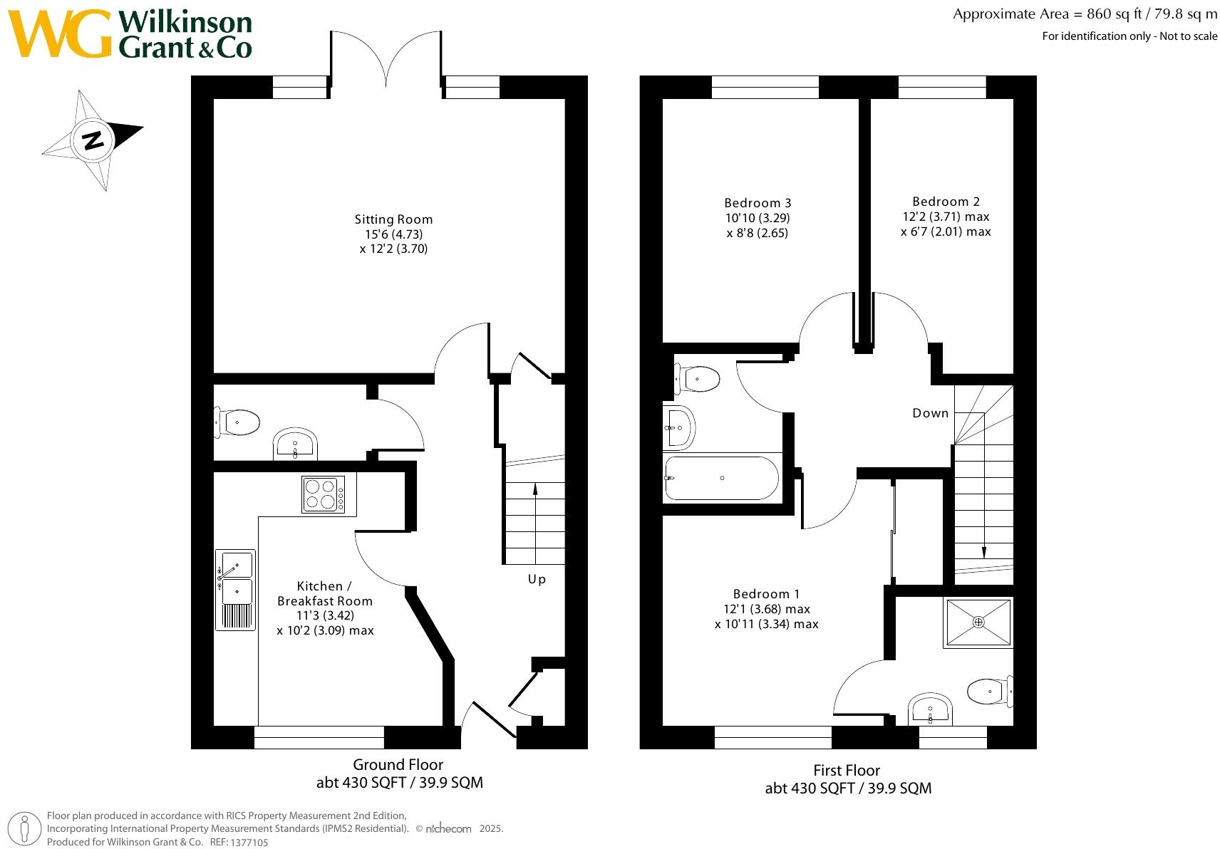
A CONTEMPORARY, stylish house built in 2022 and has since been METICULOUSLY MAINTAINED. Enjoying a POPULAR LOCATION in Exmouth, close to amenities. WEST FACING GARDEN with side access plus DRIVEWAY PARKING.
Property Oracle says ..
This is a well-presented terraced house in Exmouth, Devon. The property benefits from a modern interior, a garden, and proximity to local amenities. While the nearest school requires improvement, others are rated ‘Good’. The price appears reasonable compared to other properties in the area. Overall, this property would make a good home for a small family or couple.
Therefore, we give this property 7 / 10. *Disclaimer: This is our option and does constitute a recommendation or financial advice. Do your own research. *
- Price
- 7
- Condition
- 8
- Location
- 7
- Land
- 6
- Bedrooms
- 3
- Bathrooms
- 2
The heatmap indicates the level of crime in the area. The color of the heatmap indicates the crime severity and recency.
Metrics Year-on-Year
- Average area value
- 385,000.00 £Decreased by 11.33 %
- Average area rental value
- 1,650.00 £/moIncreased by 37.04 %
- Est rental Yield
- 5.14 %Increased by 54.35 %
- Crime Rate
- 18.00 %Unchanged by 0.00 %
Agent Activity
Wilkinson Grant & Co created the listing.
Nearby Schools
| Name | Type | Ofsted | Distance |
|---|---|---|---|
| Littleham Church Of England Primary School | Voluntary Controlled School | Requires improvement | 0.78 KM |
| Bassetts Farm Primary School | Foundation School | Good | 1.16 KM |
| Marpool Primary School | Foundation School | Good | 1.30 KM |
| Exmouth & District Children'S Centre | Children's Centre | 1.45 KM | |
| Withycombe Raleigh Church Of England Primary School | Voluntary Controlled School | Good | 1.82 KM |
Images
Nearby Streets
| Name | Average Price | Average Sqft | Distance |
|---|---|---|---|
| Buckeridge Road | £ 264,000 | 0 | 0.00 KM |
| Sutton Road | £ 279,950 | 0 | 0.00 KM |
| The Crescent | £ 0 | 0 | 0.00 KM |
| Chapman Road | £ 0 | 0 | 0.00 KM |
| Wade Close | £ 0 | 0 | 0.00 KM |
Nearby Transport
| Name | NLC | TLC | Distance |
|---|---|---|---|
| Exmouth | 5756 | EXM | 3.46 KM |
| Lympstone Village | 5761 | LYM | 5.90 KM |
| Starcross | 3413 | SCS | 7.08 KM |
| Dawlish Warren | 3409 | DWW | 7.17 KM |
| Lympstone Commando | 5762 | LYC | 7.63 KM |
Nearby Listings
| Address | Price | Type | Score | Distance |
|---|---|---|---|---|
| Exmouth, Devon | £ 320,000 | BUY | 7 / 10 | 0.00 KM |
| Park Drive, Exmouth, Devon | £ 400,000 | BUY | 8 / 10 | 0.07 KM |
| Park Drive, Exmouth | £ 299,950 | BUY | 7 / 10 | 0.09 KM |
| Buckingham Close, Exmouth, EX8 | £ 425,000 | BUY | 7 / 10 | 0.13 KM |
| Wragg Drive, Exmouth | £ 675,000 | BUY | 8 / 10 | 0.14 KM |
Nearby Properties
| Address | Price | Distance |
|---|---|---|
| 54 Littleham Road | £ 148,000 | 0.15 KM |
| 52 Littleham Road | £ 217,000 | 0.15 KM |
| 50 Littleham Road | £ 213,500 | 0.15 KM |
| 46 Littleham Road | £ 300,000 | 0.15 KM |
| 6 Midway | £ 236,250 | 0.16 KM |