Dingle Road, Skelmersdale
MO

Dingle Road, Skelmersdale

By Morgan H Lewis

£ 299,950

Reviews

3 out of 5 stars

Morgan H Lewis says ..

Charming 1930s Three Bedroom Detached Home in the Heart of Upholland – No ChainSet in a fantastic position close to Upholland village centre, this distinctive 1930s detached family home offers a rare chance to secure a truly individual property in a highly desirable location. With picturesq...

Property Oracle says ..

73 Dingle Road is a detached property in Up Holland, Skelmersdale. The property has three bedrooms and one bathroom. It is located in a residential area and is within walking distance of several schools and local transport links. The property appears to be in reasonable condition and has a good-sized garden to the front and rear. The property is listed for sale at £299,950, which appears to be good value for money, given the average price of detached properties in the area.

Therefore, we give this property 7 / 10. *Disclaimer: This is our option and does constitute a recommendation or financial advice. Do your own research. *

Price
8
Condition
7
Location
7
Land
7
Bedrooms
3
Bathrooms
1
Sqft (est)
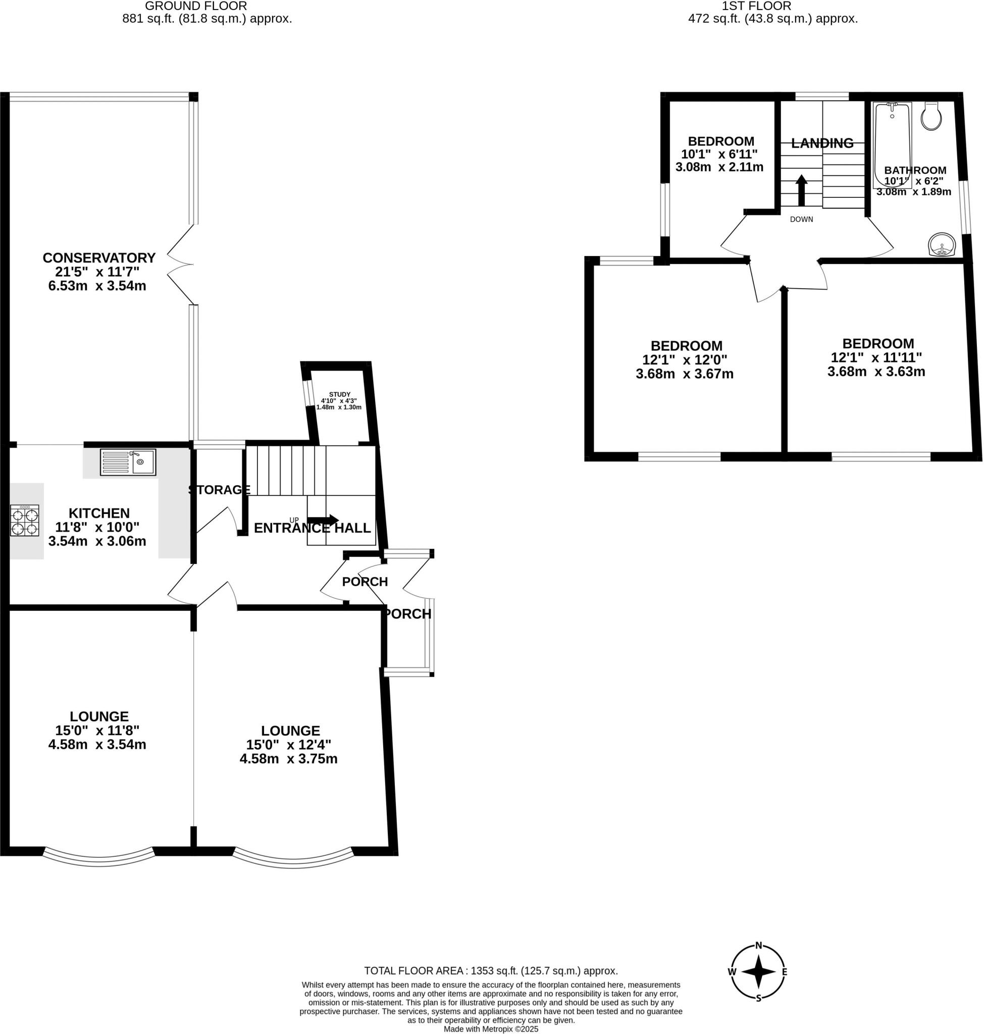
1,353.00

The heatmap indicates the level of crime in the area. The color of the heatmap indicates the crime severity and recency.

Metrics Year-on-Year

Average area value
382,533.00 £
Increased by 3.77 %
from 368,645.00 £
Est sale value
497,904.00 £
Increased by 5.44 %
from 472,197.00 £
Average area rental value
1,090.00 £/mo
Decreased by 17.67 %
from 1,324.00 £/mo
Est letting value
1,353.00 £/mo
Unchanged by 0.00 %
from 1,353.00 £/mo
Est rental Yield
3.42 %
Decreased by 20.65 %
from 4.31 %
Crime Rate
20.00 %
Unchanged by 0.00 %
from 20.00 %

Agent Activity

  • Morgan H Lewis created the listing.

Nearby Schools

NameTypeOfstedDistance
St Teresa'S Catholic Primary SchoolVoluntary Aided SchoolGood0.34 KM
Upholland Children'S CentreChildren's Centre Linked Site0.43 KM
St Thomas The Martyr Voluntary Aided Church Of England Primary SchoolVoluntary Aided SchoolGood0.54 KM
Upholland Roby Mill Cofe Voluntary Aided Primary SchoolVoluntary Aided SchoolGood1.44 KM
Up Holland High SchoolCommunity SchoolGood2.12 KM

Images

Photo 62 Photo 63 Photo 64 Photo 65 Photo 66 Photo 68 Photo 49 Photo 50 Photo 3 Photo 48 Photo 2 Photo 52 Photo 8 Photo 31 Photo 32 Photo 10 Photo 45 Photo 35 Photo 14 Photo 36 Photo 69 Photo 23 Photo 1 Photo 55 Photo 25 Photo 24 Photo 27 Photo 26 Photo 17 Photo 37 Photo 44 Photo 43 Photo 33 Photo 34 Photo 38 Photo 39 Photo 41 Photo 53 Photo 54 Photo 56 Photo 57 Photo 58 Photo 70 Photo 59 Photo 60 Photo 7 Photo 5 Photo 18 Photo 19

Nearby Streets

NameAverage PriceAverage SqftDistance
Grove Road £ 200,00000.00 KM
Woodside Close £ 332,00000.00 KM
Thirlmere Avenue £ 217,50000.00 KM
Dean Close £ 000.00 KM
Abbey Close £ 190,00000.00 KM

Nearby Transport

NameNLCTLCDistance
Upholland2364UPL2.55 KM
Orrell2259ORR2.67 KM
Appley Bridge2396APB3.70 KM
Gathurst2397GST3.88 KM
Pemberton2403PEM6.50 KM

Nearby Listings

AddressPriceTypeScoreDistance
Dingle Road, Upholland £ 425,000BUY6 / 100.00 KM
Dingle Road, Skelmersdale £ 299,950BUY7 / 100.00 KM
Dingle Road, Upholland, WN8 £ 250,000BUY7 / 100.02 KM
Dingle Road, Upholland, WN8 0EW £ 325,000BUY7 / 100.06 KM
Hallbridge Gardens, Upholland, WN8 £ 200,000BUY6 / 100.09 KM

Nearby Properties

AddressPriceDistance
50 Hallbridge Gardens £ 155,0000.12 KM
26 Hallbridge Gardens £ 190,0000.12 KM
70 Hallbridge Gardens £ 139,9950.12 KM
6 Hallbridge Gardens £ 169,9500.12 KM
62 Hallbridge Gardens £ 157,0000.12 KM