Leaper Stanbrook says ..
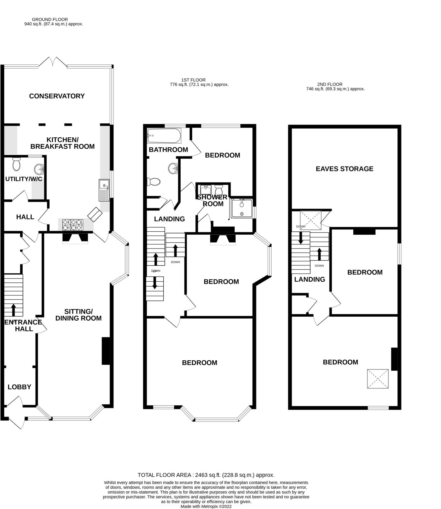
An exceptionally rare opportunity to acquire a five bedroom semi-detached house of Edwardian character, enviably located just behind Meads seafront and affording views over Holywell Gardens to The English Channel.
Property Oracle says ..
Therefore, we give this property 7 / 10. *Disclaimer: This is our option and does constitute a recommendation or financial advice. Do your own research. *
- Price
- 8
- Condition
- 7
- Location
- 8
- Land
- 6
- Bedrooms
- 5
- Bathrooms
- 2
- Sqft (est)
- 2,463.00
The heatmap indicates the level of crime in the area. The color of the heatmap indicates the crime severity and recency.
Metrics Year-on-Year
- Average area value
- 377,300.00 £Increased by 2.31 %
- Est sale value
- 992,589.00 £Increased by 9.51 %
- Average area rental value
- 1,214.00 £/moDecreased by 5.45 %
- Est letting value
- 2,463.00 £/moUnchanged by 0.00 %
- Est rental Yield
- 3.86 %Decreased by 7.66 %
- Crime Rate
- 13.00 %Unchanged by 0.00 %
from 368,793.00 £
from 906,384.00 £
from 1,284.00 £/mo
from 2,463.00 £/mo
from 4.18 %
from 13.00 %
Agent Activity
Leaper Stanbrook created the listing.
Nearby Schools
| Name | Type | Ofsted | Distance |
|---|---|---|---|
| Bede'S Prep School | Other Independent School | 0.15 KM | |
| St Andrew'S Prep | Other Independent School | 0.19 KM | |
| St John'S Meads Church Of England Primary School | Academy Converter | 0.79 KM | |
| Eastbourne College | Other Independent School | 1.64 KM | |
| Gildredge House | Free Schools | Good | 1.82 KM |
Images
Nearby Streets
| Name | Average Price | Average Sqft | Distance |
|---|---|---|---|
| Saint John's Road | £ 0 | 0 | 0.00 KM |
| Upper Duke's Drive | £ 0 | 0 | 0.00 KM |
| Fairway Close | £ 0 | 0 | 0.00 KM |
Nearby Transport
| Name | NLC | TLC | Distance |
|---|---|---|---|
| Eastbourne | 5448 | EBN | 2.30 KM |
| Hampden Park (Sussex) | 5450 | HMD | 4.96 KM |
| Polegate | 5455 | PLG | 8.00 KM |
| Pevensey And Westham | 5461 | PEV | 9.36 KM |
Nearby Listings
| Address | Price | Type | Score | Distance |
|---|---|---|---|---|
| Cliff Road, Meads, Eastbourne, BN20 | £ 875,000 | BUY | 7 / 10 | 0.00 KM |
| Cliff Road, Eastbourne | £ 875,000 | BUY | 7 / 10 | 0.00 KM |
| Cliff Road, BN20 7RU | £ 875,000 | BUY | 7 / 10 | 0.00 KM |
| Cliff Road, Eastbourne | £ 875,000 | BUY | Unknown | 0.01 KM |
| Cliff Road, Eastbourne | £ 355,000 | BUY | 8 / 10 | 0.04 KM |
Nearby Properties
| Address | Price | Distance |
|---|---|---|
| 8 Cliff Road | £ 310,000 | 0.01 KM |
| 6 Cliff Road | £ 470,000 | 0.01 KM |
| 79 Meads Street | £ 775,000 | 0.08 KM |
| 77 Meads Street | £ 672,250 | 0.08 KM |
| 67 Meads Street | £ 340,000 | 0.08 KM |