Ben Rose says ..
Ben Rose Estate Agents are pleased to bring to market this generously sized two-bedroom semi-detached home, ideally suited for a first-time buyer and offering excellent value with spacious living throughout. Situated in a sought-after residential area of Chorley, the property enjoys a convenient ...
Property Oracle says ..
This two-bedroom semi-detached house in Chorley, Lancashire is located in a convenient area with good access to schools and transportation links. The property itself appears to be in good condition, with modern updates to the kitchen and bathrooms. The images show a well-maintained garden, adding to the overall appeal. While the average price per square foot in the area is higher, this property is listed at a price that is more competitive with nearby similar properties. The list price appears reasonable considering the condition, location, and inclusion of a garden.
Therefore, we give this property 7 / 10. *Disclaimer: This is our option and does constitute a recommendation or financial advice. Do your own research. *
- Price
- 7
- Condition
- 8
- Location
- 7
- Land
- 7
- Bedrooms
- 2
- Bathrooms
- 1
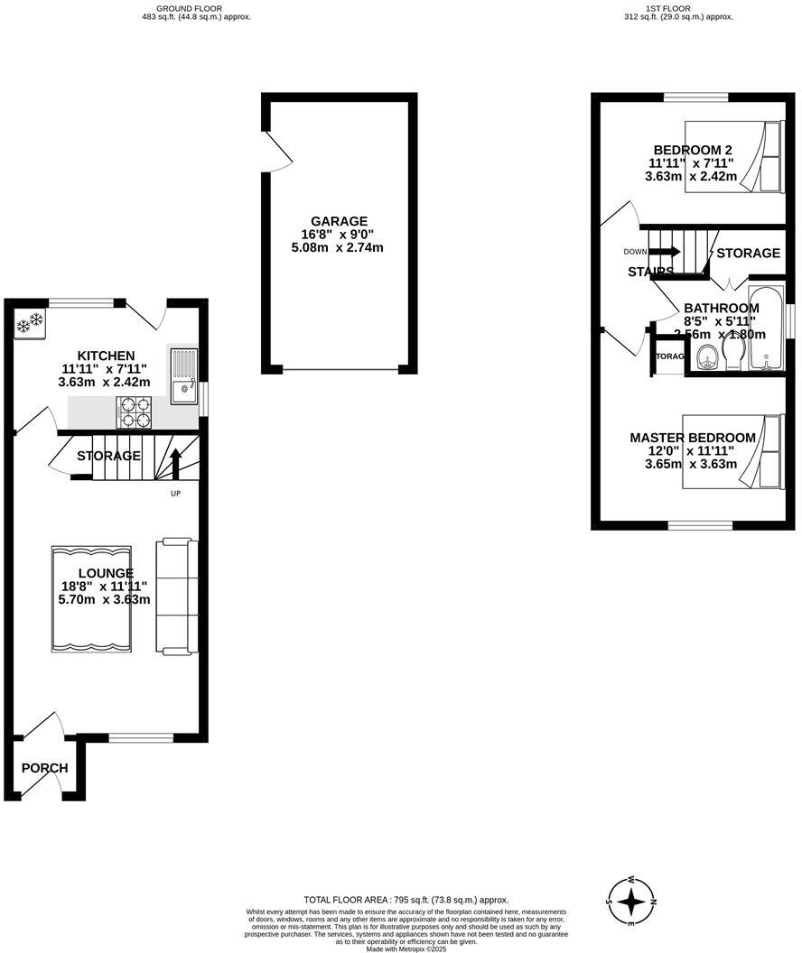
- Sqft (est)
- 794.38
The heatmap indicates the level of crime in the area. The color of the heatmap indicates the crime severity and recency.
Metrics Year-on-Year
- Average area value
- 445,205.00 £Decreased by 3.69 %
- Est sale value
- 512,375.10 £Increased by 20.34 %
- Average area rental value
- 1,836.00 £/moIncreased by 4.79 %
- Est letting value
- 1,588.76 £/moUnchanged by 0.00 %
- Est rental Yield
- 4.95 %Increased by 8.79 %
- Crime Rate
- 14.00 %Unchanged by 0.00 %
Agent Activity
Ben Rose created the listing.
Nearby Schools
| Name | Type | Ofsted | Distance |
|---|---|---|---|
| Southlands High School | Academy Converter | 0.40 KM | |
| Chorley All Saints Church Of England Primary School And Nursery Unit | Voluntary Aided School | Good | 0.96 KM |
| Gillibrand Primary School | Community School | Outstanding | 1.01 KM |
| St Gregory'S Catholic Primary School, Chorley | Voluntary Aided School | Good | 1.34 KM |
| Westmorland School | Other Independent Special School | Outstanding | 1.41 KM |
Images
Nearby Streets
| Name | Average Price | Average Sqft | Distance |
|---|---|---|---|
| Juniper Wood Close | £ 0 | 0 | 0.00 KM |
| The Copse | £ 476,663 | 0 | 0.00 KM |
| Buttermere Avenue | £ 0 | 0 | 0.00 KM |
| Calder Avenue | £ 0 | 0 | 0.00 KM |
| Grasmere Terrace | £ 0 | 0 | 0.00 KM |
Nearby Transport
| Name | NLC | TLC | Distance |
|---|---|---|---|
| Chorley | 2745 | CRL | 2.79 KM |
| Euxton Balshaw Lane | 2080 | EBA | 3.64 KM |
| Buckshaw Parkway | 7501 | BSV | 4.15 KM |
| Adlington (Lancashire) | 2641 | ADL | 5.67 KM |
| Leyland | 2710 | LEY | 8.02 KM |
Nearby Listings
| Address | Price | Type | Score | Distance |
|---|---|---|---|---|
| Draperfield, Chorley | £ 159,995 | BUY | 7 / 10 | 0.00 KM |
| Draperfield, Chorley, PR7 3PL | £ 182,500 | BUY | 7 / 10 | 0.06 KM |
| Draperfield, Chorley | £ 185,000 | BUY | 7 / 10 | 0.06 KM |
| Coppull Road, Chorley | £ 239,995 | BUY | 7 / 10 | 0.07 KM |
| Draperfield, Chorley | £ 219,995 | BUY | Unknown | 0.14 KM |
Nearby Properties
| Address | Price | Distance |
|---|---|---|
| 41 Draperfield | £ 108,000 | 0.05 KM |
| 75 Draperfield | £ 110,000 | 0.05 KM |
| 45 Draperfield | £ 140,000 | 0.05 KM |
| 52 Draperfield | £ 119,000 | 0.05 KM |
| 51 Draperfield | £ 121,000 | 0.05 KM |