Fresh Estates says ..
Charming Grade II Listed property in Delf Street in the heart of Historic Sandwich, with great local shops, pubs and restaurants nearby, excellent schooling facilities and mainline railway station.
Property Oracle says ..
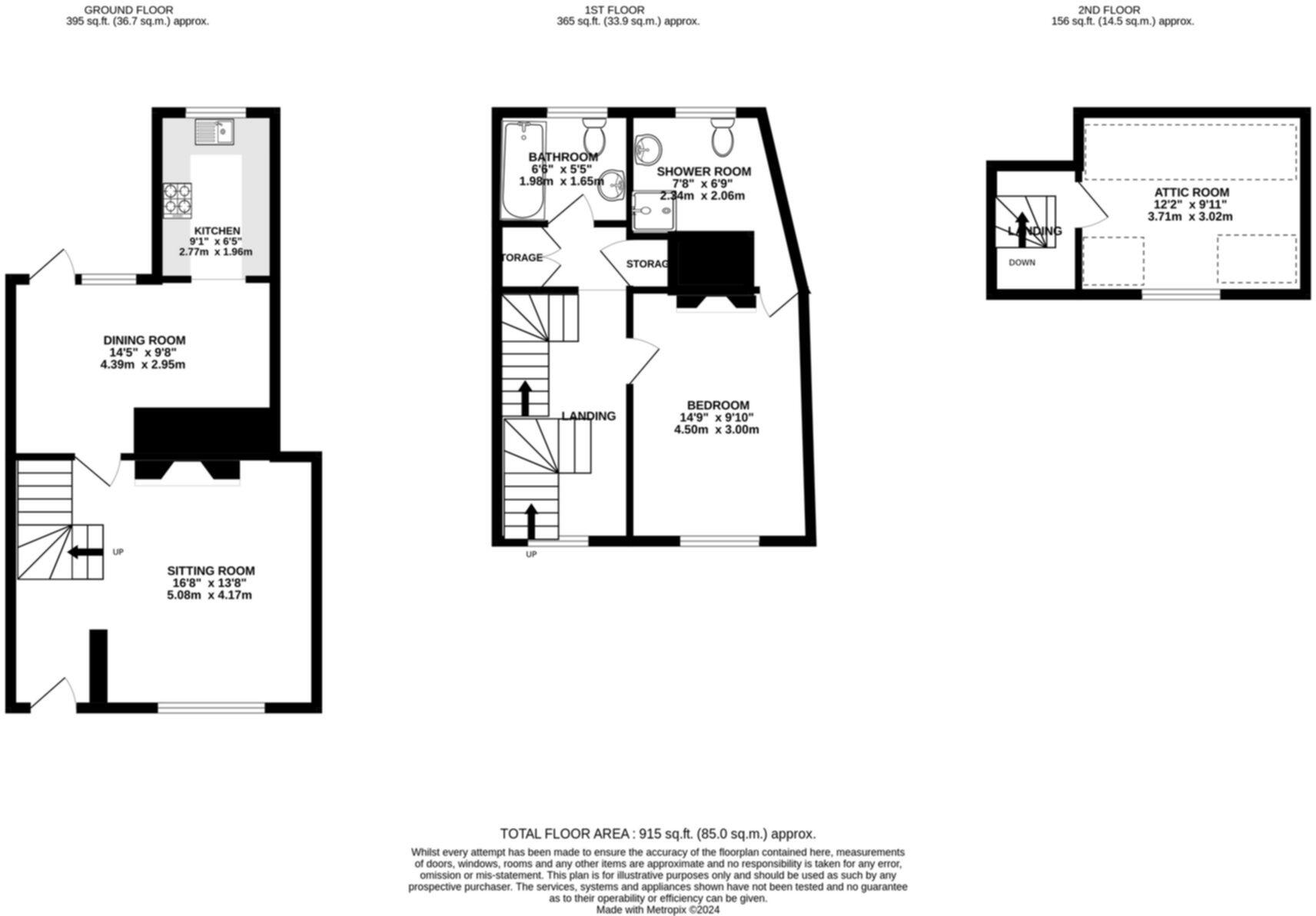
This property is a 2 bedroom, 2 bathroom house on Delf Street in Sandwich, Kent. The list price is £375,000. The property is 914.93 sqft and has a small, enclosed rear garden.
The property is located in Sandwich, a historic market town in Kent. Sandwich benefits from its proximity to the coast, and has good transport links via the Southeastern railway line (Sandwich station is 0.81km away). There are also several well-regarded schools nearby, including Sandwich Junior School and Sir Roger Manwood’s School, both rated as ‘Outstanding’ by Ofsted. The town centre is within easy walking distance, providing access to shops, restaurants, and other amenities. This makes the location highly desirable.
Based on the provided photographs, the property appears to be in good condition, although it has a characterful, lived-in feel. The interior features exposed beams and period details, suggesting it may be a period property. While there are no obvious signs of disrepair, a full survey would be recommended to assess the condition of the structure and any potential maintenance needs.
The property has a small, enclosed rear garden, which while not extensive, offers some private outdoor space. The size is not specified in square footage, but the images show it is a manageable size, suitable for a small patio or seating area.
The average house price in the area is significantly higher (£642,571), and the average price per square foot is £318. This property is listed at £375,000, which is considerably lower than the average. Considering its location, apparent condition, and the inclusion of a garden, the list price appears to be reasonable, possibly even representing good value for money, particularly when compared to similar properties in the area (such as those on Vicarage Lane and Wantsum Mews). However, the lack of plot size information and the absence of a detailed property survey make it difficult to definitively assess the true value.
Therefore, we give this property 6 / 10. *Disclaimer: This is our option and does constitute a recommendation or financial advice. Do your own research. *
- Price
- 8
- Condition
- 7
- Location
- 8
- Land
- 4
- Bedrooms
- 2
- Bathrooms
- 2
- Sqft (est)
- 914.93
The heatmap indicates the level of crime in the area. The color of the heatmap indicates the crime severity and recency.
Metrics Year-on-Year
- Average area value
- 730,000.00 £Increased by 46.62 %
- Est sale value
- 348,588.33 £Increased by 8.86 %
- Average area rental value
- 735.00 £/moDecreased by 40.63 %
- Est letting value
- 0.00 £/mo
- Est rental Yield
- 1.21 %Decreased by 59.40 %
- Crime Rate
- 45.00 %Unchanged by 0.00 %
Agent Activity
Fresh Estates created the listing.
Nearby Schools
| Name | Type | Ofsted | Distance |
|---|---|---|---|
| Sandwich Infant School | Academy Converter | 0.23 KM | |
| Sandwich Junior School | Community School | Outstanding | 0.84 KM |
| Sir Roger Manwood'S School | Academy Converter | Outstanding | 0.90 KM |
| Sandwich Technology School | Academy Converter | Good | 1.22 KM |
| Worth Primary School | Academy Converter | 2.40 KM |
Images
Nearby Streets
| Name | Average Price | Average Sqft | Distance |
|---|---|---|---|
| Church Street St. Marys | £ 0 | 0 | 0.00 KM |
| Pillory Gate | £ 0 | 0 | 0.00 KM |
| The Butts | £ 465,000 | 0 | 0.00 KM |
| Ramsgate Road | £ 200,000 | 0 | 0.00 KM |
| Church Street St. Clements | £ 495,000 | 0 | 0.00 KM |
Nearby Transport
| Name | NLC | TLC | Distance |
|---|---|---|---|
| Sandwich | 5026 | SDW | 0.81 KM |
| Minster | 5019 | MSR | 6.38 KM |
| Deal | 5011 | DEA | 8.91 KM |
| Walmer | 5041 | WAM | 9.45 KM |
Nearby Listings
| Address | Price | Type | Score | Distance |
|---|---|---|---|---|
| Delf Street, Sandwich, CT13 | £ 375,000 | BUY | 6 / 10 | 0.00 KM |
| Delf Street, Sandwich | £ 625,000 | BUY | 6 / 10 | 0.02 KM |
| Bowling Street, Sandwich, Kent, CT13 | £ 369,000 | BUY | Unknown | 0.05 KM |
| Cattle Market, Sandwich, Dover, CT13 | £ 380,000 | BUY | Unknown | 0.09 KM |
| Cattle Market, Sandwich, Dover, CT13 | £ 350,000 | BUY | Unknown | 0.09 KM |
Nearby Properties
| Address | Price | Distance |
|---|---|---|
| 5 Bowling Street | £ 515,000 | 0.03 KM |
| 3 Bowling Street | £ 535,000 | 0.03 KM |
| 32 Delf Street | £ 207,500 | 0.04 KM |
| 1a Bowling Street | £ 425,000 | 0.04 KM |
| 16 Bowling Street | £ 205,000 | 0.04 KM |