WE
Ravenhurst Road, Harborne, Birmingham, B17 9HR
By Wentworth & Rose
£ 675,000
Reviews
3 out of 5 stars
Wentworth & Rose says ..
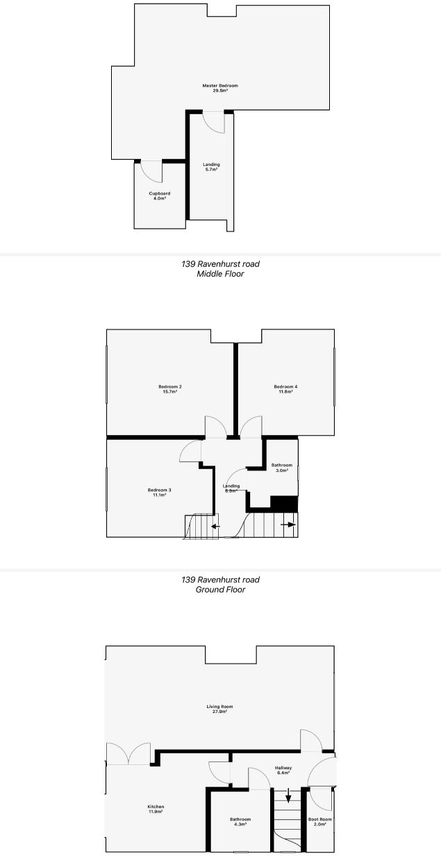
An exquisite, beautifully presented 4 double bedroom property located on the highly desirable Ravenhurst Road. This wonderful family home is impeccably presented throughout with plenty of character fe...
Property Oracle says ..
Therefore, we give this property 7 / 10. *Disclaimer: This is our option and does constitute a recommendation or financial advice. Do your own research. *
- Price
- 7
- Condition
- 8
- Location
- 9
- Land
- 7
- Bedrooms
- 4
- Bathrooms
- 2
The heatmap indicates the level of crime in the area. The color of the heatmap indicates the crime severity and recency.
Metrics Year-on-Year
- Average area value
- 430,989.00 £Increased by 6.80 %
- Average area rental value
- 1,439.00 £/moIncreased by 15.21 %
- Est rental Yield
- 4.01 %Increased by 8.09 %
- Crime Rate
- 0.00 %
from 403,536.00 £
from 1,249.00 £/mo
from 3.71 %
from 0.00 %
Agent Activity
Wentworth & Rose created the listing.
Nearby Schools
| Name | Type | Ofsted | Distance |
|---|---|---|---|
| Harborne Primary School | Community School | Outstanding | 0.52 KM |
| St Mary'S Catholic Primary School | Voluntary Aided School | Outstanding | 0.75 KM |
| Woodbourne Hospital School | Other Independent School | Good | 0.92 KM |
| Chad Vale Primary School | Community School | Good | 0.97 KM |
| St Peters Cofe Primary School | Voluntary Aided School | Good | 1.15 KM |
Images
Nearby Streets
| Name | Average Price | Average Sqft | Distance |
|---|---|---|---|
| Eastway | £ 0 | 0 | 0.00 KM |
| The Square | £ 0 | 0 | 0.00 KM |
| Umpire Close | £ 775,000 | 0 | 0.00 KM |
| Forest Drive | £ 230,250 | 0 | 0.00 KM |
| Vine Terrace | £ 328,750 | 0 | 0.00 KM |
Nearby Transport
| Name | NLC | TLC | Distance |
|---|---|---|---|
| University (Birmingham) | 4504 | UNI | 2.37 KM |
| Selly Oak | 1105 | SLY | 3.14 KM |
| Smethwick Rolfe Street | 1150 | SMR | 4.08 KM |
| Five Ways | 4503 | FWY | 4.64 KM |
| The Hawthorns | 4523 | THW | 4.78 KM |
Nearby Listings
| Address | Price | Type | Score | Distance |
|---|---|---|---|---|
| Ravenhurst Road, Harborne, Birmingham, B17 9HR | £ 675,000 | BUY | 7 / 10 | 0.00 KM |
| Margaret Grove, Harborne, Birmingham, B17 | £ 570,000 | BUY | 8 / 10 | 0.08 KM |
| Ravenhurst Road, Birmingham | £ 250,000 | BUY | 7 / 10 | 0.08 KM |
| Park Edge, Harborne, Birmingham, B17 9ER | £ 645,000 | BUY | 7 / 10 | 0.08 KM |
| Ravenhurst Road, Birmingham | £ 725,000 | BUY | 6 / 10 | 0.09 KM |
Nearby Properties
| Address | Price | Distance |
|---|---|---|
| 135 Ravenhurst Road | £ 250,000 | 0.04 KM |
| 147 Ravenhurst Road | £ 610,500 | 0.04 KM |
| 139 Ravenhurst Road | £ 335,000 | 0.04 KM |
| 149 Ravenhurst Road | £ 296,000 | 0.04 KM |
| 137 Ravenhurst Road | £ 450,000 | 0.04 KM |