Julie Philpot says ..
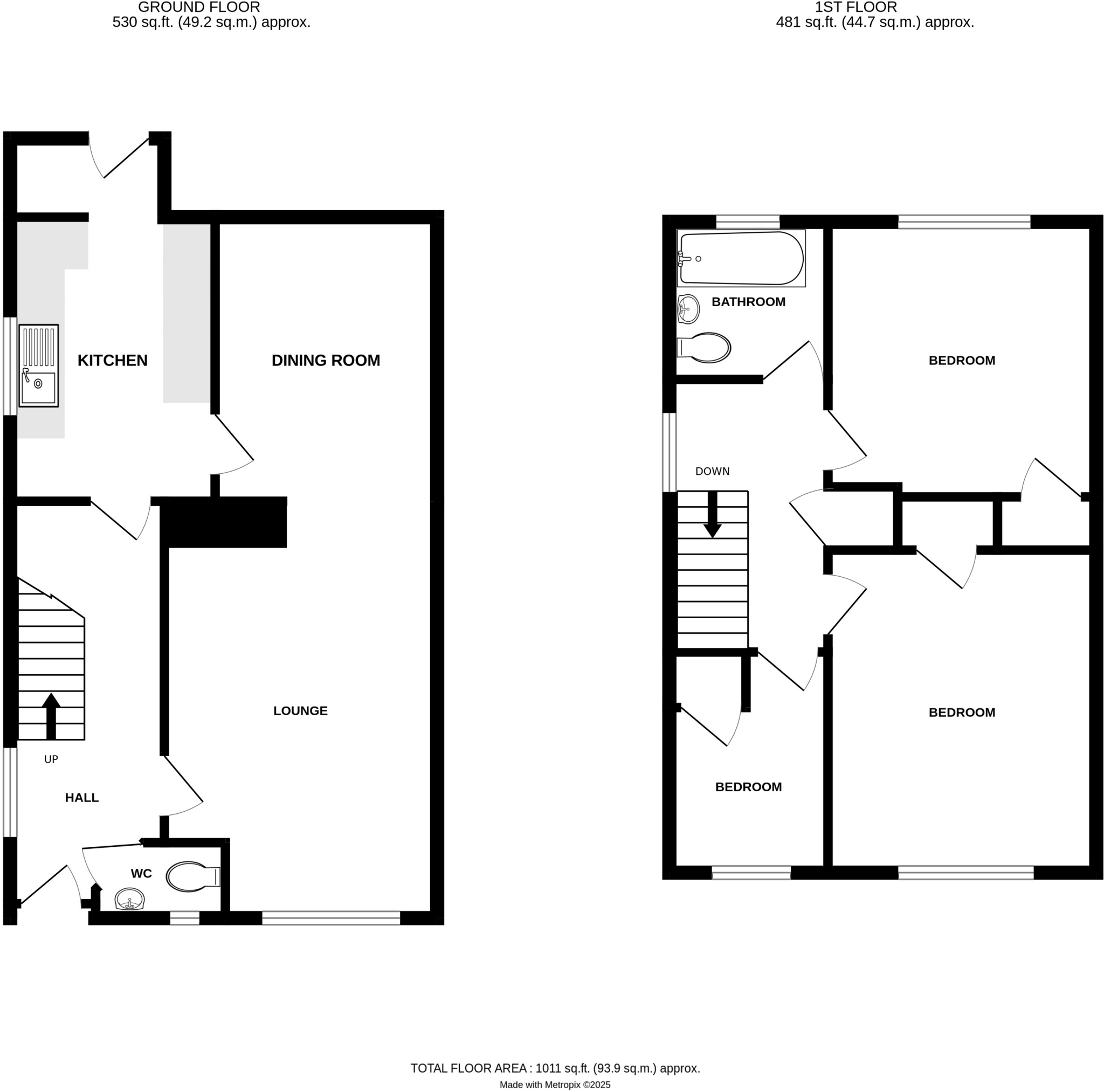
A traditional three bedroomed semi detached property, built during the 1960's, being set in a very sought after residential location within an easy walk of Thorns School, two local parks, shops, train station and the town centre. This is a much loved family home being placed on the market for the...
Property Oracle says ..
This property is a 3-bedroom house located on Blackthorn Road in Kenilworth, Warwickshire. The property is within close proximity to Thorns Community Infant School (0.20 km) and other schools, as well as Kenilworth train station (0.43 km). While the property shows its age, it appears to be structurally sound and habitable. The garden is small but usable. The list price of £425,000 seems slightly high compared to other similar properties in the area, particularly considering the need for some modernisation. However, the desirable location in Kenilworth could justify a premium.
Therefore, we give this property 6 / 10. *Disclaimer: This is our option and does constitute a recommendation or financial advice. Do your own research. *
- Price
- 6
- Condition
- 6
- Location
- 8
- Land
- 4
- Bedrooms
- 3
- Bathrooms
- 1
- Sqft (est)
- 1,010.73
The heatmap indicates the level of crime in the area. The color of the heatmap indicates the crime severity and recency.
Metrics Year-on-Year
- Average area value
- 720,833.00 £Increased by 62.68 %
- Est sale value
- 525,579.60 £Increased by 6.34 %
- Average area rental value
- 1,314.00 £/moIncreased by 12.31 %
- Est letting value
- 0.00 £/moDecreased by 100.00 %
- Est rental Yield
- 2.19 %Decreased by 30.91 %
- Crime Rate
- 1.00 %Unchanged by 0.00 %
Agent Activity
Julie Philpot created the listing.
Nearby Schools
| Name | Type | Ofsted | Distance |
|---|---|---|---|
| Thorns Community Infant School | Community School | Good | 0.20 KM |
| Kenilworth Nursery School & Early Years Training Centre | Local Authority Nursery School | Outstanding | 0.69 KM |
| St Nicholas Cofe Primary School | Voluntary Controlled School | Good | 0.96 KM |
| Kenilworth School And Sixth Form | Academy Converter | 1.24 KM | |
| St John'S Primary School | Community School | Good | 1.27 KM |
Images
Nearby Streets
| Name | Average Price | Average Sqft | Distance |
|---|---|---|---|
| Brooke Road | £ 750,000 | 0 | 0.00 KM |
| Denemoor Court | £ 0 | 0 | 0.00 KM |
| Thomas Bates Road | £ 0 | 0 | 0.00 KM |
| Pennington Way | £ 0 | 0 | 0.00 KM |
| St John's Avenue | £ 0 | 0 | 0.00 KM |
Nearby Transport
| Name | NLC | TLC | Distance |
|---|---|---|---|
| Kenilworth | 7985 | KNW | 0.43 KM |
| Warwick | 4600 | WRW | 6.15 KM |
| Tile Hill | 1035 | THL | 6.79 KM |
| Canley | 1129 | CNL | 6.98 KM |
| Leamington Spa | 4597 | LMS | 7.24 KM |
Nearby Listings
| Address | Price | Type | Score | Distance |
|---|---|---|---|---|
| Blackthorn Road, Kenilworth | £ 425,000 | BUY | 6 / 10 | 0.00 KM |
| Thornby Avenue, Kenilworth, CV8 | £ 440,000 | BUY | 7 / 10 | 0.04 KM |
| Blackthorn Road, Kenilworth | £ 800,000 | BUY | 7 / 10 | 0.07 KM |
| Thornby Avenue, Kenilworth, CV8 | £ 385,000 | BUY | 6 / 10 | 0.07 KM |
| Blackthorn Road | £ 550,000 | BUY | Unknown | 0.08 KM |
Nearby Properties
| Address | Price | Distance |
|---|---|---|
| 12 Blackthorn Road | £ 385,000 | 0.00 KM |
| 10 Blackthorn Road | £ 400,000 | 0.00 KM |
| 24 Blackthorn Road | £ 290,000 | 0.00 KM |
| 2 Blackthorn Road | £ 297,500 | 0.00 KM |
| 33 Blackthorn Road | £ 370,000 | 0.00 KM |