Winkworth says ..
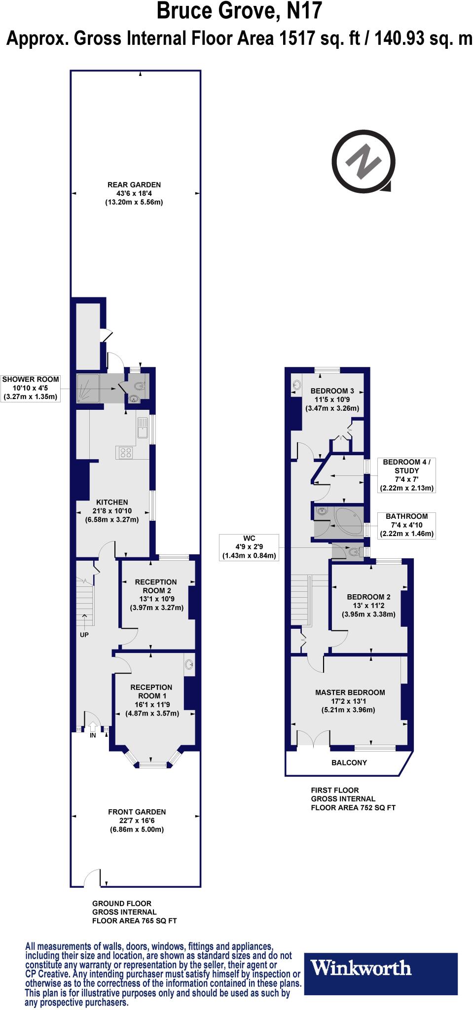
Attractive Victorian Terrace Family House with South-Facing Garden – Chain Free Sole Agent
Property Oracle says ..
Therefore, we give this property 6 / 10. *Disclaimer: This is our option and does constitute a recommendation or financial advice. Do your own research. *
- Price
- 9
- Condition
- 4
- Location
- 7
- Land
- 7
- Bedrooms
- 4
- Bathrooms
- 2
- Sqft (est)
- 2,385.40
The heatmap indicates the level of crime in the area. The color of the heatmap indicates the crime severity and recency.
Metrics Year-on-Year
- Average area value
- 486,429.00 £Decreased by 9.62 %
- Est sale value
- 1,600,603.40 £Decreased by 5.89 %
- Average area rental value
- 1,944.00 £/moDecreased by 2.85 %
- Est letting value
- 4,770.80 £/moUnchanged by 0.00 %
- Est rental Yield
- 4.80 %Increased by 7.62 %
- Crime Rate
- 6.00 %Unchanged by 0.00 %
from 538,187.00 £
from 1,700,790.20 £
from 2,001.00 £/mo
from 4,770.80 £/mo
from 4.46 %
from 6.00 %
Agent Activity
Winkworth created the listing.
Nearby Schools
| Name | Type | Ofsted | Distance |
|---|---|---|---|
| Bruce Grove Primary School | Community School | Good | 0.35 KM |
| Assunnah Primary School | Other Independent School | Inadequate | 0.44 KM |
| Lancasterian Primary School | Community School | Good | 0.58 KM |
| Pembury House Nursery School | Local Authority Nursery School | Outstanding | 0.69 KM |
| Risley Avenue Primary School | Community School | Good | 0.69 KM |
Images
Nearby Streets
| Name | Average Price | Average Sqft | Distance |
|---|---|---|---|
| Edmansons Close | £ 0 | 0 | 0.00 KM |
| Lordsmead Road | £ 0 | 0 | 0.00 KM |
| Church Lane | £ 0 | 0 | 0.00 KM |
| Brook Street | £ 0 | 0 | 0.00 KM |
| Harpers Yard | £ 0 | 0 | 0.00 KM |
Nearby Transport
| Name | NLC | TLC | Distance |
|---|---|---|---|
| Bruce Grove | 6958 | BCV | 0.44 KM |
| White Hart Lane | 6956 | WHL | 0.98 KM |
| Seven Sisters | 6931 | SVS | 1.60 KM |
| Tottenham Hale | 6951 | TOM | 1.71 KM |
| South Tottenham | 7404 | STO | 1.79 KM |
Nearby Listings
| Address | Price | Type | Score | Distance |
|---|---|---|---|---|
| Bruce Grove Road, London, N17 | £ 650,000 | BUY | 6 / 10 | 0.00 KM |
| Elmhurst Road, Tottenham, London | £ 440,000 | BUY | 5 / 10 | 0.04 KM |
| Elmhurst Road, London | £ 360,000 | BUY | Unknown | 0.04 KM |
| 3(A) Elmhurst Road, Tottenham, N17 6RQ | £ 200,000 | BUY | 6 / 10 | 0.05 KM |
| The Avenue, Tottenham, London, N17 | £ 250,000 | BUY | Unknown | 0.08 KM |
Nearby Properties
| Address | Price | Distance |
|---|---|---|
| 25 Bruce Grove | £ 141,000 | 0.02 KM |
| 18b Bruce Grove | £ 170,000 | 0.02 KM |
| 19 Bruce Grove | £ 77,500 | 0.02 KM |
| 20 Bruce Grove | £ 475,000 | 0.02 KM |
| 23 Bruce Grove | £ 190,000 | 0.02 KM |