Winkworth says ..
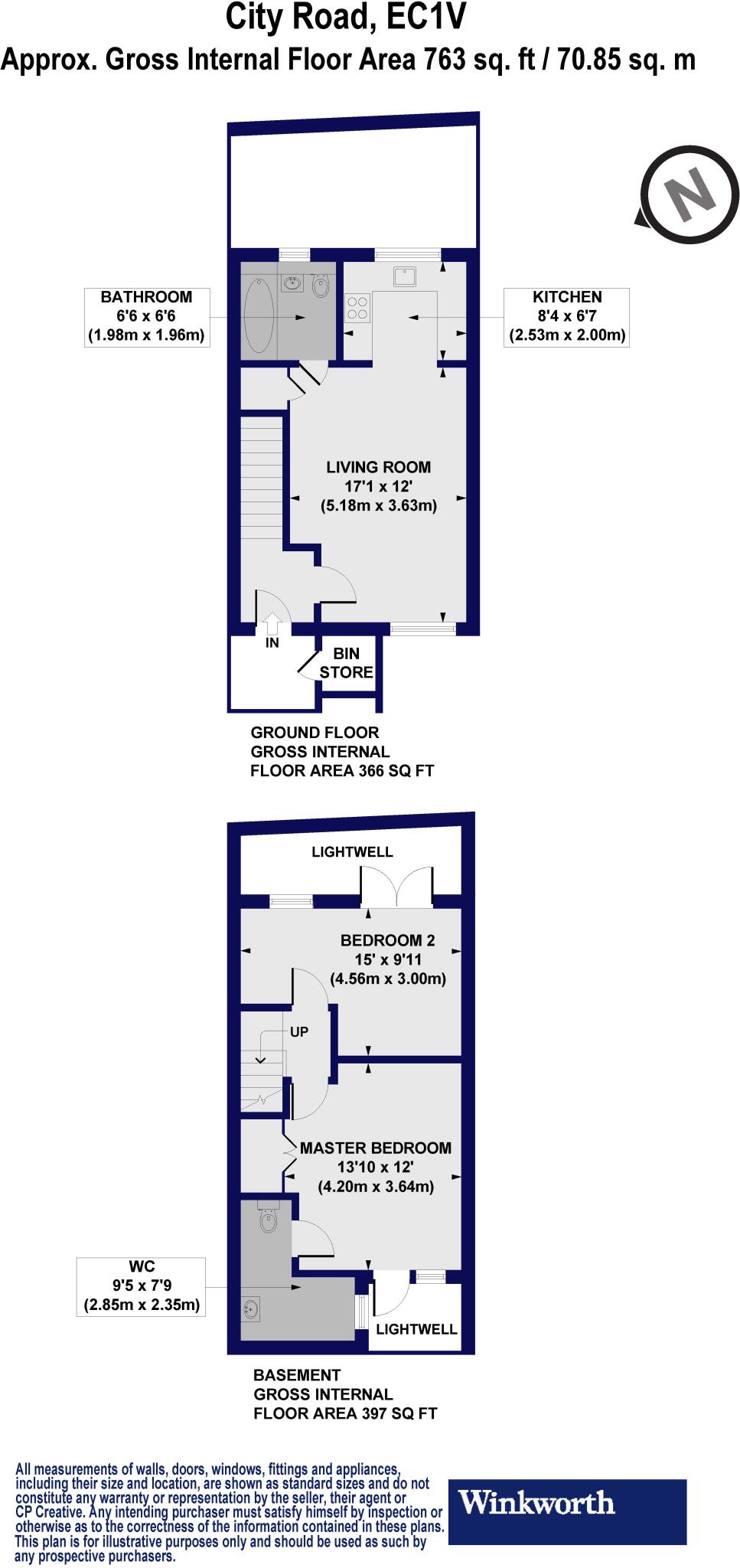
A well-presented, split level, 763 sq.ft., two-bedroom, two-bathroom maisonette with two private courtyards only 0.4 miles from Angel station. Forming part of a small boutique development built over an old pub around 2007, the property is located just off City Road with the entrance be...
Property Oracle says ..
Therefore, we give this property 5 / 10. *Disclaimer: This is our option and does constitute a recommendation or financial advice. Do your own research. *
- Price
- 3
- Condition
- 8
- Location
- 8
- Land
- 4
- Bedrooms
- 2
- Bathrooms
- 2
- Sqft (est)
- 688.00
The heatmap indicates the level of crime in the area. The color of the heatmap indicates the crime severity and recency.
Metrics Year-on-Year
- Average area value
- 489,766.00 £Increased by 6.36 %
- Est sale value
- 476,784.00 £Increased by 54.34 %
- Average area rental value
- 2,264.00 £/moIncreased by 11.14 %
- Est letting value
- 2,064.00 £/moIncreased by 200.00 %
- Est rental Yield
- 5.55 %Increased by 4.52 %
- Crime Rate
- 4.00 %Unchanged by 0.00 %
from 460,462.00 £
from 308,912.00 £
from 2,037.00 £/mo
from 688.00 £/mo
from 5.31 %
from 4.00 %
Agent Activity
Winkworth created the listing.
Nearby Schools
| Name | Type | Ofsted | Distance |
|---|---|---|---|
| Moreland Children'S Centre | Children's Centre | 0.22 KM | |
| Moreland Primary School | Community School | Good | 0.26 KM |
| Hanover Primary School | Community School | Good | 0.31 KM |
| City University | Higher Education Institutions | 0.40 KM | |
| Nas Vanguard School | Free Schools Special | 0.56 KM |
Images
Nearby Streets
| Name | Average Price | Average Sqft | Distance |
|---|---|---|---|
| New Charles Street | £ 0 | 0 | 0.00 KM |
| Spencer Street | £ 0 | 0 | 0.00 KM |
| Goswell Place | £ 0 | 0 | 0.00 KM |
| Earlstoke Street | £ 635,000 | 0 | 0.00 KM |
| Saint Peter's Street | £ 0 | 0 | 0.00 KM |
Nearby Transport
| Name | NLC | TLC | Distance |
|---|---|---|---|
| Essex Road | 6004 | EXR | 1.20 KM |
| Farringdon | 577 | ZFD | 1.29 KM |
| Old Street | 6003 | OLD | 1.39 KM |
| Highbury And Islington | 6009 | HHY | 1.78 KM |
| Moorgate | 6005 | MOG | 1.83 KM |
Nearby Listings
| Address | Price | Type | Score | Distance |
|---|---|---|---|---|
| City Road, London, EC1V | £ 650,000 | BUY | 5 / 10 | 0.00 KM |
| Remington Street, Islington, N1 | £ 1,150,000 | BUY | Unknown | 0.03 KM |
| Oakley Crescent, London, EC1V | £ 650,000 | BUY | 6 / 10 | 0.05 KM |
| City Road, Islington, London, EC1V | £ 690,000 | BUY | 6 / 10 | 0.05 KM |
| Oakley Crescent, City | £ 790,000 | BUY | 6 / 10 | 0.05 KM |
Nearby Properties
| Address | Price | Distance |
|---|---|---|
| 27 Remington Street | £ 1,248,000 | 0.02 KM |
| 31b Remington Street | £ 214,000 | 0.02 KM |
| 33a Remington Street | £ 210,000 | 0.02 KM |
| 25 Remington Street | £ 625,000 | 0.02 KM |
| 23 Remington Street | £ 1,355,000 | 0.02 KM |