Mount Pleasant Terrace, Southville, Bristol
By Ocean
£ 230,000
Reviews
3 out of 5 stars
Ocean says ..
A beautiful one-bedroom property on Mount Pleasant Terrace in Southville is being sold with no onward chain!
Property Oracle says ..
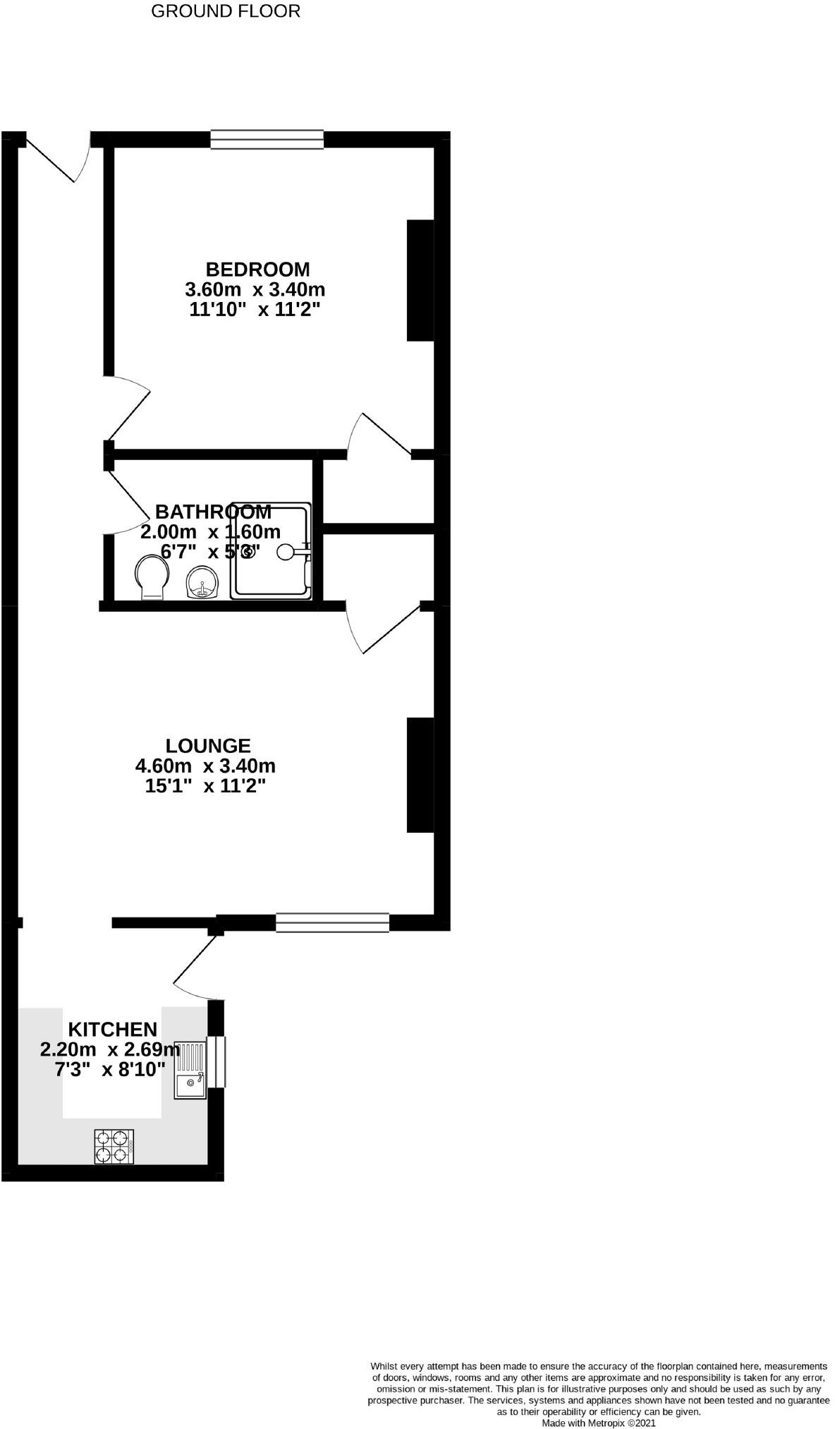
This property is a one-bedroom, one-bathroom terraced house located in Southville, Bristol. The property is situated on Mount Pleasant Terrace and benefits from being close to local amenities and transport links. While the property itself is relatively small (398.26 sqft), the images suggest it has been recently renovated or updated to a good standard. It also includes a small, private rear courtyard. However, the list price of £230,000 is significantly below the average price for the area (£361,436), and the average price per sqft is also much lower than the area average (£396). Nearby comparable properties are listed at much higher prices, suggesting this property may be underpriced, though further investigation into the specifics of those properties would be needed to confirm this. The lack of plot size information makes it difficult to fully assess the land score.
Therefore, we give this property 6 / 10. *Disclaimer: This is our option and does constitute a recommendation or financial advice. Do your own research. *
- Price
- 6
- Condition
- 8
- Location
- 7
- Land
- 3
- Bedrooms
- 1
- Bathrooms
- 1
- Sqft (est)
- 398.26
The heatmap indicates the level of crime in the area. The color of the heatmap indicates the crime severity and recency.
Metrics Year-on-Year
- Average area value
- 347,833.00 £Decreased by 12.30 %
- Est sale value
- 165,277.90 £Decreased by 4.16 %
- Average area rental value
- 1,855.00 £/moIncreased by 23.17 %
- Est letting value
- 796.52 £/moIncreased by 100.00 %
- Est rental Yield
- 6.40 %Increased by 40.35 %
- Crime Rate
- 3.00 %Unchanged by 0.00 %
Agent Activity
Ocean created the listing.
Nearby Schools
| Name | Type | Ofsted | Distance |
|---|---|---|---|
| Southville Primary School | Community School | Good | 0.23 KM |
| Compass Point: South Street School & Children'S Centre | Children's Centre | 0.34 KM | |
| Compass Point Primary School | Academy Converter | 0.39 KM | |
| Holy Cross Rc Primary School | Voluntary Aided School | Good | 0.56 KM |
| Luckwell Primary School | Academy Sponsor Led | 0.99 KM |
Images
Nearby Streets
| Name | Average Price | Average Sqft | Distance |
|---|---|---|---|
| Gladstone Street | £ 455,000 | 0 | 0.00 KM |
| Diamond Street | £ 450,000 | 0 | 0.00 KM |
| Frances Mews | £ 0 | 0 | 0.00 KM |
| Norfolk ? | £ 325,000 | 0 | 0.00 KM |
| Cumberland Court | £ 0 | 0 | 0.00 KM |
Nearby Transport
| Name | NLC | TLC | Distance |
|---|---|---|---|
| Parson Street | 3246 | PSN | 0.95 KM |
| Bedminster | 3245 | BMT | 1.18 KM |
| Clifton Down | 3202 | CFN | 2.69 KM |
| Bristol Temple Meads | 3231 | BRI | 2.73 KM |
| Redland | 3247 | RDA | 3.07 KM |
Nearby Listings
| Address | Price | Type | Score | Distance |
|---|---|---|---|---|
| Mount Pleasant Terrace, Southville, Bristol | £ 230,000 | BUY | 6 / 10 | 0.00 KM |
| Mount Pleasant Terrace, Southville | £ 240,000 | BUY | 7 / 10 | 0.01 KM |
| 18 Greville Street, Southville, Bristol | £ 520,000 | BUY | 7 / 10 | 0.04 KM |
| Greville Street, Bristol, BS3 | £ 600,000 | BUY | Unknown | 0.05 KM |
| Greville Street, Southville, BRISTOL, BS3 | £ 600,000 | BUY | 8 / 10 | 0.05 KM |
Nearby Properties
| Address | Price | Distance |
|---|---|---|
| 22 Greville Street | £ 186,000 | 0.04 KM |
| 21 Greville Street | £ 287,500 | 0.04 KM |
| 7 Greville Street | £ 159,500 | 0.04 KM |
| 18 Greville Street | £ 422,500 | 0.04 KM |
| 23 Greville Street | £ 450,000 | 0.04 KM |