Newlands Drive, Walmer, CT14
By Jenkinson Estates
£ 290,000
Reviews
3 out of 5 stars
Jenkinson Estates says ..
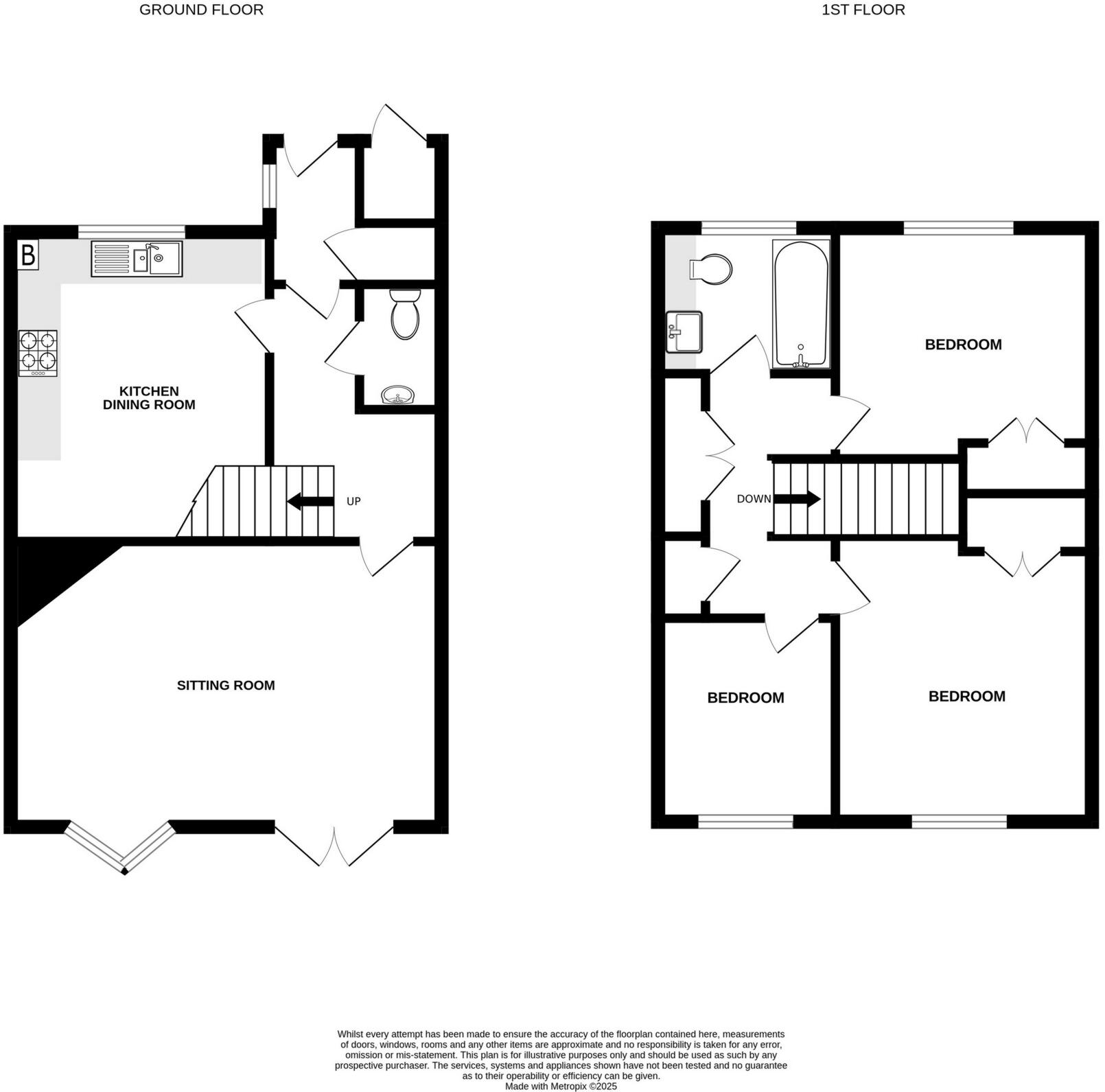
Jenkinson Estates are pleased to bring to the market this charming home in the ever popular location of Newlands Drive, Walmer. This particular home, which is tastefully presented, really must be viewed to be appreciated. Accessed into via an entrance porch, the property leads to a kitchen / dini...
Property Oracle says ..
This is a three-bedroom terraced house in Walmer, Kent. The property benefits from a modern kitchen and bathroom, and a garden. While some interior aspects might need updating, the house appears to be in good condition overall. The location is convenient, with access to local amenities, schools, and transportation links. The asking price of £290,000 seems reasonable for the area and the property’s features.
Therefore, we give this property 7 / 10. *Disclaimer: This is our option and does constitute a recommendation or financial advice. Do your own research. *
- Price
- 8
- Condition
- 7
- Location
- 7
- Land
- 6
- Bedrooms
- 3
- Bathrooms
- 2
- Sqft (est)
- 850.00
The heatmap indicates the level of crime in the area. The color of the heatmap indicates the crime severity and recency.
Metrics Year-on-Year
- Average area value
- 438,880.00 £Increased by 10.49 %
- Est sale value
- 381,650.00 £Increased by 19.10 %
- Average area rental value
- 1,343.00 £/moIncreased by 11.73 %
- Est letting value
- 850.00 £/moUnchanged by 0.00 %
- Est rental Yield
- 3.67 %Increased by 1.10 %
- Crime Rate
- 13.00 %Unchanged by 0.00 %
Agent Activity
Jenkinson Estates created the listing.
Nearby Schools
| Name | Type | Ofsted | Distance |
|---|---|---|---|
| Blossom Children'S Centre | Children's Centre | 0.96 KM | |
| The Downs Church Of England Primary School | Academy Converter | 0.98 KM | |
| Kingsdown And Ringwould Church Of England Primary School | Academy Converter | Outstanding | 1.74 KM |
| Deal Parochial Church Of England Primary School | Academy Converter | 1.78 KM | |
| Goodwin Academy | Academy Sponsor Led | 1.85 KM |
Images
Nearby Streets
| Name | Average Price | Average Sqft | Distance |
|---|---|---|---|
| Sea View Avenue | £ 0 | 0 | 0.00 KM |
| Millers Road | £ 450,000 | 0 | 0.00 KM |
| St. Mildreds Court | £ 350,000 | 0 | 0.00 KM |
| Garden Mews | £ 0 | 0 | 0.00 KM |
| Dorset Gardens | £ 0 | 0 | 0.00 KM |
Nearby Transport
| Name | NLC | TLC | Distance |
|---|---|---|---|
| Walmer | 5041 | WAM | 0.73 KM |
| Deal | 5011 | DEA | 2.90 KM |
| Martin Mill | 5040 | MTM | 5.43 KM |
| Sandwich | 5026 | SDW | 9.33 KM |
Nearby Listings
| Address | Price | Type | Score | Distance |
|---|---|---|---|---|
| Newlands Drive, Walmer, Deal, Kent, CT14 7XB | £ 325,000 | BUY | 7 / 10 | 0.00 KM |
| Newlands Drive, Walmer, CT14 | £ 290,000 | BUY | 7 / 10 | 0.00 KM |
| Newlands Drive, Walmer, Deal, Kent, CT14 | £ 350,000 | BUY | 7 / 10 | 0.02 KM |
| Newlands Drive, Walmer, Deal, Kent | £ 325,000 | BUY | 6 / 10 | 0.05 KM |
| Upper Walmer | £ 875,000 | BUY | 7 / 10 | 0.07 KM |
Nearby Properties
| Address | Price | Distance |
|---|---|---|
| 12 Newlands Drive | £ 350,000 | 0.05 KM |
| 19 Newlands Drive | £ 246,571 | 0.05 KM |
| 18 Newlands Drive | £ 90,000 | 0.05 KM |
| 25 Newlands Drive | £ 227,092 | 0.05 KM |
| 20 Newlands Drive | £ 195,000 | 0.05 KM |