Hunter French says ..
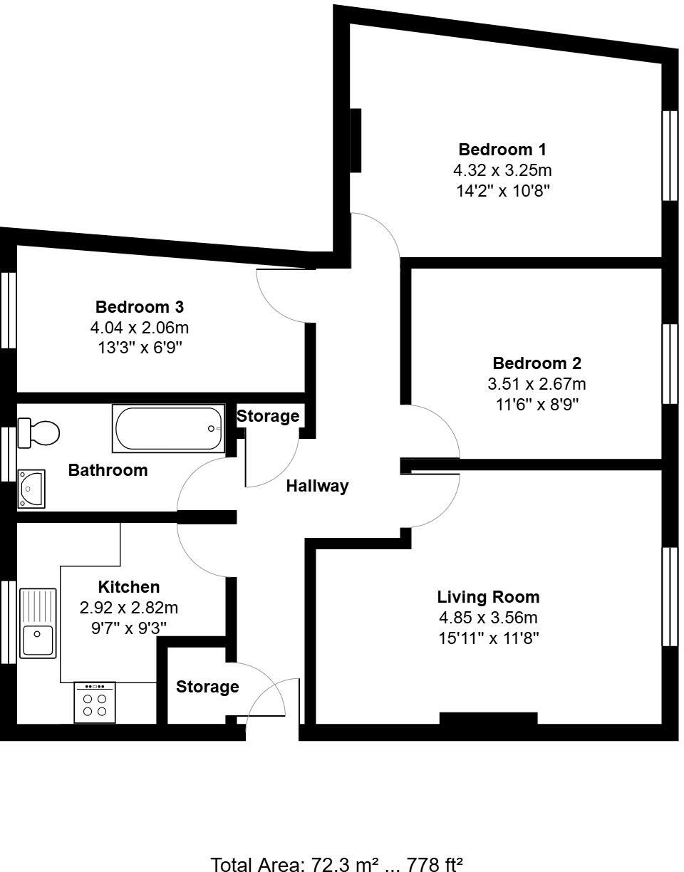
A spacious three-bedroom first-floor apartment situated in the heart of town. Boasting charming period features and large sash windows, this characterful property is offered with no onward chain.
Property Oracle says ..
Therefore, we give this property 5 / 10. *Disclaimer: This is our option and does constitute a recommendation or financial advice. Do your own research. *
- Price
- 7
- Condition
- 7
- Location
- 8
- Land
- 1
- Bedrooms
- 3
- Bathrooms
- 1
- Sqft (est)
- 616.02
The heatmap indicates the level of crime in the area. The color of the heatmap indicates the crime severity and recency.
Metrics Year-on-Year
- Average area value
- 283,000.00 £Decreased by 21.70 %
- Est sale value
- 234,087.60 £Increased by 38.69 %
- Average area rental value
- 1,134.00 £/moIncreased by 19.24 %
- Est letting value
- 616.02 £/mo
- Est rental Yield
- 4.81 %Increased by 52.22 %
- Crime Rate
- 43.00 %Unchanged by 0.00 %
from 361,433.00 £
from 168,789.48 £
from 951.00 £/mo
from 0.00 £/mo
from 3.16 %
from 43.00 %
Agent Activity
Hunter French created the listing.
Nearby Schools
| Name | Type | Ofsted | Distance |
|---|---|---|---|
| Vallis First School | Community School | Good | 0.27 KM |
| Avanti Park School | Free Schools | 0.27 KM | |
| Wessex Lodge School | Other Independent Special School | Good | 0.34 KM |
| St Louis Catholic Primary School, Frome | Voluntary Aided School | Good | 0.35 KM |
| St John'S Church Of England Voluntary Aided First School, Frome | Voluntary Aided School | Good | 0.77 KM |
Images
Nearby Streets
| Name | Average Price | Average Sqft | Distance |
|---|---|---|---|
| High Street | £ 200,000 | 0 | 0.00 KM |
| Morgan's Lane | £ 0 | 0 | 0.00 KM |
| Sheppard's Barton | £ 0 | 0 | 0.00 KM |
| Broadway | £ 0 | 0 | 0.00 KM |
| Castle Court | £ 0 | 0 | 0.00 KM |
Nearby Transport
| Name | NLC | TLC | Distance |
|---|---|---|---|
| Frome | 5707 | FRO | 1.82 KM |
Nearby Listings
| Address | Price | Type | Score | Distance |
|---|---|---|---|---|
| Catherine Street, Frome | £ 225,000 | BUY | 5 / 10 | 0.00 KM |
| Catherine Street, Frome, Frome, BA11 | £ 465,000 | BUY | 6 / 10 | 0.05 KM |
| Catherine Street, Frome, Somerset, BA11 | £ 175,000 | BUY | 5 / 10 | 0.05 KM |
| High Street, Frome, Somerset, BA11 | £ 599,950 | BUY | 6 / 10 | 0.05 KM |
| Hoopers Barton, Frome, Somerset, BA11 | £ 199,500 | BUY | 6 / 10 | 0.06 KM |
Nearby Properties
| Address | Price | Distance |
|---|---|---|
| 2 Catherine Street Mews | £ 99,000 | 0.04 KM |
| 7a Catherine Street | £ 263,500 | 0.06 KM |
| 42a Catherine Street | £ 95,000 | 0.06 KM |
| 43a Catherine Street | £ 300,000 | 0.06 KM |
| 13 Catherine Street | £ 238,000 | 0.06 KM |