Sandfield Lane, Sedgeberrow, Worcestershire, WR11
Hayman-Joyce Broadway logo

Sandfield Lane, Sedgeberrow, Worcestershire, WR11

By Hayman-Joyce Broadway

£ 525,000

Reviews

3 out of 5 stars

Hayman-Joyce Broadway says ..

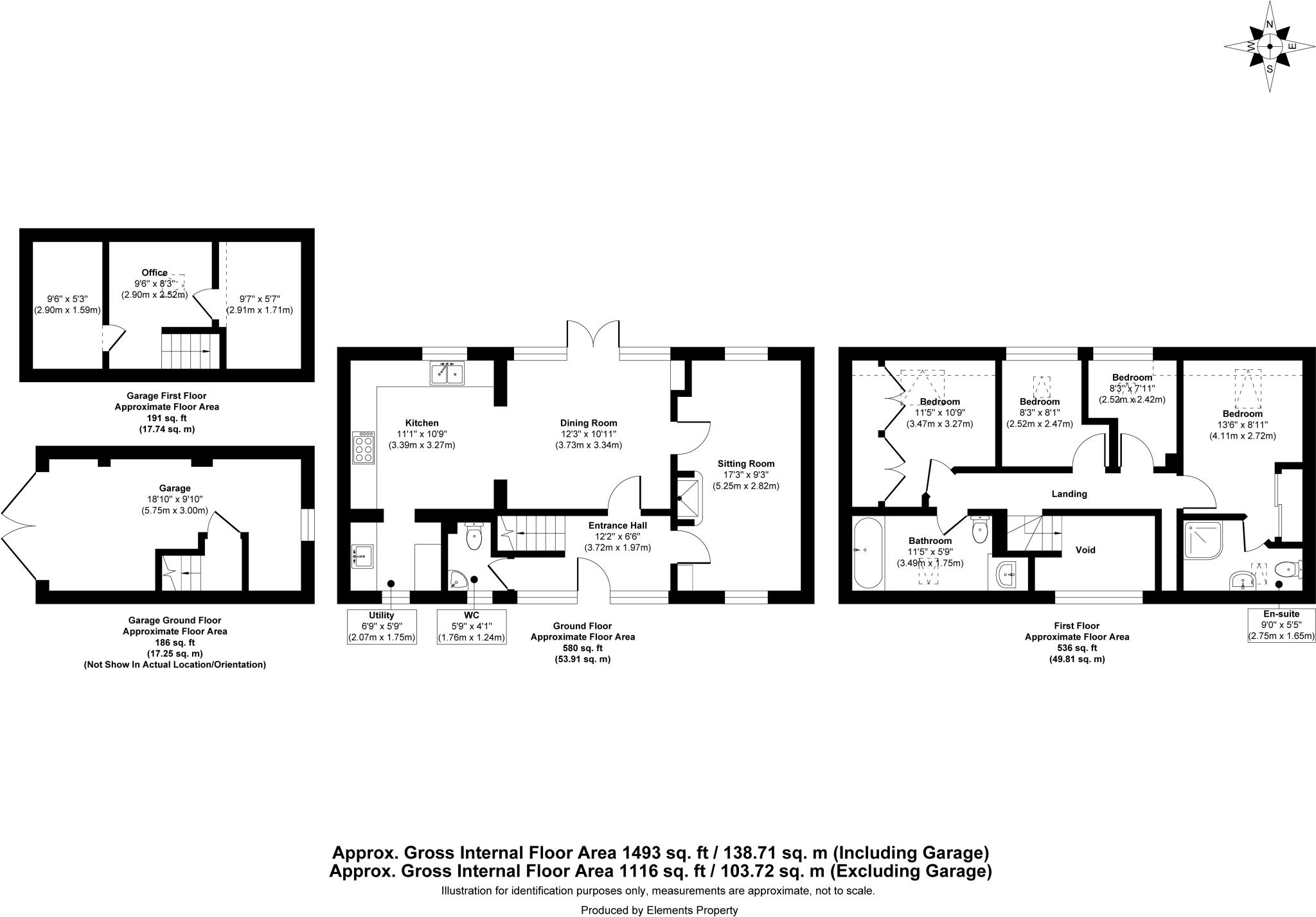
A rare opportunity to acquire a charming home set in a sought after semi-rural, with planning permission in place, to create an enhanced and versatile living space Accommodation comprises; Entrance hall, cloakroom, sitting room, open plan kitchen/dining room, utility, master bedroom wi...

Property Oracle says ..

This is a well-presented barn conversion in a desirable Worcestershire village. The property offers a blend of period charm and modern living, with a spacious interior and a large garden. The location provides a rural lifestyle while remaining accessible to nearby towns and transport links. The property includes four bedrooms and two bathrooms, making it suitable for families. The conversion has been done to a high standard, with modern kitchen and bathroom fittings. The large garden is a significant asset, offering plenty of space for outdoor activities and relaxation. The price reflects the quality and location of the property, although it is above the average price per square foot for the area.

Therefore, we give this property 7 / 10. *Disclaimer: This is our option and does constitute a recommendation or financial advice. Do your own research. *

Price
7
Condition
8
Location
7
Land
9
Bedrooms
4
Bathrooms
2
Sqft (est)
1,493.06

The heatmap indicates the level of crime in the area. The color of the heatmap indicates the crime severity and recency.

Metrics Year-on-Year

Average area value
228,000.00 £
Increased by 7.96 %
from 211,190.00 £
Est sale value
331,459.32 £
Increased by 48.00 %
from 223,959.00 £
Average area rental value
776.00 £/mo
Decreased by 23.55 %
from 1,015.00 £/mo
Est letting value
0.00 £/mo
from 0.00 £/mo
Est rental Yield
4.08 %
Decreased by 29.29 %
from 5.77 %
Crime Rate
0.00 %
from 0.00 %

Agent Activity

  • Hayman-Joyce Broadway created the listing.

Nearby Schools

NameTypeOfstedDistance
Bredon Hill AcademyAcademy Converter1.65 KM
Sedgeberrow Cofe First SchoolVoluntary Controlled SchoolOutstanding2.11 KM
Ashton-Under-Hill First SchoolCommunity SchoolGood2.33 KM
St Andrew'S Ce SchoolVoluntary Controlled SchoolGood4.67 KM
Elmley Castle Cofe First SchoolVoluntary Controlled SchoolGood4.90 KM

Images

Picture No. 39 Picture No. 49 Picture No. 50 Summer Photographs Summer Photographs Picture No. 54 Proposed Planning Picture No. 55 Picture No. 08 Picture No. 03 Picture No. 05 Picture No. 06 Picture No. 04 Picture No. 01 Picture No. 02 Picture No. 37 Picture No. 09 Picture No. 17 Picture No. 18 Picture No. 19 Picture No. 20 Picture No. 10 Picture No. 15 Picture No. 12 Picture No. 13 Picture No. 24

Nearby Streets

NameAverage PriceAverage SqftDistance
Churchill Road £ 000.00 KM

Nearby Transport

NameNLCTLCDistance
Evesham4740EVE6.89 KM

Nearby Listings

AddressPriceTypeScoreDistance
Sandfield Lane, Sedgeberrow, Worcestershire, WR11 £ 525,000BUY7 / 100.00 KM
Sandfield Lane, Sedgeberrow, Evesham, WR11 £ 825,000BUY7 / 100.13 KM
Main Street, Sedgeberrow, WR11 £ 165,000BUY5 / 101.45 KM
Bridewell Drive, Sedgeberrow, Evesham, Worcestershire, WR11 £ 395,000BUY7 / 101.50 KM
Churchill Road, Sedgeberrow, Evesham £ 350,000BUY7 / 101.57 KM

Nearby Properties

AddressPriceDistance
13 Cheltenham Road £ 178,0001.35 KM
116 Main Street £ 235,0001.45 KM
114 Main Street £ 185,0001.45 KM
110 Main Street £ 208,5001.45 KM
111 Main Street £ 225,0001.47 KM