Pearsons says ..
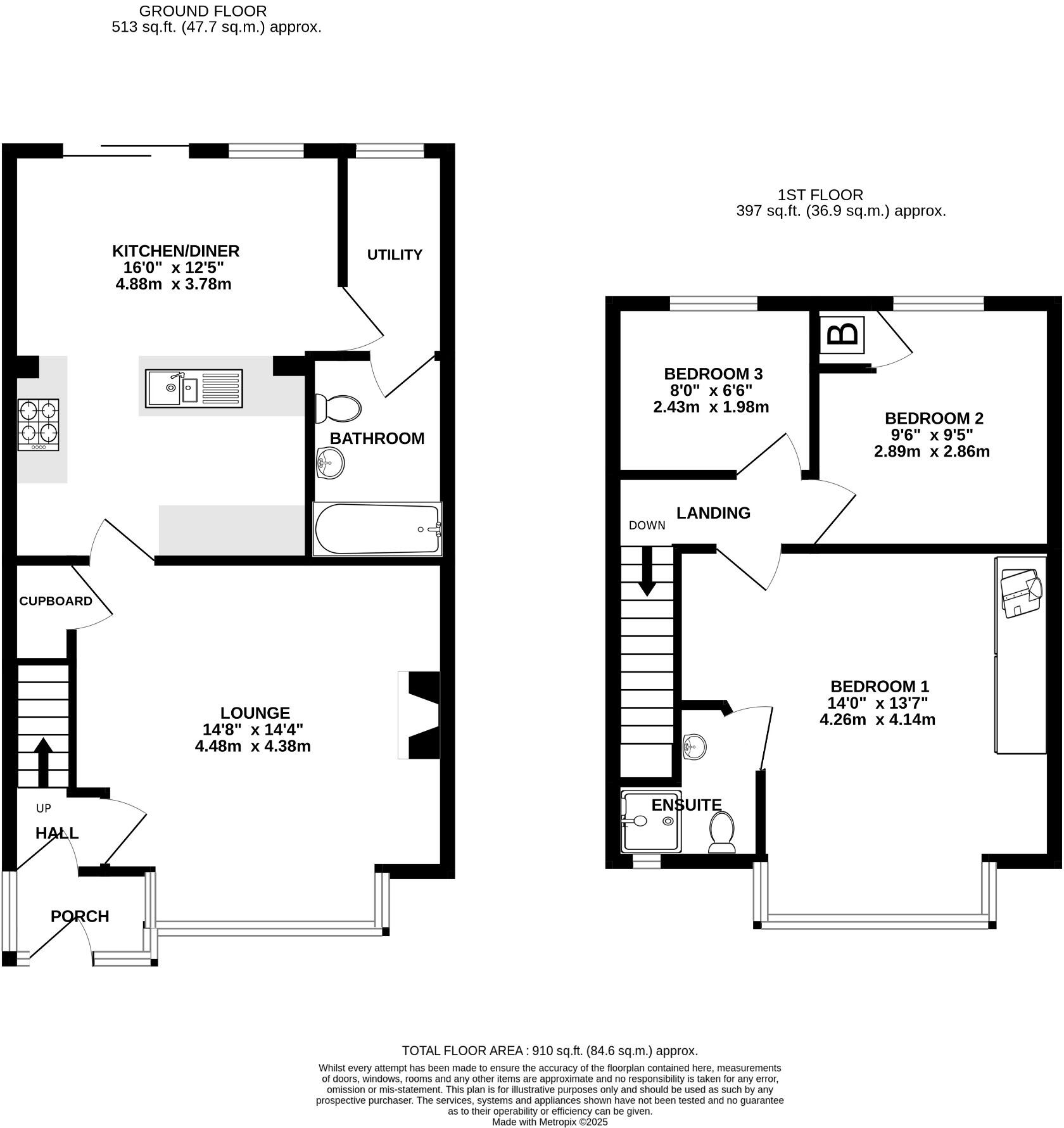
This extended three bedroom double bay fronted house is located to the south of Fareham town centre and within easy reach of Fareham Creek. The well-presented internal accommodation comprises; porch, hall, lounge with a bay window, 16' kitchen/diner with patio doors onto the rear garden, utility ...
Property Oracle says ..
The property is a 3-bedroom, 2-bathroom terraced house located in Geoffrey Crescent, Fareham, Hampshire. It has a list price of £279,950 and is 910 sqft. The property benefits from a garden. The property appears to be in good condition. The interior is well-maintained and modern, with updated kitchen and bathrooms. The exterior also looks to be in good order. The location is good, with nearby schools (Redlands Primary School is Outstanding and within 0.42 KM), and transport links (Fareham Train Station is 1.60 KM away). Considering the average price of similar properties in the area (£332,023) and the average price per sqft (£331), the list price of £279,950 seems reasonable, especially given the property’s good condition and the inclusion of a garden. However, the lack of sqft data for comparable properties makes a precise price comparison difficult.
Therefore, we give this property 7 / 10. *Disclaimer: This is our option and does constitute a recommendation or financial advice. Do your own research. *
- Price
- 7
- Condition
- 8
- Location
- 8
- Land
- 7
- Bedrooms
- 3
- Bathrooms
- 2
- Sqft (est)
- 910.00
The heatmap indicates the level of crime in the area. The color of the heatmap indicates the crime severity and recency.
Metrics Year-on-Year
- Average area value
- 381,429.00 £Increased by 14.83 %
- Est sale value
- 404,950.00 £Increased by 39.06 %
- Average area rental value
- 1,375.00 £/moIncreased by 14.30 %
- Est letting value
- 910.00 £/moUnchanged by 0.00 %
- Est rental Yield
- 4.33 %Decreased by 0.46 %
- Crime Rate
- 9.00 %Unchanged by 0.00 %
Agent Activity
Pearsons created the listing.
Nearby Schools
| Name | Type | Ofsted | Distance |
|---|---|---|---|
| Redlands Primary School | Community School | Outstanding | 0.42 KM |
| Woodcot Primary School | Academy Converter | 1.23 KM | |
| The Key Education Centre | Pupil Referral Unit | Good | 1.23 KM |
| Kingsgate School | Other Independent Special School | Good | 1.44 KM |
| Merryfields Children'S Centre | Children's Centre | 1.53 KM |
Images
Nearby Streets
| Name | Average Price | Average Sqft | Distance |
|---|---|---|---|
| Salterns Lane | £ 0 | 0 | 0.00 KM |
| Access Road | £ 0 | 0 | 0.00 KM |
| Frankport Way | £ 150,000 | 0 | 0.00 KM |
| Parker View | £ 0 | 0 | 0.00 KM |
| The Moorings | £ 0 | 0 | 0.00 KM |
Nearby Transport
| Name | NLC | TLC | Distance |
|---|---|---|---|
| Fareham | 5900 | FRM | 1.60 KM |
| Portchester | 5928 | PTC | 6.57 KM |
| Portsmouth Harbour | 5540 | PMH | 9.70 KM |
| Swanwick | 5920 | SNW | 9.89 KM |
Nearby Listings
| Address | Price | Type | Score | Distance |
|---|---|---|---|---|
| GEOFFREY CRESCENT, FAREHAM | £ 279,950 | BUY | 7 / 10 | 0.00 KM |
| Geoffrey Crescent, Fareham | £ 335,000 | BUY | 7 / 10 | 0.04 KM |
| 281 Gosport Rd, Fareham PO16 0QF | £ 180,000 | BUY | 6 / 10 | 0.08 KM |
| Gosport Road, Fareham, Hampshire, PO16 | £ 190,000 | BUY | 6 / 10 | 0.16 KM |
| Gosport Road, Fareham, Hampshire, PO16 | £ 250,000 | BUY | 7 / 10 | 0.16 KM |
Nearby Properties
| Address | Price | Distance |
|---|---|---|
| 19 Geoffrey Crescent | £ 175,000 | 0.04 KM |
| 3 Geoffrey Crescent | £ 280,000 | 0.04 KM |
| 11 Geoffrey Crescent | £ 224,375 | 0.04 KM |
| 4 Geoffrey Crescent | £ 169,000 | 0.04 KM |
| 23 Geoffrey Crescent | £ 204,950 | 0.04 KM |