Hinton & Downes says ..
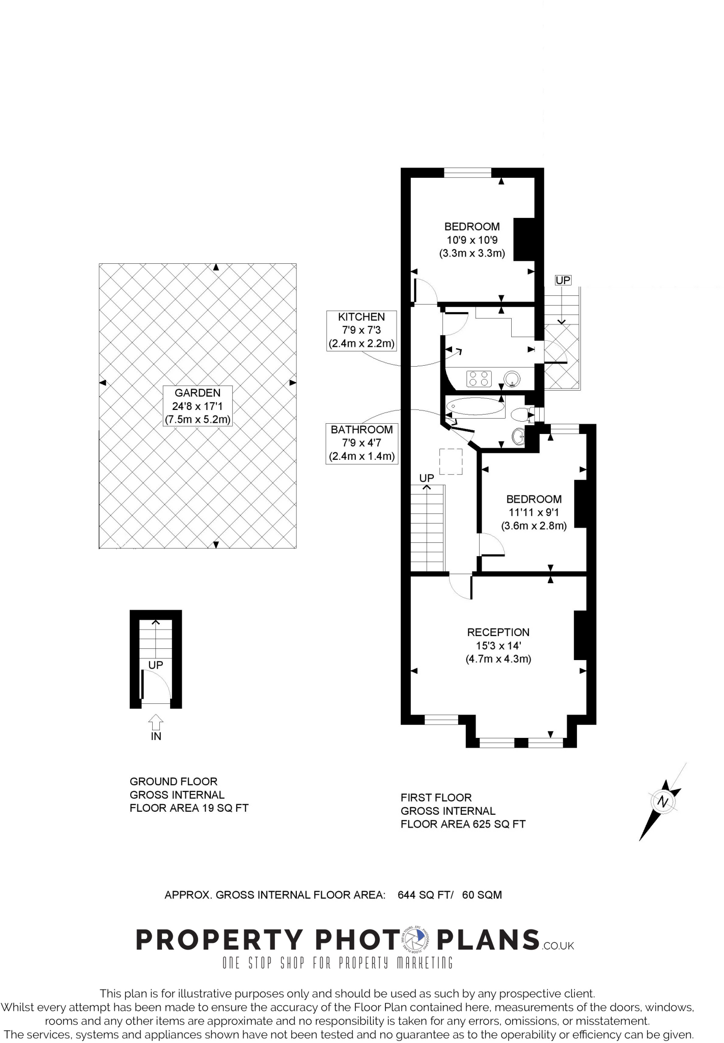
A well presented TWO DOUBLE BEDROOM first floor apartment with it's own front door and direct access to a private section of garden located within 0.4 miles from Harrow and Wealdstone Station (Bakerloo line and overground with fast trains to Euston from 13 minutes) and the amenities of the High S...
Property Oracle says ..
This property is a 2 bedroom, 1 bathroom house located in Harrow, Greater London. Based on the provided images, the property appears to be in good condition, with recently updated interiors and a modern kitchen. The property benefits from a rear garden, which is a desirable feature in this area. The location is convenient, with nearby transportation links to central London via Harrow & Wealdstone station. The proximity to schools is also a positive aspect for families. However, the lack of sqft information prevents a comprehensive analysis of the price per sqft. Comparing to nearby listings, the price seems reasonable considering the property’s condition and location. Further information on the property’s size and a more detailed comparison with similar properties in the area would allow for a more precise valuation.
Therefore, we give this property 7 / 10. *Disclaimer: This is our option and does constitute a recommendation or financial advice. Do your own research. *
- Price
- 7
- Condition
- 8
- Location
- 8
- Land
- 7
- Bedrooms
- 2
- Bathrooms
- 1
- Lot (est)
- 644.00
The heatmap indicates the level of crime in the area. The color of the heatmap indicates the crime severity and recency.
Metrics Year-on-Year
- Average area value
- 341,429.00 £Increased by 9.95 %
- Average area rental value
- 875.00 £/moDecreased by 18.53 %
- Est rental Yield
- 3.08 %Decreased by 25.78 %
- Crime Rate
- 8.00 %Unchanged by 0.00 %
Agent Activity
Hinton & Downes created the listing.
Nearby Schools
| Name | Type | Ofsted | Distance |
|---|---|---|---|
| Whitefriars School | Academy Converter | Outstanding | 0.26 KM |
| Children'S Centre At Whitefriars | Children's Centre Linked Site | 0.29 KM | |
| Salvatorian Roman Catholic College | Academy Converter | Good | 0.37 KM |
| The Sacred Heart Language College | Academy Converter | 0.41 KM | |
| Gange | Children's Centre Linked Site | 0.71 KM |
Images
Nearby Streets
| Name | Average Price | Average Sqft | Distance |
|---|---|---|---|
| Gordon Road | £ 450,000 | 0 | 0.00 KM |
| Orphan Alley | £ 0 | 0 | 0.00 KM |
| Barratt Way | £ 0 | 0 | 0.00 KM |
| Stirling Road | £ 525,000 | 0 | 0.00 KM |
| Park Rise | £ 0 | 0 | 0.00 KM |
Nearby Transport
| Name | NLC | TLC | Distance |
|---|---|---|---|
| Harrow And Wealdstone | 1397 | HRW | 0.68 KM |
| Harrow-On-The-Hill | 598 | HOH | 1.96 KM |
| Headstone Lane | 1434 | HDL | 2.16 KM |
| Kenton | 1399 | KNT | 2.92 KM |
| Hatch End | 1398 | HTE | 3.60 KM |
Nearby Listings
| Address | Price | Type | Score | Distance |
|---|---|---|---|---|
| Graham Road, Harrow | £ 325,000 | BUY | 7 / 10 | 0.00 KM |
| Graham Road | £ 575,000 | BUY | Unknown | 0.02 KM |
| Albers Court, Artisan Place, Harrow, Middlesex, HA3 | £ 335,000 | BUY | Unknown | 0.08 KM |
| Graham Road, Wealdstone | £ 250,000 | BUY | 5 / 10 | 0.09 KM |
| Wolseley Road, Harrow | £ 225,000 | BUY | 5 / 10 | 0.11 KM |
Nearby Properties
| Address | Price | Distance |
|---|---|---|
| 34 Graham Road | £ 560,000 | 0.02 KM |
| 36 Graham Road | £ 158,000 | 0.02 KM |
| 46 Graham Road | £ 220,000 | 0.02 KM |
| 6 Graham Road | £ 275,000 | 0.02 KM |
| 14 Graham Road | £ 285,000 | 0.02 KM |