JTM Homes says ..
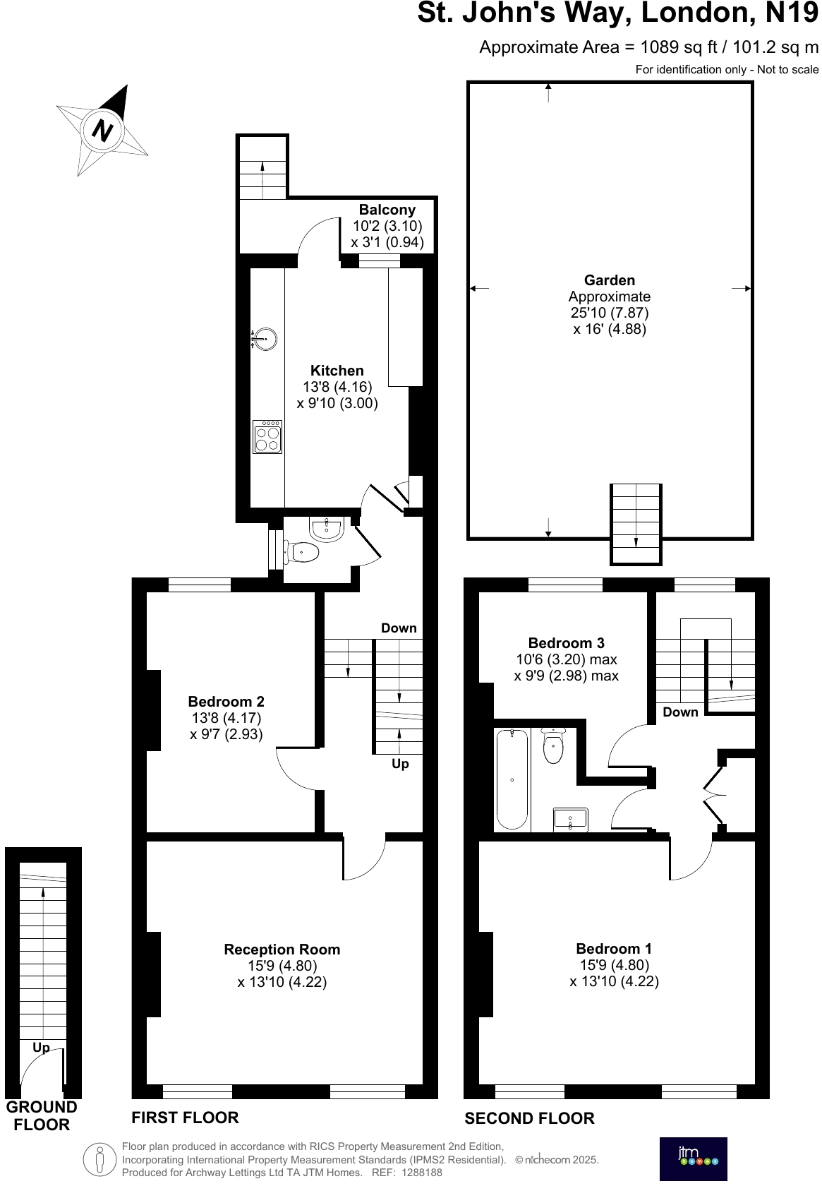
A spacious three bedroom maisonette, arranged over the top two floors of a Victorian house, ideal for a growing family. Being sold chain free, with a share of freehold.
Property Oracle says ..
This three-bedroom apartment is located in the Hillrise area of Islington, a popular and convenient location in North London. The property benefits from a good-sized garden, a rarity for apartments in this area, adding significant value. While the apartment is presented as habitable, the images suggest it could benefit from some modernisation and updating to enhance its overall appeal and value. The kitchen and some rooms show signs of wear and tear, and a refresh would likely improve the property’s condition score. Transport links are good, with several Overground and Underground stations within a reasonable distance. The list price is above the average for the area, but comparable properties in the vicinity support the pricing. However, the lack of square footage data for comparable properties makes a precise price comparison challenging. The apartment’s size and location, coupled with the garden, justify a higher price than the area average.
Therefore, we give this property 7 / 10. *Disclaimer: This is our option and does constitute a recommendation or financial advice. Do your own research. *
- Price
- 7
- Condition
- 7
- Location
- 8
- Land
- 8
- Bedrooms
- 3
- Bathrooms
- 1
- Sqft (est)
- 801.00
- Lot (est)
- 1,089.00
The heatmap indicates the level of crime in the area. The color of the heatmap indicates the crime severity and recency.
Metrics Year-on-Year
- Average area value
- 575,000.00 £Decreased by 30.23 %
- Est sale value
- 612,765.00 £Increased by 51.79 %
- Average area rental value
- 2,509.00 £/moIncreased by 9.42 %
- Est letting value
- 2,403.00 £/moIncreased by 200.00 %
- Est rental Yield
- 5.24 %Increased by 56.89 %
- Crime Rate
- 7.00 %Unchanged by 0.00 %
Agent Activity
JTM Homes created the listing.
Nearby Schools
| Name | Type | Ofsted | Distance |
|---|---|---|---|
| City Of London Academy, Highgate Hill | Free Schools | 0.29 KM | |
| Whitehall Park School | Free Schools | Good | 0.51 KM |
| St John'S Upper Holloway Cofe Primary School | Voluntary Aided School | Good | 0.58 KM |
| Archway Children'S Centre | Children's Centre | 0.58 KM | |
| New River College Medical | Pupil Referral Unit | Outstanding | 0.68 KM |
Images
Nearby Streets
| Name | Average Price | Average Sqft | Distance |
|---|---|---|---|
| A1 | £ 0 | 0 | 0.00 KM |
| A1 | £ 0 | 0 | 0.00 KM |
| Navigator Square | £ 0 | 0 | 0.00 KM |
| Bovington Close | £ 0 | 0 | 0.00 KM |
| Stanhope Road | £ 550,000 | 0 | 0.00 KM |
Nearby Transport
| Name | NLC | TLC | Distance |
|---|---|---|---|
| Upper Holloway | 1524 | UHL | 0.54 KM |
| Crouch Hill | 7406 | CRH | 1.70 KM |
| Kentish Town | 1553 | KTN | 2.12 KM |
| Gospel Oak | 1409 | GPO | 2.48 KM |
| Kentish Town West | 1449 | KTW | 2.85 KM |
Nearby Listings
| Address | Price | Type | Score | Distance |
|---|---|---|---|---|
| St. John's Way, London | £ 740,000 | BUY | 7 / 10 | 0.00 KM |
| St. John's Way, London, N19 | £ 625,000 | BUY | 7 / 10 | 0.01 KM |
| St. John's Way, London, N19 | £ 580,000 | BUY | 7 / 10 | 0.01 KM |
| Levison Way,N19 | £ 350,000 | BUY | 6 / 10 | 0.06 KM |
| St. John's Way, London, N19 | £ 3,150,000 | BUY | Unknown | 0.10 KM |
Nearby Properties
| Address | Price | Distance |
|---|---|---|
| 67 St Johns Way | £ 290,000 | 0.00 KM |
| 69 St Johns Way | £ 285,000 | 0.00 KM |
| 95 St Johns Way | £ 410,000 | 0.00 KM |
| 12 Lysander Grove | £ 150,000 | 0.05 KM |
| 20 Lysander Grove | £ 1,340,000 | 0.05 KM |