Keating Estates says ..
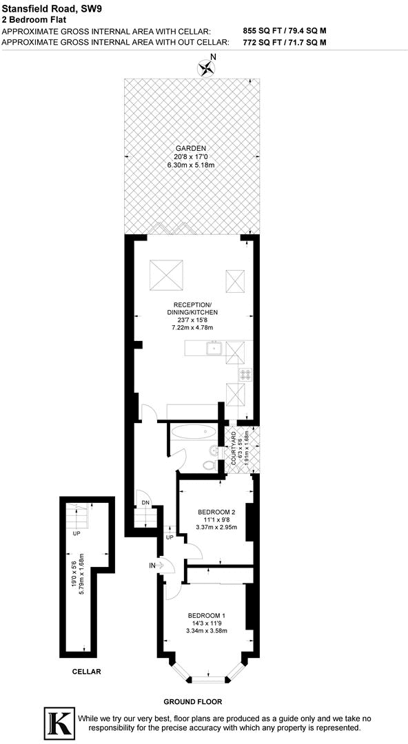
Keating Estates are proud to present to market a remarkable two bedroom garden flat with sauna, occupying the ground floor of a handsome Victorian terraced house, a three-minute walk to central Brixton.
Property Oracle says ..
This two-bedroom ground floor flat on Stansfield Road, SW9, presents itself as a well-maintained and stylish property. The recent renovation or refurbishment is evident in the high-quality finish of the kitchen, bathroom, and interior design. The open-plan living area with access to a private garden is a desirable feature. The location in Ferndale, close to Brixton, offers a convenient access to amenities, transport, and a vibrant community atmosphere. While the garden is a plus, its size appears relatively modest. The property’s proximity to well-regarded schools could appeal to families. Overall, this property presents a compelling option for buyers looking for a well-maintained home with garden in a popular South London location. However, prospective buyers should still conduct independent research to verify the condition and to assess the square footage and value compared to other similar properties in the area as there is a lack of square footage information on similar properties in this area.
Therefore, we give this property 7 / 10. *Disclaimer: This is our option and does constitute a recommendation or financial advice. Do your own research. *
- Price
- 7
- Condition
- 9
- Location
- 8
- Land
- 4
- Bedrooms
- 2
- Bathrooms
- 1
- Sqft (est)
- 854.65
The heatmap indicates the level of crime in the area. The color of the heatmap indicates the crime severity and recency.
Metrics Year-on-Year
- Average area value
- 480,863.00 £Decreased by 12.39 %
- Est sale value
- 744,400.15 £Increased by 44.68 %
- Average area rental value
- 2,528.00 £/moDecreased by 1.83 %
- Est letting value
- 3,418.60 £/moIncreased by 100.00 %
- Est rental Yield
- 6.31 %Increased by 12.08 %
- Crime Rate
- 6.00 %Unchanged by 0.00 %
Agent Activity
Keating Estates created the listing.
Nearby Schools
| Name | Type | Ofsted | Distance |
|---|---|---|---|
| Stockwell Primary School And Children'S Centre | Children's Centre | 0.03 KM | |
| Stockwell Primary School | Community School | Requires improvement | 0.09 KM |
| Lansdowne School | Community Special School | Good | 0.14 KM |
| St Andrew'S Church Of England Primary School | Voluntary Aided School | Good | 0.49 KM |
| St Helen'S Catholic Primary School | Voluntary Aided School | Good | 0.58 KM |
Images
Nearby Streets
| Name | Average Price | Average Sqft | Distance |
|---|---|---|---|
| Stockwell Green Court | £ 0 | 0 | 0.00 KM |
| Sidney Road | £ 550,000 | 0 | 0.00 KM |
| Brixton Station Road | £ 425,000 | 0 | 0.00 KM |
| Bernay's Grove | £ 0 | 0 | 0.00 KM |
| Bucknell Close | £ 502,500 | 0 | 0.00 KM |
Nearby Transport
| Name | NLC | TLC | Distance |
|---|---|---|---|
| Brixton | 5081 | BRX | 0.57 KM |
| Clapham High Street | 5301 | CLP | 1.54 KM |
| Loughborough Junction | 5082 | LGJ | 1.81 KM |
| Wandsworth Road | 5372 | WWR | 2.26 KM |
| Herne Hill | 5066 | HNH | 2.29 KM |
Nearby Listings
| Address | Price | Type | Score | Distance |
|---|---|---|---|---|
| Stansfield Road, London | £ 485,000 | BUY | 6 / 10 | 0.02 KM |
| Stansfield Road, London, SW9 | £ 500,000 | BUY | Unknown | 0.03 KM |
| Burgoyne Road, London, SW9 | £ 875,000 | BUY | Unknown | 0.03 KM |
| Stansfield Road, Stockwell | £ 325,000 | BUY | 6 / 10 | 0.06 KM |
| Stansfield Road, London, SW9 | £ 400,000 | BUY | 5 / 10 | 0.06 KM |
Nearby Properties
| Address | Price | Distance |
|---|---|---|
| 23 Stansfield Road | £ 235,500 | 0.02 KM |
| 27a Stansfield Road | £ 715,000 | 0.02 KM |
| 7 Stansfield Road | £ 725,000 | 0.02 KM |
| 41 Stansfield Road | £ 335,000 | 0.02 KM |
| 21 Stansfield Road | £ 420,000 | 0.02 KM |