TU
Beaker Place, Milton, OX14
By Turner Properties
£ 350,000
Reviews
3 out of 5 stars
Turner Properties says ..
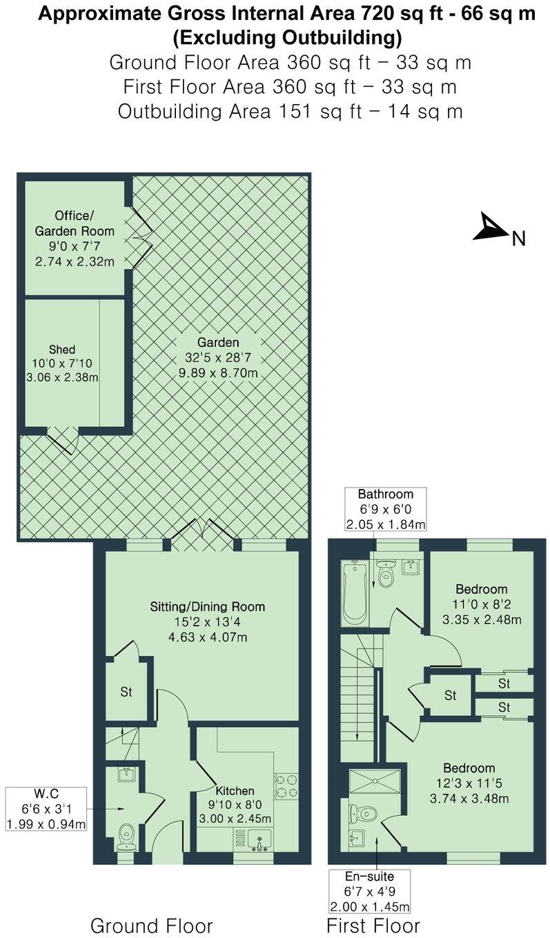
Tucked away in a small and well-regarded development, this beautifully maintained two-bedroom end-of-terrace home offers stylish living in the ever-popular village of Milton.
Property Oracle says ..
Therefore, we give this property 7 / 10. *Disclaimer: This is our option and does constitute a recommendation or financial advice. Do your own research. *
- Price
- 6
- Condition
- 9
- Location
- 7
- Land
- 7
- Bedrooms
- 2
- Bathrooms
- 2
- Sqft (est)
- 752.11
The heatmap indicates the level of crime in the area. The color of the heatmap indicates the crime severity and recency.
Metrics Year-on-Year
- Average area value
- 260,500.00 £Increased by 6.21 %
- Est sale value
- 192,540.16 £Increased by 6.22 %
- Average area rental value
- 1,100.00 £/moIncreased by 0.92 %
- Est letting value
- 752.11 £/moUnchanged by 0.00 %
- Est rental Yield
- 5.07 %Decreased by 4.88 %
- Crime Rate
- 9.00 %Unchanged by 0.00 %
from 245,272.00 £
from 181,258.51 £
from 1,090.00 £/mo
from 752.11 £/mo
from 5.33 %
from 9.00 %
Agent Activity
Turner Properties created the listing.
Nearby Schools
| Name | Type | Ofsted | Distance |
|---|---|---|---|
| Sutton Courtenay Church Of England Primary School | Academy Converter | 1.30 KM | |
| St Blaise Cofe Primary School | Voluntary Controlled School | Good | 1.79 KM |
| Drayton Community Primary School | Community School | Good | 3.03 KM |
| Harwell Primary School | Community School | Good | 3.26 KM |
| Thameside Primary School | Academy Converter | Good | 3.58 KM |
Images
Nearby Streets
| Name | Average Price | Average Sqft | Distance |
|---|---|---|---|
| Little Lane | £ 0 | 0 | 0.00 KM |
| Park Drive | £ 379,995 | 0 | 0.00 KM |
| Park Square | £ 439,995 | 0 | 0.00 KM |
| Milton Road | £ 925,000 | 0 | 0.00 KM |
| A4130 | £ 192,500 | 0 | 0.00 KM |
Nearby Transport
| Name | NLC | TLC | Distance |
|---|---|---|---|
| Appleford | 3109 | APF | 5.81 KM |
| Didcot Parkway | 3030 | DID | 5.98 KM |
| Culham | 3107 | CUM | 6.87 KM |
| Radley | 3118 | RAD | 8.63 KM |
Nearby Listings
| Address | Price | Type | Score | Distance |
|---|---|---|---|---|
| Beaker Place, Milton, OX14 | £ 475,000 | BUY | 7 / 10 | 0.00 KM |
| Beaker Place, Abingdon, OX14 | £ 325,000 | BUY | Unknown | 0.00 KM |
| Beaker Place, Milton, OX14 | £ 475,000 | BUY | Unknown | 0.00 KM |
| Beaker Place, Milton, OX14 | £ 350,000 | BUY | 7 / 10 | 0.00 KM |
| Beaker Place, Milton, OX14 | £ 625,000 | BUY | Unknown | 0.00 KM |
Nearby Properties
| Address | Price | Distance |
|---|---|---|
| 4 Beaker Place | £ 315,000 | 0.02 KM |
| 39 Heather Road | £ 165,000 | 0.18 KM |
| 29 Heather Road | £ 215,000 | 0.18 KM |
| 3 Heather Road | £ 399,950 | 0.18 KM |
| 41 Heather Road | £ 250,000 | 0.18 KM |