Regents Park Road, Primrose Hill, NW1
By Arlington Residential
£ 4,000,000
Reviews
3 out of 5 stars
Arlington Residential says ..
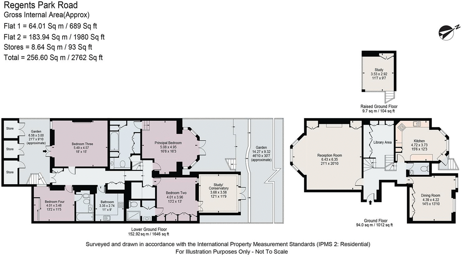
A rare opportunity to acquire a spectacular duplex flat, which will be sold alongside an adjoining self-contained one bedroom flat, in total providing 2,670 sq ft / 248 sq m of accommodation, immediately opposite Primrose Hill Park. The main flat comprises approximately 1,980 sq.ft /183 ...
Property Oracle says ..
This property presents a rare opportunity to acquire a substantial period property in the highly sought-after Primrose Hill area of London. Located on Regents Park Road, the property benefits from its enviable position, close to the park and a plethora of amenities. The images showcase a well-maintained and tastefully presented interior. The large bay windows throughout the property, along with the conservatory/sunroom and patio in the garden offer an abundance of natural light and enhance the already impressive living spaces. The large, well-maintained garden is a key feature. The property boasts four bedrooms and four bathrooms, suited to family living or a luxurious lifestyle. While precise square footage data for comparable properties is limited, making a direct price per square foot analysis challenging, the overall combination of factors warrants consideration for buyers targeting properties in this exclusive area of North West London. The availability of nearby reputable schools further strengthens its appeal to families. Transportation links, although not directly on the doorstep, are within reasonable walking or short transport distance. Buyers should conduct their own thorough due diligence, including a full structural survey and local market research.
Therefore, we give this property 7 / 10. *Disclaimer: This is our option and does constitute a recommendation or financial advice. Do your own research. *
- Price
- 7
- Condition
- 8
- Location
- 9
- Land
- 7
- Bedrooms
- 4
- Bathrooms
- 4
- Sqft (est)
- 2,762.02
The heatmap indicates the level of crime in the area. The color of the heatmap indicates the crime severity and recency.
Metrics Year-on-Year
- Average area value
- 1,512,857.00 £Increased by 2.21 %
- Est sale value
- 3,955,212.64 £Increased by 17.57 %
- Average area rental value
- 3,402.00 £/moIncreased by 28.57 %
- Est letting value
- 8,286.06 £/moIncreased by 50.00 %
- Est rental Yield
- 2.70 %Increased by 25.58 %
- Crime Rate
- 2.00 %Unchanged by 0.00 %
Agent Activity
Arlington Residential created the listing.
Nearby Schools
| Name | Type | Ofsted | Distance |
|---|---|---|---|
| Primrose Hill School | Community School | Outstanding | 0.39 KM |
| Haverstock School | Community School | Good | 0.73 KM |
| North Bridge House Preparatory | Other Independent School | 0.89 KM | |
| St Paul'S Church Of England Primary School | Voluntary Aided School | Good | 0.98 KM |
| Harmood Children'S Centre | Children's Centre | 1.03 KM |
Images
Nearby Streets
| Name | Average Price | Average Sqft | Distance |
|---|---|---|---|
| Prince Albert Road | £ 600,000 | 0 | 0.00 KM |
| West Tunnel | £ 0 | 0 | 0.00 KM |
| Belmont Street | £ 500,000 | 0 | 0.00 KM |
| Inner Circle | £ 0 | 0 | 0.00 KM |
| Outer Circle | £ 2,200,000 | 0 | 0.00 KM |
Nearby Transport
| Name | NLC | TLC | Distance |
|---|---|---|---|
| Kentish Town West | 1449 | KTW | 1.27 KM |
| Camden Road | 1440 | CMD | 1.81 KM |
| Gospel Oak | 1409 | GPO | 1.93 KM |
| Marylebone | 1475 | MYB | 1.99 KM |
| Kentish Town | 1553 | KTN | 2.08 KM |
Nearby Listings
| Address | Price | Type | Score | Distance |
|---|---|---|---|---|
| Regents Park Road, Primrose Hill, NW1 | £ 4,000,000 | BUY | 7 / 10 | 0.00 KM |
| Regents Park Road, London, NW1 | £ 2,500,000 | BUY | 6 / 10 | 0.03 KM |
| Regents Park Road, London, NW1 | £ 1,100,000 | BUY | 6 / 10 | 0.04 KM |
| Regents Park Road, Primrose Hill | £ 570,000 | BUY | 7 / 10 | 0.04 KM |
| Regents Park Road, Primrose Hill, London, NW1 | £ 1,350,000 | BUY | Unknown | 0.04 KM |
Nearby Properties
| Address | Price | Distance |
|---|---|---|
| 64e Regents Park Road | £ 2,075,000 | 0.04 KM |
| 40d Regents Park Road | £ 1,010,000 | 0.04 KM |
| 60 Regents Park Road | £ 9,500,000 | 0.04 KM |
| 58 Regents Park Road | £ 13,500,000 | 0.04 KM |
| 50 Regents Park Road | £ 3,750,000 | 0.04 KM |