Chancellors says ..
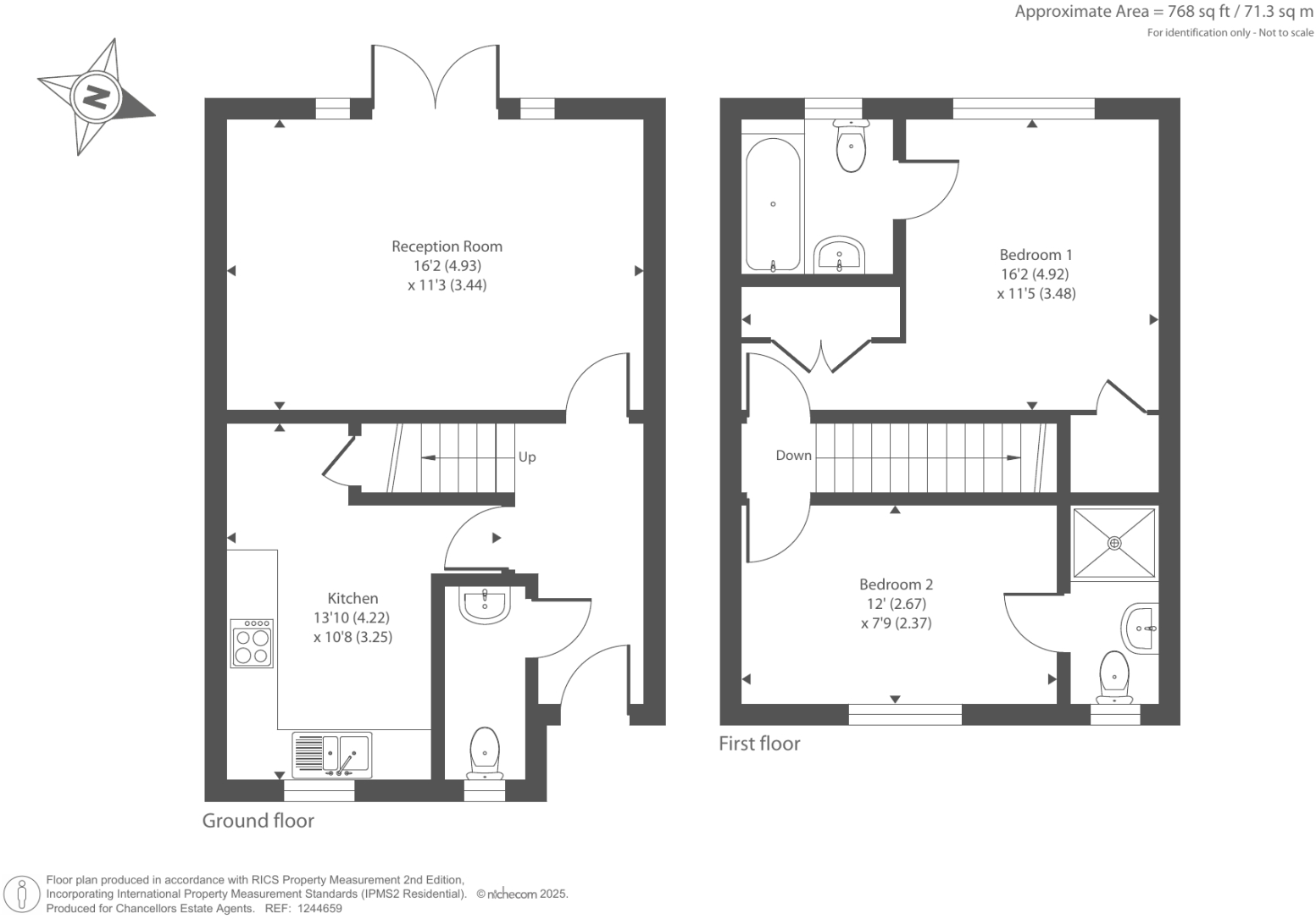
Chancellors present to market this split level two bedroom maisonette. Comprising of a kitchen, separate living room, two bedrooms both with en-suite bathrooms, and parking. Additionally benefitting from being 0.2 miles from local amenities, Surgery and NO ONWARD CHAIN.
Property Oracle says ..
The property is located in Thatcham, Berkshire, a town in West Berkshire with good transport links and well-regarded schools nearby. This suggests a desirable location for families. The property itself appears to be in good condition, with a modern kitchen and well-maintained bathrooms. There is some evidence of wear and tear, but nothing that suggests significant repair or renovation is needed. The property includes a small garden. The list price of £270,000 appears reasonably competitive considering the smaller size of the property compared to the area average and the inclusion of a garden. However, further comparative analysis with similar properties would be beneficial to confirm this.
Therefore, we give this property 7 / 10. *Disclaimer: This is our option and does constitute a recommendation or financial advice. Do your own research. *
- Price
- 7
- Condition
- 8
- Location
- 8
- Land
- 6
- Bedrooms
- 2
- Bathrooms
- 2
- Sqft (est)
- 768.00
The heatmap indicates the level of crime in the area. The color of the heatmap indicates the crime severity and recency.
Metrics Year-on-Year
- Average area value
- 525,000.00 £Increased by 70.84 %
- Est sale value
- 362,496.00 £Increased by 10.02 %
- Average area rental value
- 1,050.00 £/moDecreased by 53.02 %
- Est letting value
- 0.00 £/moDecreased by 100.00 %
- Est rental Yield
- 2.40 %Decreased by 72.51 %
- Crime Rate
- 12.00 %Unchanged by 0.00 %
Agent Activity
Chancellors created the listing.
Nearby Schools
| Name | Type | Ofsted | Distance |
|---|---|---|---|
| Thatcham Park Cofe Primary | Voluntary Controlled School | Good | 0.40 KM |
| Central Family Hub - Thatcham | Children's Centre | 0.66 KM | |
| Whitelands Park Primary School | Academy Sponsor Led | Good | 0.80 KM |
| Spurcroft Primary School | Community School | Good | 0.88 KM |
| Kennet School | Academy Converter | Outstanding | 1.28 KM |
Images
Nearby Streets
| Name | Average Price | Average Sqft | Distance |
|---|---|---|---|
| Bluecoats | £ 254,000 | 0 | 0.00 KM |
| Whitelands Road | £ 347,500 | 0 | 0.00 KM |
| Brownsfield Road | £ 0 | 0 | 0.00 KM |
| Tudor Court | £ 0 | 0 | 0.00 KM |
| Coombe Square | £ 369,950 | 0 | 0.00 KM |
Nearby Transport
| Name | NLC | TLC | Distance |
|---|---|---|---|
| Thatcham | 3152 | THA | 2.17 KM |
| Newbury Racecourse | 3071 | NRC | 5.32 KM |
| Newbury | 3074 | NBY | 6.99 KM |
| Midgham | 3159 | MDG | 9.14 KM |
Nearby Listings
| Address | Price | Type | Score | Distance |
|---|---|---|---|---|
| Thatcham, Berkshire, RG18 | £ 270,000 | BUY | 7 / 10 | 0.00 KM |
| Stephenson Close, Thatcham, Berkshire, RG18 | £ 225,000 | BUY | 6 / 10 | 0.10 KM |
| Bath Road, Thatcham, Berkshire, RG18 | £ 230,000 | BUY | Unknown | 0.10 KM |
| Park Lane, Thatcham, RG18 3PJ | £ 465,000 | BUY | Unknown | 0.15 KM |
| HIGH STREET, THATCHAM | £ 204,950 | BUY | Unknown | 0.18 KM |
Nearby Properties
| Address | Price | Distance |
|---|---|---|
| 20b High Street | £ 335,000 | 0.11 KM |
| 10a High Street | £ 187,000 | 0.11 KM |
| 3 Stephenson Close | £ 405,000 | 0.11 KM |
| 2 Stephenson Close | £ 530,000 | 0.11 KM |
| 7 Stephenson Close | £ 345,000 | 0.11 KM |