Rothwell Drive, Aughton, L39 5AN
By Ian Anthony Estates
£ 215,000
Reviews
3 out of 5 stars
Ian Anthony Estates says ..
This charming three-bedroom semi-detached property is situated in the popular residential location of Rothwell Drive, Aughton, offering excellent transport links and being conveniently close to local schools. The accommodation begins with an entrance hall and stairs leading to the first floor....
Property Oracle says ..
The property is a 3-bedroom semi-detached house located on Rothwell Drive in Aughton, West Lancashire. Aughton is a desirable area, with the property benefitting from its proximity to well-regarded schools such as Aughton St Michael’s Church of England Primary School and Aughton Christ Church Church of England Voluntary Controlled Primary School, both rated as ‘Outstanding’ by Ofsted. The nearby Merseyrail stations provide convenient access to Ormskirk and other areas. The property itself has a relatively small plot size, but does include a garden. Images reveal the property is in generally good condition, although some minor cosmetic improvements could enhance its appeal. The kitchen shows evidence of recent modernisation, while other areas appear clean and well-maintained. The list price of £215,000 is significantly lower than the average house price in the area (£404,387), and the average price per square foot is also lower. However, comparison with nearby properties reveals a range of prices, making a definitive statement on value difficult without more detailed information on the specifics of comparable properties.
Therefore, we give this property 7 / 10. *Disclaimer: This is our option and does constitute a recommendation or financial advice. Do your own research. *
- Price
- 7
- Condition
- 7
- Location
- 8
- Land
- 6
- Bedrooms
- 3
- Bathrooms
- 1
- Sqft (est)
- 925.59
The heatmap indicates the level of crime in the area. The color of the heatmap indicates the crime severity and recency.
Metrics Year-on-Year
- Average area value
- 382,533.00 £Increased by 3.77 %
- Est sale value
- 340,617.12 £Increased by 5.44 %
- Average area rental value
- 1,090.00 £/moDecreased by 17.67 %
- Est letting value
- 925.59 £/moUnchanged by 0.00 %
- Est rental Yield
- 3.42 %Decreased by 20.65 %
- Crime Rate
- 15.00 %Unchanged by 0.00 %
Agent Activity
Ian Anthony Estates created the listing.
Nearby Schools
| Name | Type | Ofsted | Distance |
|---|---|---|---|
| Aughton St Michael'S Church Of England Primary School | Voluntary Controlled School | Outstanding | 0.57 KM |
| Aughton Christ Church Church Of England Voluntary Controlled Primary School | Voluntary Controlled School | Outstanding | 0.67 KM |
| Aughton Town Green Primary School | Community School | Good | 1.39 KM |
| Pontville School | Other Independent Special School | Outstanding | 1.63 KM |
| St Bede'S Catholic High School | Voluntary Aided School | Good | 1.73 KM |
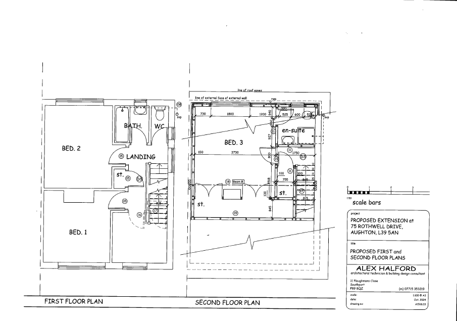
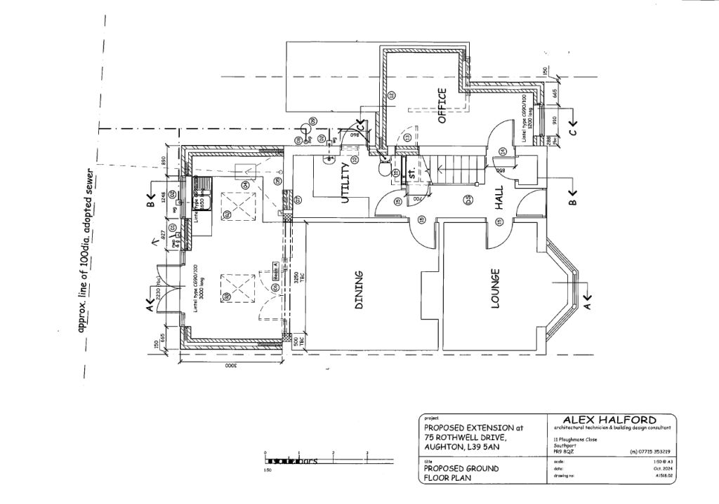
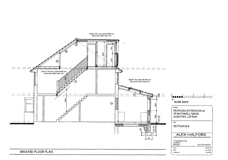
Images
Nearby Streets
| Name | Average Price | Average Sqft | Distance |
|---|---|---|---|
| Gaw Hill Lane | £ 0 | 0 | 0.00 KM |
| School Close | £ 399,950 | 0 | 0.00 KM |
| Beaufort Close | £ 625,000 | 0 | 0.00 KM |
| Hilltop Walk | £ 0 | 0 | 0.00 KM |
| Saint Bedes Close | £ 0 | 0 | 0.00 KM |
Nearby Transport
| Name | NLC | TLC | Distance |
|---|---|---|---|
| Town Green | 2283 | TWN | 1.34 KM |
| Aughton Park | 2215 | AUG | 1.39 KM |
| Ormskirk | 2281 | OMS | 3.38 KM |
| Maghull North | 6576 | MNS | 4.45 KM |
| Maghull | 2155 | MAG | 5.91 KM |
Nearby Listings
| Address | Price | Type | Score | Distance |
|---|---|---|---|---|
| Rothwell Drive, Aughton, L39 5AN | £ 145,000 | BUY | 7 / 10 | 0.00 KM |
| Rothwell Drive, Aughton, L39 5AN | £ 100,000 | BUY | 6 / 10 | 0.00 KM |
| Rothwell Drive, Aughton, Ormskirk | £ 210,000 | BUY | 5 / 10 | 0.00 KM |
| Rothwell Drive, Aughton, L39 5AN | £ 215,000 | BUY | 7 / 10 | 0.00 KM |
| Eskdale Avenue, Aughton, L39 5EU | £ 275,000 | BUY | 5 / 10 | 0.05 KM |
Nearby Properties
| Address | Price | Distance |
|---|---|---|
| 77 Rothwell Drive | £ 130,000 | 0.01 KM |
| 55 Rothwell Drive | £ 98,000 | 0.01 KM |
| 57 Rothwell Drive | £ 139,950 | 0.01 KM |
| 35 Rothwell Drive | £ 172,500 | 0.01 KM |
| 69 Rothwell Drive | £ 71,000 | 0.01 KM |