Mill Road, Henham, Hertfordshire, CM22 6AA
By Bellway Homes Ltd (North London)
£ 1,100,000
Reviews
3 out of 5 stars
Bellway Homes Ltd (North London) says ..
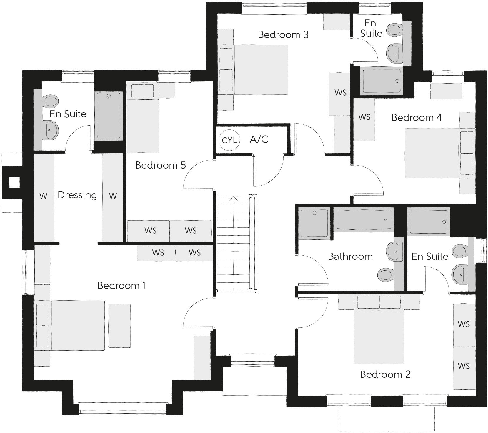
The Danbury B is a stunning 5-bedroom home with open-plan living, cosy fireplace, underfloor heating, double garage with STUDIO, & 3 en suites. Enjoy 2 sets of French doors, integrated appliances & 10-year NHBC policy^.
Property Oracle says ..
This is a large, modern detached property located in the village of Henham, Hertfordshire. The house boasts five bedrooms and a contemporary design, with a well-maintained interior. It benefits from good transport links and proximity to local schools. While the listing price is higher than the average for the area, the property’s size, condition, and desirable location may justify the cost. The property includes a garden and a garage, adding to its appeal for families and those seeking a blend of rural and modern living.
Therefore, we give this property 6 / 10. *Disclaimer: This is our option and does constitute a recommendation or financial advice. Do your own research. *
- Price
- 5
- Condition
- 9
- Location
- 7
- Land
- 6
- Bedrooms
- 5
- Bathrooms
- 0
- Sqft (est)
- 1,240.00
The heatmap indicates the level of crime in the area. The color of the heatmap indicates the crime severity and recency.
Metrics Year-on-Year
- Average area value
- 310,833.00 £Decreased by 19.99 %
- Est sale value
- 554,280.00 £Decreased by 3.25 %
- Average area rental value
- 1,673.00 £/moIncreased by 30.50 %
- Est letting value
- 2,480.00 £/moIncreased by 100.00 %
- Est rental Yield
- 6.46 %Increased by 63.13 %
- Crime Rate
- 7.00 %Unchanged by 0.00 %
Agent Activity
Bellway Homes Ltd (North London) created the listing.
Nearby Schools
| Name | Type | Ofsted | Distance |
|---|---|---|---|
| Henham And Ugley Primary And Nursery School | Community School | Good | 0.69 KM |
| Elsenham Church Of England Voluntary Controlled Primary School | Voluntary Controlled School | Good | 1.72 KM |
| Forest Hall School | Academy Sponsor Led | Requires improvement | 5.42 KM |
| Utt1 Spangles Fanmily Hub | Children's Centre | 5.43 KM | |
| Magna Carta Primary Academy | Free Schools | Good | 5.76 KM |
Images
Nearby Streets
| Name | Average Price | Average Sqft | Distance |
|---|---|---|---|
| Crocus Drive | £ 600,000 | 0 | 0.00 KM |
| Primrose Gardens | £ 0 | 0 | 0.00 KM |
| Wrights Piece | £ 0 | 0 | 0.00 KM |
| Henham Footpath 12 | £ 950,000 | 0 | 0.00 KM |
| Golden Miller Avenue | £ 458,745 | 0 | 0.00 KM |
Nearby Transport
| Name | NLC | TLC | Distance |
|---|---|---|---|
| Elsenham (Essex) | 6832 | ESM | 2.00 KM |
| Stansted Airport | 6834 | SSD | 4.33 KM |
| Stansted Mountfitchet | 6833 | SST | 5.69 KM |
| Newport (Essex) | 7039 | NWE | 7.03 KM |
| Audley End | 7017 | AUD | 9.87 KM |
Nearby Listings
| Address | Price | Type | Score | Distance |
|---|---|---|---|---|
| Mill Road, Henham, Hertfordshire, CM22 6AA | £ 1,300,000 | BUY | 6 / 10 | 0.00 KM |
| Mill Road, Henham, Hertfordshire, CM22 6AA | £ 1,000,000 | BUY | 6 / 10 | 0.00 KM |
| Mill Road, Henham, Hertfordshire, CM22 6AA | £ 860,000 | BUY | 7 / 10 | 0.00 KM |
| Mill Road, Henham, Hertfordshire, CM22 6AA | £ 1,075,000 | BUY | 7 / 10 | 0.00 KM |
| Mill Road, Henham, Hertfordshire, CM22 6AA | £ 1,100,000 | BUY | 6 / 10 | 0.00 KM |
Nearby Properties
| Address | Price | Distance |
|---|---|---|
| 47 Vernon Close | £ 402,000 | 0.46 KM |
| 58 Vernon Close | £ 355,000 | 0.46 KM |
| 49 Vernons Close | £ 275,000 | 0.46 KM |
| 31 Vernons Close | £ 260,000 | 0.46 KM |
| 32 Vernons Close | £ 129,500 | 0.46 KM |