Roth Walk, Andover Estate, London, N7
By Drivers & Norris
£ 475,000
Reviews
2 out of 5 stars
Drivers & Norris says ..
Two double bedroom property with direct access to the private back garden.
Property Oracle says ..
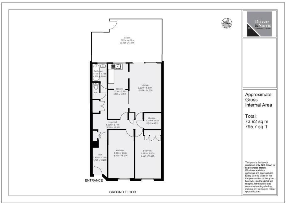
The property is a 2-bedroom apartment located in the Finsbury Park area of Islington, London. The area benefits from good transport links, with Finsbury Park station just 0.60 KM away, providing access to the Great Northern line. Several primary schools with good Ofsted ratings are within a short distance, making it potentially attractive to families. The list price of £475,000 is slightly below the average price for the area (£676,595), but comparable properties on Roth Walk have sold for prices ranging from £210,000 to £515,000. The apartment is 795.67 sqft, slightly smaller than the average for the area (810 sqft). More information on the condition of the property and the specifics of the plot size would be needed to provide a more comprehensive analysis.
Therefore, we give this property 5 / 10. *Disclaimer: This is our option and does constitute a recommendation or financial advice. Do your own research. *
- Price
- 7
- Condition
- 7
- Location
- 8
- Land
- 1
- Bedrooms
- 2
- Bathrooms
- 1
- Sqft (est)
- 795.67
The heatmap indicates the level of crime in the area. The color of the heatmap indicates the crime severity and recency.
Metrics Year-on-Year
- Average area value
- 493,333.00 £Decreased by 29.75 %
- Est sale value
- 598,343.84 £Decreased by 12.66 %
- Average area rental value
- 2,514.00 £/moIncreased by 5.59 %
- Est letting value
- 2,387.01 £/moIncreased by 50.00 %
- Est rental Yield
- 6.12 %Increased by 50.37 %
- Crime Rate
- 8.00 %Unchanged by 0.00 %
Agent Activity
Drivers & Norris created the listing.
Nearby Schools
| Name | Type | Ofsted | Distance |
|---|---|---|---|
| Pooles Park Primary School | Community School | Good | 0.30 KM |
| Montem Primary School | Community School | Good | 0.39 KM |
| Hornsey Road Childrens Centre | Children's Centre | 0.48 KM | |
| Pakeman Primary School | Community School | Good | 0.49 KM |
| North Islington Nursery School | Local Authority Nursery School | Good | 0.51 KM |
Images
Nearby Streets
| Name | Average Price | Average Sqft | Distance |
|---|---|---|---|
| Cornwallis Square | £ 250,000 | 0 | 0.00 KM |
| Dulas Street | £ 0 | 0 | 0.00 KM |
| Franchise Place | £ 0 | 0 | 0.00 KM |
| Citizen Road | £ 500,000 | 0 | 0.00 KM |
| Hertslet Road | £ 0 | 0 | 0.00 KM |
Nearby Transport
| Name | NLC | TLC | Distance |
|---|---|---|---|
| Finsbury Park | 6119 | FPK | 0.60 KM |
| Crouch Hill | 7406 | CRH | 1.17 KM |
| Drayton Park | 6000 | DYP | 1.26 KM |
| Harringay | 6012 | HGY | 1.80 KM |
| Highbury And Islington | 6009 | HHY | 2.00 KM |
Nearby Listings
| Address | Price | Type | Score | Distance |
|---|---|---|---|---|
| Roth Walk, Finsbury Park, N7 | £ 350,000 | BUY | 5 / 10 | 0.00 KM |
| Roth Walk, Andover Estate, London, N7 | £ 475,000 | BUY | 5 / 10 | 0.00 KM |
| Roth Walk, Andover Estate, London, N7 | £ 475,000 | BUY | 5 / 10 | 0.00 KM |
| Roth Walk, Islington, London, N7 | £ 450,000 | BUY | 5 / 10 | 0.05 KM |
| Flat 16 Monksfield, Six Acres Estate, Durham Road, Finsbury Park, N4 3PF | £ 200,000 | BUY | 5 / 10 | 0.07 KM |
Nearby Properties
| Address | Price | Distance |
|---|---|---|
| 49 Roth Walk | £ 470,000 | 0.01 KM |
| 12 Roth Walk | £ 210,000 | 0.01 KM |
| 18 Roth Walk | £ 323,000 | 0.01 KM |
| 58 Roth Walk | £ 520,000 | 0.01 KM |
| 16 Roth Walk | £ 230,000 | 0.01 KM |