Crucible Homes says ..
A beautiful retreat awaits you ... Guide price £600,000-£625,000 ... properties of this calibre rarely come to the market, nestled in this sought after location, this gorgeous stone built detached property with outbuildings and fantastic garden is the perfect mix of character and modern...
Property Oracle says ..
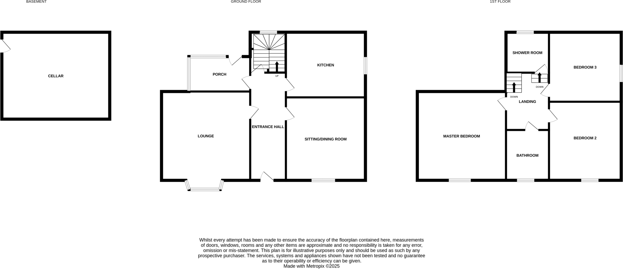
This property is a 3 bed 2 bath detached house located on Burncross Road in Chapeltown, Sheffield. The property benefits from a large garden, and is presented in good condition throughout. The property is a period property, which has been modernised to a high standard. The location is good, with local schools and transport links nearby. The asking price is high, considering the average price per square foot in the area, however, the size of the property and the quality of the finish justify this to some extent.
Therefore, we give this property 7 / 10. *Disclaimer: This is our option and does constitute a recommendation or financial advice. Do your own research. *
- Price
- 6
- Condition
- 9
- Location
- 7
- Land
- 8
- Bedrooms
- 3
- Bathrooms
- 2
- Sqft (est)
- 2,200.00
The heatmap indicates the level of crime in the area. The color of the heatmap indicates the crime severity and recency.
Metrics Year-on-Year
- Average area value
- 276,071.00 £Increased by 29.23 %
- Est sale value
- 737,000.00 £Increased by 50.90 %
- Average area rental value
- 713.00 £/moDecreased by 20.69 %
- Est letting value
- 0.00 £/mo
- Est rental Yield
- 3.10 %Decreased by 38.61 %
- Crime Rate
- 5.00 %Unchanged by 0.00 %
Agent Activity
Crucible Homes created the listing.
Nearby Schools
| Name | Type | Ofsted | Distance |
|---|---|---|---|
| Lound Infant School | Academy Converter | Good | 0.30 KM |
| Windmill Hill Primary School | Academy Converter | 0.61 KM | |
| Chapeltown | Children's Centre Linked Site | 0.78 KM | |
| Lound Junior School | Academy Converter | Good | 0.80 KM |
| Coit Primary School | Community School | Outstanding | 1.13 KM |
Images
Nearby Streets
| Name | Average Price | Average Sqft | Distance |
|---|---|---|---|
| Arncliffe Drive | £ 0 | 0 | 0.00 KM |
| Burns Court | £ 0 | 0 | 0.00 KM |
| Byron Avenue | £ 0 | 0 | 0.00 KM |
| Acacia Avenue | £ 190,000 | 0 | 0.00 KM |
| Lane End | £ 0 | 0 | 0.00 KM |
Nearby Transport
| Name | NLC | TLC | Distance |
|---|---|---|---|
| Chapeltown (South Yorkshire) | 6664 | CLN | 1.15 KM |
| Elsecar | 6667 | ELR | 6.79 KM |
| Meadowhall | 6663 | MHS | 8.64 KM |
| Wombwell | 6688 | WOM | 9.08 KM |
| Sheffield | 6691 | SHF | 9.48 KM |
Nearby Listings
| Address | Price | Type | Score | Distance |
|---|---|---|---|---|
| Burncross Road, Chapeltown | £ 600,000 | BUY | 7 / 10 | 0.00 KM |
| Burncross Road, Burncross | £ 600,000 | BUY | 6 / 10 | 0.01 KM |
| Burncross Road, Chapeltown, Sheffield | £ 280,000 | BUY | 7 / 10 | 0.02 KM |
| Burncross Road, Burncross | £ 325,000 | BUY | 7 / 10 | 0.09 KM |
| Smithy Carr Avenue, Chapeltown | £ 290,000 | BUY | 6 / 10 | 0.11 KM |
Nearby Properties
| Address | Price | Distance |
|---|---|---|
| 194 Burncross Road | £ 318,500 | 0.00 KM |
| 228 Burncross Road | £ 235,000 | 0.00 KM |
| 238 Burncross Road | £ 220,000 | 0.00 KM |
| 222 Burncross Road | £ 195,000 | 0.00 KM |
| 212 Burncross Road | £ 277,500 | 0.00 KM |