Solva
West Wales Properties logo

Solva

By West Wales Properties

£ 460,000

Reviews

3 out of 5 stars

West Wales Properties says ..

** SEA VIEW FROM TOP FLOOR** Located within the Pembrokeshire Coast National Park, in the heart of Solva, this property boasts a wealth of character and charm throughout. Ideally situated within walking distance of the beautiful Coastal Path and Solva Harbour, and approximately 3 miles away from ...

Property Oracle says ..

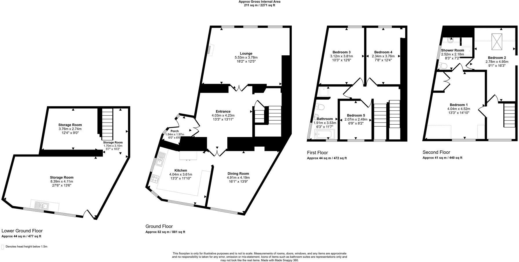
This five-bedroom, two-bathroom property in Solva, Pembrokeshire, offers a blend of charm and convenience. Situated on High Street, it provides easy access to the village’s amenities and the stunning Pembrokeshire Coast Path. The property’s layout appears spacious, with multiple rooms showcased in the provided photographs. The images suggest a property in relatively good condition overall, though some modernisation to the kitchens and bathrooms would likely enhance its value. The inclusion of a garden is a noteworthy feature. However, the garden’s exact size isn’t given and it currently needs some attention. Determining the true value requires a detailed property survey and analysis of recent sales of comparable properties in Solva to definitively assess whether the list price accurately reflects its market value. The location, however, is a strong selling point given Solva’s desirability as a coastal village in West Wales. Potential buyers should consider the cost and scope of any renovation works needed to bring the property fully up to date. The proximity of Solva C.P. School would likely be appealing to families.

Therefore, we give this property 6 / 10. *Disclaimer: This is our option and does constitute a recommendation or financial advice. Do your own research. *

Price
7
Condition
6
Location
8
Land
4
Bedrooms
5
Bathrooms
2
Sqft (est)
2,271.19

The heatmap indicates the level of crime in the area. The color of the heatmap indicates the crime severity and recency.

Metrics Year-on-Year

Average area value
278,905.00 £
Increased by 2.67 %
from 271,663.00 £
Est sale value
624,577.25 £
Increased by 50.27 %
from 415,627.77 £
Average area rental value
800.00 £/mo
Decreased by 34.53 %
from 1,222.00 £/mo
Est letting value
0.00 £/mo
from 0.00 £/mo
Est rental Yield
3.44 %
Decreased by 36.30 %
from 5.40 %
Crime Rate
21.00 %
Unchanged by 0.00 %
from 21.00 %

Agent Activity

  • West Wales Properties created the listing.

Nearby Schools

NameTypeOfstedDistance
Solva C.P. SchoolWelsh Establishment0.32 KM
Marlowe St David'S Education UnitWelsh Establishment6.41 KM
Ysgol Yr Eglwys Yng Nghymru Penrhyn DewiWelsh Establishment6.67 KM
Ysgol Dewi SantWelsh Establishment6.67 KM
Ysgol Gymunedol CroesgochWelsh Establishment7.23 KM

Images

21 (6).jpg 14 (18).jpg 18 (12).jpg 17 (14).jpg 12 (17).jpg 15 (16).jpg 9 (17).jpg 8 (17).jpg 4 (19).jpg 13 (17).jpg 1 (17).jpg 11 (16).jpg 19 (11).jpg 16 (13).jpg 7 (18).jpg 22 (5).jpg 5 (17).jpg 6 (18).jpg 2 (18).jpg 20 (8).jpg 3 (17).jpg 23 (4).jpg

Nearby Streets

NameAverage PriceAverage SqftDistance
Chapel Road £ 000.00 KM
Saint Brides View £ 500,00000.00 KM
Ynys Dawel £ 485,00000.00 KM

Nearby Listings

AddressPriceTypeScoreDistance
Solva £ 460,000BUY6 / 100.00 KM
High Street, HAVERFORDWEST, Dyfed, SA62 £ 550,000BUY5 / 100.01 KM
High Street, Solva, Haverfordwest, Pembrokeshire, SA62 £ 585,000BUY7 / 100.02 KM
High Street, Solva, SA62 £ 400,000BUY6 / 100.02 KM
Portland Square, Solva £ 335,000BUY4 / 100.04 KM

Nearby Properties

AddressPriceDistance
41 High Street £ 95,0000.07 KM
4 Chapel Lane £ 315,0000.09 KM
17 Panteg Road £ 121,0000.11 KM
5 Bryn Seion £ 106,0000.14 KM
23 Bryn Seion £ 227,0000.14 KM