Chappells says ..
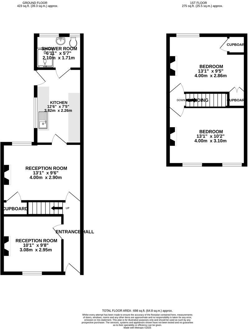
**New Instruction** A WELL PRESENTED TWO DOUBLE BEDROOM RED BRICK FRONTED TERRACE HOME OFFERED WITH NO ONWARD CHAIN. THE PROPERTY BENIFITS FROM BOTH DOUBLE GLAZING & GAS RADIATOR CENTRAL HEATING. THE DOWNSTAIRS ACCOMMODATION CONSISTS OF AN ENTRANCE HALL, TWO SEPARATE RECEPTION ROOMS, FITTED GOOD ...
Property Oracle says ..
This is a terraced house located on Birch Street in Central Swindon. The property is 698 sqft. While the location is fairly central with good access to local amenities and schools, the property itself requires renovation. The garden offers a reasonable amount of outdoor space. The asking price of £210,000 seems fair considering the condition and the potential for improvement.
Therefore, we give this property 5 / 10. *Disclaimer: This is our option and does constitute a recommendation or financial advice. Do your own research. *
- Price
- 7
- Condition
- 4
- Location
- 6
- Land
- 6
- Bedrooms
- 0
- Bathrooms
- 0
- Sqft (est)
- 698.00
The heatmap indicates the level of crime in the area. The color of the heatmap indicates the crime severity and recency.
Metrics Year-on-Year
- Average area value
- 487,124.00 £Increased by 94.35 %
- Est sale value
- 429,968.00 £Increased by 112.41 %
- Average area rental value
- 1,220.00 £/moIncreased by 6.46 %
- Est letting value
- 698.00 £/moUnchanged by 0.00 %
- Est rental Yield
- 3.01 %Decreased by 45.17 %
- Crime Rate
- 4.00 %Unchanged by 0.00 %
Agent Activity
Chappells created the listing.
Nearby Schools
| Name | Type | Ofsted | Distance |
|---|---|---|---|
| Robert Le Kyng Primary School | Community School | Good | 0.17 KM |
| Utc Swindon | University Technical College | Requires improvement | 0.68 KM |
| Even Swindon Primary School | Community School | Good | 1.26 KM |
| The Commonweal School | Academy Converter | Good | 1.51 KM |
| The Deanery Ce Academy | Free Schools | 1.76 KM |
Images
Nearby Streets
| Name | Average Price | Average Sqft | Distance |
|---|---|---|---|
| Turner Street | £ 0 | 0 | 0.00 KM |
| Marlborough Street | £ 0 | 0 | 0.00 KM |
| Canal Cottages | £ 0 | 0 | 0.00 KM |
| Joseph Street | £ 0 | 0 | 0.00 KM |
| Church Place | £ 0 | 0 | 0.00 KM |
Nearby Transport
| Name | NLC | TLC | Distance |
|---|---|---|---|
| Swindon (Wilts) | 3333 | SWI | 1.68 KM |
Nearby Listings
| Address | Price | Type | Score | Distance |
|---|---|---|---|---|
| Birch Street, Swindon | £ 210,000 | BUY | 5 / 10 | 0.00 KM |
| Ford Street, Kingshill, Swindon, SN1 | £ 220,000 | BUY | 6 / 10 | 0.07 KM |
| Ford Street, Swindon, Wiltshire | £ 220,000 | BUY | 7 / 10 | 0.08 KM |
| Birch Street, Swindon, SN1 5 | £ 250,000 | BUY | 6 / 10 | 0.10 KM |
| Butterworth Street, Swindon, SN1 | £ 210,000 | BUY | 6 / 10 | 0.10 KM |
Nearby Properties
| Address | Price | Distance |
|---|---|---|
| 45 Birch Street | £ 160,000 | 0.06 KM |
| 18 Birch Street | £ 117,000 | 0.06 KM |
| 46 Birch Street | £ 177,000 | 0.06 KM |
| 40 Birch Street | £ 132,000 | 0.06 KM |
| 27 Birch Street | £ 184,111 | 0.06 KM |