BARN WITH PLANNING | STAPLETON BS16
HO

BARN WITH PLANNING | STAPLETON BS16

By Hollis Morgan

£ 20,000

Reviews

2 out of 5 stars

Hollis Morgan says ..

Hollis Morgan – LIVE ONLINE AUCTION – A Leasehold STONE BARN with RESI PLANNING to create a 1 BED BUNGALOW ( 398 Sq Ft ) set within the Bridge Farm Community Project.

Property Oracle says ..

This is a barn with planning permission in Lockleaze, Bristol. The property requires complete renovation but offers a substantial square footage for development. Its location provides access to local schools and transportation, making it an attractive investment opportunity.

Therefore, we give this property 5 / 10. *Disclaimer: This is our option and does constitute a recommendation or financial advice. Do your own research. *

Price
9
Condition
2
Location
6
Land
5
Bedrooms
1
Bathrooms
1
Sqft (est)
2,120.49

The heatmap indicates the level of crime in the area. The color of the heatmap indicates the crime severity and recency.

Metrics Year-on-Year

Average area value
308,695.00 £
Decreased by 14.98 %
from 363,095.00 £
Est sale value
954,220.50 £
Decreased by 0.22 %
from 956,340.99 £
Average area rental value
2,053.00 £/mo
Increased by 3.06 %
from 1,992.00 £/mo
Est letting value
4,240.98 £/mo
Unchanged by 0.00 %
from 4,240.98 £/mo
Est rental Yield
7.98 %
Increased by 21.28 %
from 6.58 %
Crime Rate
4.00 %
Unchanged by 0.00 %
from 4.00 %

Agent Activity

  • Hollis Morgan created the listing.

Nearby Schools

NameTypeOfstedDistance
Glenfrome Primary SchoolCommunity SchoolGood0.30 KM
Colston'S SchoolOther Independent School0.57 KM
May Park Primary SchoolAcademy Sponsor Led0.87 KM
Trinity AcademyFree Schools1.06 KM
Stoke Park Primary SchoolAcademy Converter1.06 KM

Images

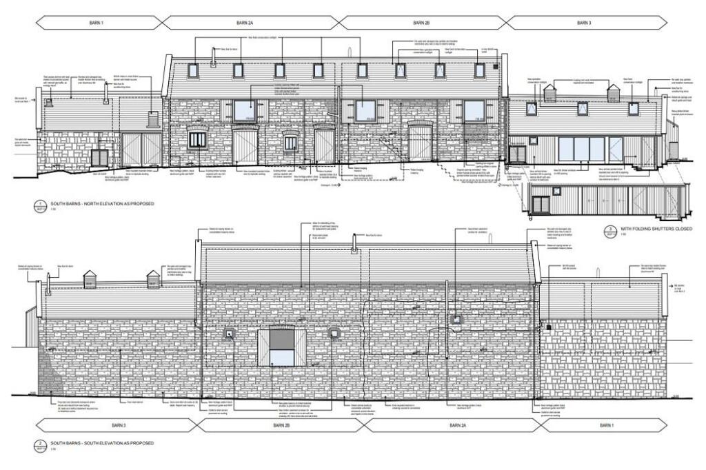
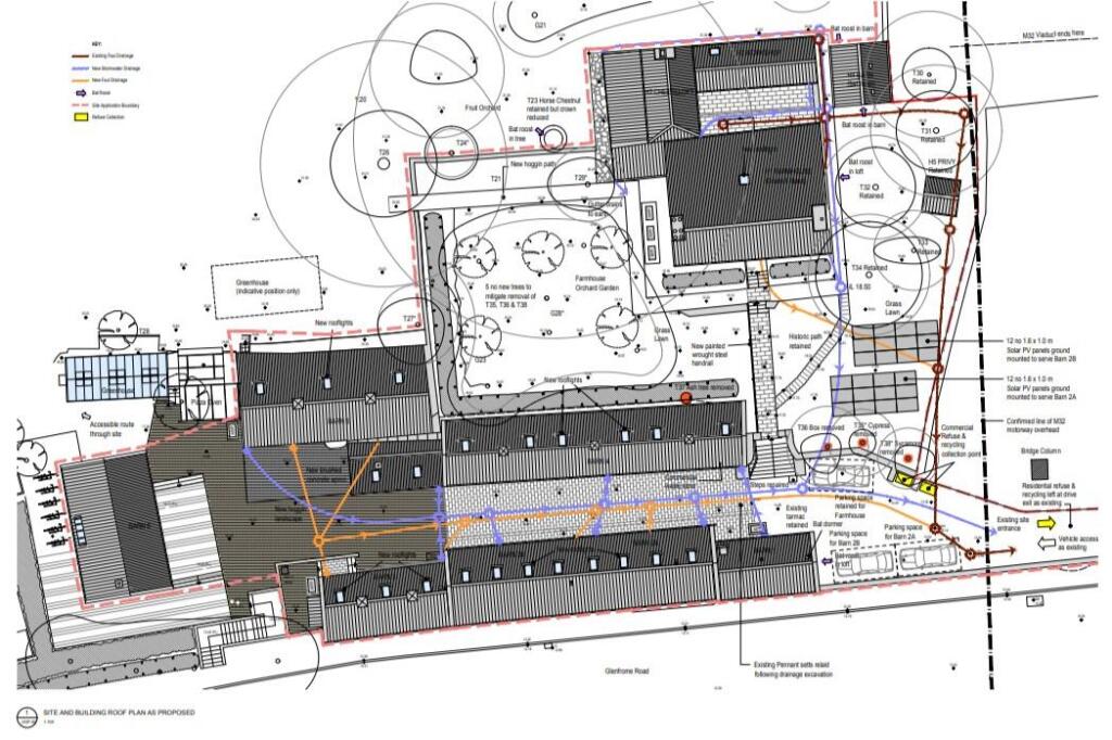
Barn 3 @ Bridge Farm, Bell Hill Stapleton, Bristol Barn 3 @ Bridge Farm, Bell Hill Stapleton, Bristol Barn 3 @ Bridge Farm, Bell Hill Stapleton, Bristol Barn 3 @ Bridge Farm, Bell Hill Stapleton, Bristol Barn 3 @ Bridge Farm, Bell Hill Stapleton, Bristol Barn 3 @ Bridge Farm, Bell Hill Stapleton, Bristol Barn 3 @ Bridge Farm, Bell Hill Stapleton, Bristol Barn 3 @ Bridge Farm, Bell Hill Stapleton, Bristol Barn 3 @ Bridge Farm, Bell Hill Stapleton, Bristol Barn 3 @ Bridge Farm, Bell Hill Stapleton, Bristol Barn 3 @ Bridge Farm, Bell Hill Stapleton, Bristol Barn 3 @ Bridge Farm, Bell Hill Stapleton, Bristol Barn 3 @ Bridge Farm, Bell Hill Stapleton, Bristol Barn 3 @ Bridge Farm, Bell Hill Stapleton, Bristol Barn 3 @ Bridge Farm, Bell Hill Stapleton, Bristol Barn 3 @ Bridge Farm, Bell Hill Stapleton, Bristol Proposed Development @ Bridge Hollis Morgan Live Online Land and Property Auctio Hollis Morgan Live Online Auctions How to Register Barn 3 @ Bridge Farm, Bell Hill Stapleton, Bristol Proposed Development @ Bridge

Nearby Streets

NameAverage PriceAverage SqftDistance
Heath Road £ 420,00000.00 KM
Sandy Lane £ 000.00 KM
Stapleton Close £ 000.00 KM
Park Road £ 000.00 KM
Coombe Road £ 000.00 KM

Nearby Transport

NameNLCTLCDistance
Stapleton Road3250SRD1.39 KM
Lawrence Hill3225LWH2.35 KM
Filton Abbey Wood3235FIT2.91 KM
Montpelier3203MTP3.29 KM
Bristol Temple Meads3231BRI4.00 KM

Nearby Listings

AddressPriceTypeScoreDistance
BARN WITH PLANNING | STAPLETON BS16 £ 20,000BUY5 / 100.00 KM
BARN WITH PLANNING | STAPLETON BS16 £ 25,000BUYUnknown0.01 KM
BARN WITH PLANNING | STAPLETON BS16 £ 25,000BUY5 / 100.01 KM
BARN WITH PLANNING | STAPLETON BS16 £ 25,000BUY5 / 100.09 KM
BARN WITH PLANNING | STAPLETON BS16 £ 25,000BUY5 / 100.09 KM

Nearby Properties

AddressPriceDistance
54 Cottrell Road £ 152,0000.19 KM
66a Cottrell Road £ 100,0000.19 KM
65 Cottrell Road £ 189,9500.19 KM
70 Cottrell Road £ 176,0000.19 KM
58 Cottrell Road £ 200,0000.19 KM