Woodlawn Street, Whitstable
CH

Woodlawn Street, Whitstable

By Christopher Hodgson

£ 395,000

Reviews

3 out of 5 stars

Christopher Hodgson says ..

A charming period house ideally situated on Whitstable's sought after, Woodlawn Street, within the highly desirable conservation area, a short stroll to the beach, moments from Harbour Street, leading to the High Street with its array of independent shops, highly regarded restaurants and cafe bar...

Property Oracle says ..

Therefore, we give this property 6 / 10. *Disclaimer: This is our option and does constitute a recommendation or financial advice. Do your own research. *

Price
6
Condition
6
Location
8
Land
7
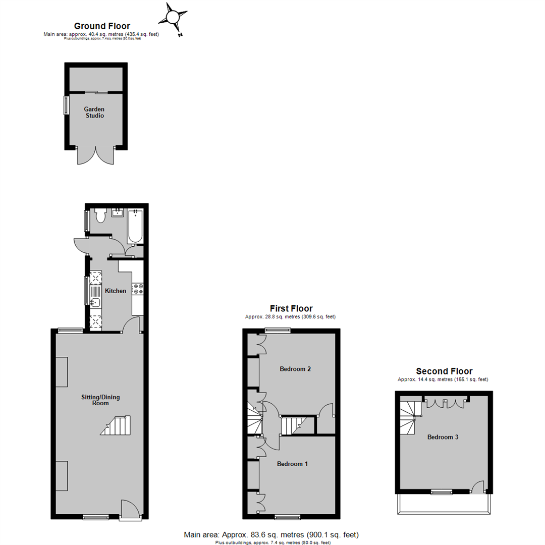
Bedrooms
3
Bathrooms
1
Sqft (est)
899.86

The heatmap indicates the level of crime in the area. The color of the heatmap indicates the crime severity and recency.

Metrics Year-on-Year

Average area value
467,833.00 £
Increased by 3.56 %
from 451,737.00 £
Est sale value
661,397.10 £
Increased by 86.55 %
from 354,544.84 £
Average area rental value
1,383.00 £/mo
Increased by 4.30 %
from 1,326.00 £/mo
Est letting value
1,799.72 £/mo
Increased by 100.00 %
from 899.86 £/mo
Est rental Yield
3.55 %
Increased by 0.85 %
from 3.52 %
Crime Rate
42.00 %
Unchanged by 0.00 %
from 42.00 %

Agent Activity

  • Christopher Hodgson created the listing.

Nearby Schools

NameTypeOfstedDistance
Isp Polar Re Start CentreOther Independent Special School0.19 KM
Whitstable And Seasalter Endowed Church Of England Junior SchoolVoluntary Aided SchoolOutstanding0.40 KM
Westmeads Community Infant SchoolCommunity SchoolOutstanding0.40 KM
St Alphege Church Of England Infant SchoolVoluntary Controlled SchoolGood0.64 KM
Whitstable Junior SchoolFoundation SchoolGood0.66 KM

Images

Woodlawn Street, Whitstable Woodlawn Street, Whitstable Woodlawn Street, Whitstable Woodlawn Street, Whitstable Woodlawn Street, Whitstable Woodlawn Street, Whitstable Woodlawn Street, Whitstable Woodlawn Street, Whitstable Woodlawn Street, Whitstable Woodlawn Street, Whitstable Woodlawn Street, Whitstable Woodlawn Street, Whitstable Woodlawn Street, Whitstable Woodlawn Street, Whitstable Woodlawn Street, Whitstable Woodlawn Street, Whitstable Woodlawn Street, Whitstable Woodlawn Street, Whitstable

Nearby Streets

NameAverage PriceAverage SqftDistance
Brices Alley £ 000.00 KM
Wheelers Alley (CWX32) £ 000.00 KM
Salt Pans Lane £ 360,00000.00 KM
Shipwrights Lee £ 825,00000.00 KM
Shipyard Alley £ 745,00000.00 KM

Nearby Transport

NameNLCTLCDistance
Whitstable5196WHI0.91 KM
Chestfield And Swalecliffe5200CSW4.51 KM

Nearby Listings

AddressPriceTypeScoreDistance
Woodlawn Street, Whitstable £ 395,000BUY6 / 100.00 KM
Woodlawn Street, Whitstable, Kent £ 360,000BUY7 / 100.02 KM
Woodlawn Street, Whitstable £ 420,000BUY7 / 100.03 KM
Woodlawn Street, Whitstable, CT5 £ 375,000BUY7 / 100.04 KM
Sydenham Street, Whitstable £ 425,000BUY7 / 100.05 KM

Nearby Properties

AddressPriceDistance
28 Woodlawn Street £ 225,0000.01 KM
3 Woodlawn Street £ 57,5000.01 KM
10 Woodlawn Street £ 194,5000.01 KM
20 Woodlawn Street £ 195,0000.01 KM
22 Woodlawn Street £ 138,0000.01 KM