St. Julians Road, Newport, NP19
By Number One Real Estate
£ 270,000
Reviews
3 out of 5 stars
Number One Real Estate says ..
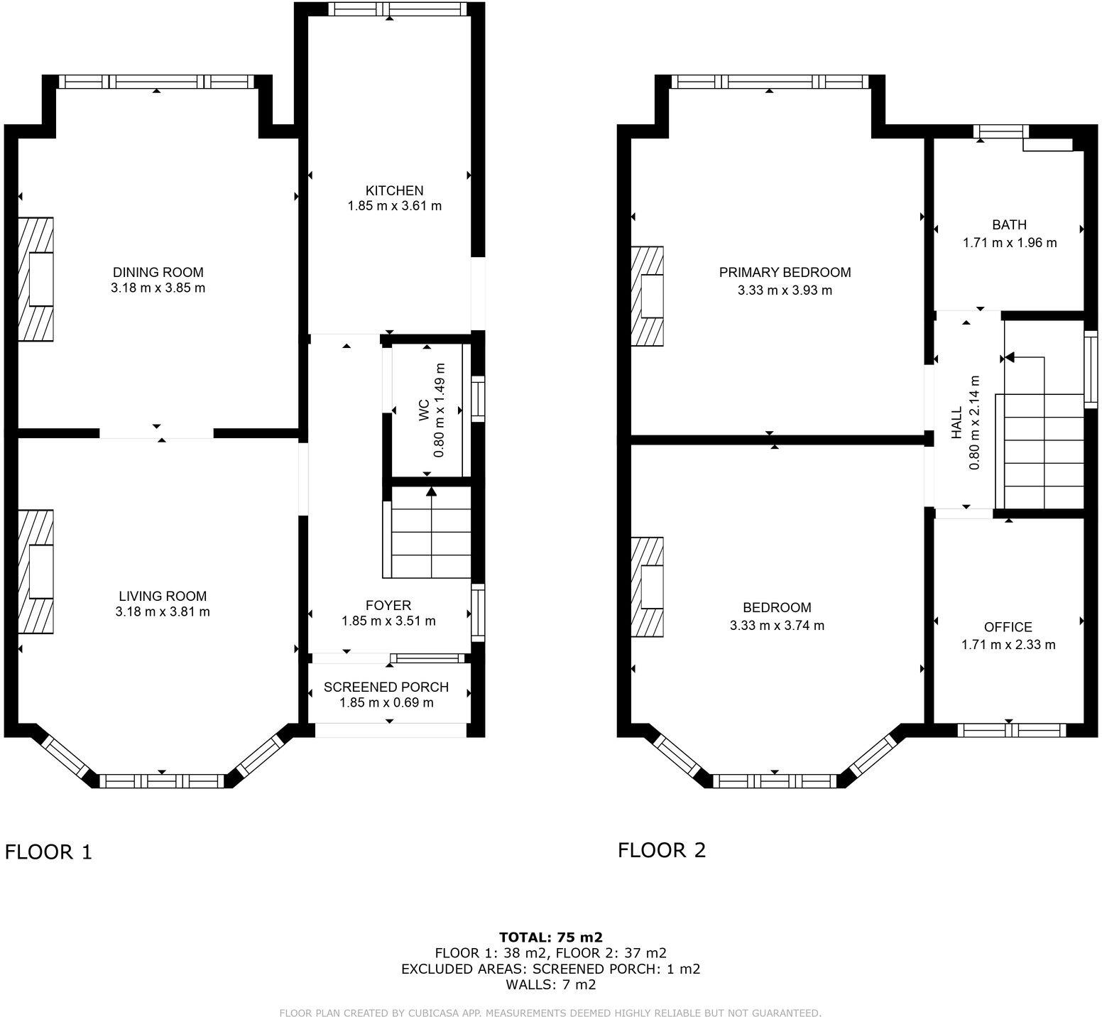
Number One Agent, Harrison Cole is delighted to offer this three bedroom, semi-detached property for sale in Newport.Only a five minute drive from Newport City Centre, where there are further shops, bars and restaurants and Newport train station.
Property Oracle says ..
Therefore, we give this property 6 / 10. *Disclaimer: This is our option and does constitute a recommendation or financial advice. Do your own research. *
- Price
- 7
- Condition
- 7
- Location
- 7
- Land
- 6
- Bedrooms
- 3
- Bathrooms
- 1
- Sqft (est)
- 802.87
The heatmap indicates the level of crime in the area. The color of the heatmap indicates the crime severity and recency.
Metrics Year-on-Year
- Average area value
- 360,833.00 £Decreased by 13.57 %
- Est sale value
- 281,807.37 £Decreased by 9.07 %
- Average area rental value
- 1,178.00 £/moIncreased by 8.17 %
- Est letting value
- 802.87 £/moUnchanged by 0.00 %
- Est rental Yield
- 3.92 %Increased by 25.24 %
- Crime Rate
- 1.00 %Unchanged by 0.00 %
from 417,504.00 £
from 309,907.82 £
from 1,089.00 £/mo
from 802.87 £/mo
from 3.13 %
from 1.00 %
Agent Activity
Number One Real Estate created the listing.
Nearby Schools
| Name | Type | Ofsted | Distance |
|---|---|---|---|
| Eveswell Primary School | Welsh Establishment | 0.67 KM | |
| St Julian'S School | Welsh Establishment | 0.92 KM | |
| St Joseph'S R.C. Primary School | Welsh Establishment | 0.93 KM | |
| St Patrick'S R.C. Primary School | Welsh Establishment | 1.35 KM | |
| Catch22 Include Wales | Welsh Establishment | 1.45 KM |
Images
Nearby Streets
| Name | Average Price | Average Sqft | Distance |
|---|---|---|---|
| St. Julian's Road | £ 230,000 | 0 | 0.00 KM |
| Cardigan Place | £ 270,000 | 0 | 0.00 KM |
| Northumberland Road | £ 325,000 | 0 | 0.00 KM |
| Shetland Close | £ 0 | 0 | 0.00 KM |
| Christchurch Road | £ 217,778 | 0 | 0.00 KM |
Nearby Transport
| Name | NLC | TLC | Distance |
|---|---|---|---|
| Newport (South Wales) | 3674 | NWP | 3.33 KM |
| Pye Corner | 1663 | PYE | 7.55 KM |
| Cwmbran | 3738 | CWM | 8.45 KM |
Nearby Listings
| Address | Price | Type | Score | Distance |
|---|---|---|---|---|
| St. Julians Road, Newport, NP19 | £ 270,000 | BUY | 6 / 10 | 0.00 KM |
| St. Julians Road, Newport, NP19 | £ 250,000 | BUY | 6 / 10 | 0.03 KM |
| Buckingham Place, Newport, NP19 | £ 275,000 | BUY | Unknown | 0.07 KM |
| Buckingham Crescent, Newport, NP19 | £ 340,000 | BUY | Unknown | 0.09 KM |
| Northumberland Road, Newport, NP19 | £ 340,000 | BUY | 8 / 10 | 0.15 KM |
Nearby Properties
| Address | Price | Distance |
|---|---|---|
| 128 St Julians Road | £ 130,000 | 0.03 KM |
| 156 St Julians Road | £ 70,000 | 0.03 KM |
| 136 St Julians Road | £ 161,000 | 0.03 KM |
| 122 St Julians Road | £ 166,000 | 0.03 KM |
| 96 St Julians Road | £ 175,000 | 0.03 KM |