Lower Park Road, Braunton
ST

Lower Park Road, Braunton

By Stags

£ 725,000

Reviews

3 out of 5 stars

Stags says ..

Coming Soon - Construction well underway - Anticipated completion Autumn 2025 - A small select development of just 3 three bedroom detached new homes in a sought after residential road, within easy access of village amenities, open countryside, Saunton golf club and Saunton beach etc. Council Tax...

Property Oracle says ..

The property is located in Braunton East, North Devon, which is a desirable area known for its coastal location and proximity to amenities. The nearby schools are rated as good, and the property is within a reasonable distance to Braunton town centre. The property itself appears to be a modern, newly built detached house, with a small garden. The plot size is small, which is reflected in the average price per square foot being higher than the area average. The list price is slightly higher than the average price for similar properties in the area, but this is likely due to the modern build and desirable location. The images show a modern build, with a small garden, and off-street parking. There is no evidence of any significant issues with the condition or the land.

Therefore, we give this property 7 / 10. *Disclaimer: This is our option and does constitute a recommendation or financial advice. Do your own research. *

Price
7
Condition
9
Location
8
Land
4
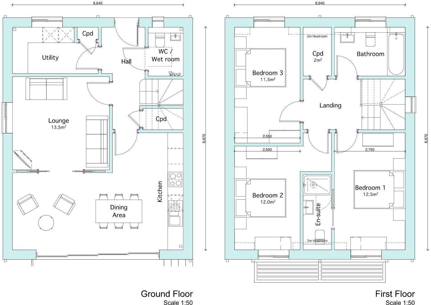
Bedrooms
3
Bathrooms
3
Sqft (est)
898.79

The heatmap indicates the level of crime in the area. The color of the heatmap indicates the crime severity and recency.

Metrics Year-on-Year

Average area value
356,550.00 £
Decreased by 34.21 %
from 541,985.00 £
Est sale value
291,207.96 £
Decreased by 29.10 %
from 410,747.03 £
Average area rental value
1,075.00 £/mo
Increased by 21.47 %
from 885.00 £/mo
Est letting value
0.00 £/mo
from 0.00 £/mo
Est rental Yield
3.62 %
Increased by 84.69 %
from 1.96 %
Crime Rate
0.00 %
from 0.00 %

Agent Activity

  • Stags created the listing.

Nearby Schools

NameTypeOfstedDistance
Southmead SchoolFoundation SchoolGood0.71 KM
Braunton AcademyAcademy ConverterGood0.82 KM
Caen Community Primary SchoolFoundation SchoolGood1.44 KM
Kingsacre Primary SchoolFoundation SchoolRequires improvement2.30 KM
Fremington Primary SchoolAcademy Converter4.63 KM

Images

Site Layout Perspective III Cropped.jpg Site Layout Perspective I Cropped.jpg Site Layout Perspective II Cropped.jpg Plot Elevations Cropped.jpg Crow Point- Labelled.jpg 4..jpg Saunton Golf Course Labelled.jpg

Nearby Streets

NameAverage PriceAverage SqftDistance
South Lea £ 475,00000.00 KM
The Grange £ 000.00 KM
Lower Park Road £ 807,00000.00 KM
Manor Close £ 325,00000.00 KM
Glebelands £ 275,00000.00 KM

Nearby Listings

AddressPriceTypeScoreDistance
Lower Park Road, Braunton £ 725,000BUY7 / 100.00 KM
South Park, Braunton £ 599,950BUY7 / 100.06 KM
Moor Lea, Braunton, Devon, EX33 £ 585,000BUY7 / 100.14 KM
Braunton £ 595,000BUY7 / 100.14 KM
Higher Park Road, Braunton £ 1,850,000BUYUnknown0.17 KM

Nearby Properties

AddressPriceDistance
29 South Park £ 355,0000.14 KM
28 South Park £ 350,0000.14 KM
6 South Park £ 398,0000.14 KM
31 South Park £ 410,0000.14 KM
30 South Park £ 610,0000.14 KM