Acorn Lodge, 1 Pascal Mews, Oakgrove, MK10
By Elevation
£ 275,000
Reviews
3 out of 5 stars
Elevation says ..
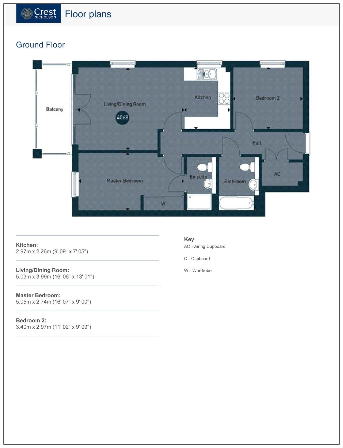
Modern two bedroom, two bathroom apartment in the heart of Oakgrove. In short the property comprises of entrance hall, storage cupboard, master bedroom with ensuite, second bedroom, family bathroom and open plan kitchen/ living room with balcony.The property benefits from allocated park...
Property Oracle says ..
This property is a modern two bedroom apartment located in Oakgrove, Milton Keynes. The apartment is in excellent condition and benefits from a balcony. The location is convenient with nearby schools and transportation links. However, the plot size is 0 sqft. The price seems reasonable compared to similar properties in the area, although the average price per sqft is higher than for other properties in the area. More information on the size of the property would improve the analysis.
Therefore, we give this property 6 / 10. *Disclaimer: This is our option and does constitute a recommendation or financial advice. Do your own research. *
- Price
- 7
- Condition
- 10
- Location
- 7
- Land
- 1
- Bedrooms
- 2
- Bathrooms
- 2
- Sqft (est)
- 544.65
The heatmap indicates the level of crime in the area. The color of the heatmap indicates the crime severity and recency.
Metrics Year-on-Year
- Average area value
- 348,411.00 £Increased by 3.55 %
- Est sale value
- 215,681.40 £Increased by 62.30 %
- Average area rental value
- 1,337.00 £/moDecreased by 15.06 %
- Est letting value
- 544.65 £/moUnchanged by 0.00 %
- Est rental Yield
- 4.60 %Decreased by 18.00 %
- Crime Rate
- 35.00 %Unchanged by 0.00 %
Agent Activity
Elevation created the listing.
Nearby Schools
| Name | Type | Ofsted | Distance |
|---|---|---|---|
| Middleton Primary School | Academy Converter | Outstanding | 0.51 KM |
| Oakgrove School | Academy Converter | Good | 0.78 KM |
| St Bernadette'S Catholic Primary School | Voluntary Aided School | Requires improvement | 0.99 KM |
| Kents Hill Park All-Through School | Free Schools | 1.60 KM | |
| The Open University | Higher Education Institutions | Good | 1.82 KM |
Images
Nearby Streets
| Name | Average Price | Average Sqft | Distance |
|---|---|---|---|
| Finch Close | £ 0 | 0 | 0.00 KM |
| Manor Close | £ 0 | 0 | 0.00 KM |
| Keighley Close | £ 0 | 0 | 0.00 KM |
| The Green | £ 0 | 0 | 0.00 KM |
| Weybourne Road | £ 0 | 0 | 0.00 KM |
Nearby Transport
| Name | NLC | TLC | Distance |
|---|---|---|---|
| Fenny Stratford | 1377 | FEN | 4.43 KM |
| Bow Brickhill | 1381 | BWB | 4.55 KM |
| Bletchley | 1360 | BLY | 5.43 KM |
| Milton Keynes Central | 1378 | MKC | 6.42 KM |
| Woburn Sands | 1539 | WOB | 7.30 KM |
Nearby Listings
| Address | Price | Type | Score | Distance |
|---|---|---|---|---|
| Acorn Lodge, 1 Pascal Mews, Oakgrove, MK10 | £ 275,000 | BUY | 6 / 10 | 0.00 KM |
| Atlas Way, Oakgrove, Milton Keynes | £ 279,999 | BUY | 6 / 10 | 0.00 KM |
| Atlas Way, Oakgrove, Milton Keynes, Buckinghamshire, MK10 | £ 230,000 | BUY | 6 / 10 | 0.03 KM |
| Atlas Way, Oakgrove, Milton Keynes, MK10 | £ 299,995 | BUY | 5 / 10 | 0.04 KM |
| Atlas Way, Oakgrove, Milton Keynes, MK10 | £ 265,000 | BUY | Unknown | 0.04 KM |
Nearby Properties
| Address | Price | Distance |
|---|---|---|
| 18 Eclipse Avenue | £ 473,000 | 0.13 KM |
| 16 Eclipse Avenue | £ 295,000 | 0.13 KM |
| 12 Eclipse Avenue | £ 375,000 | 0.13 KM |
| 11 Kernal Close | £ 499,950 | 0.15 KM |
| 4 Kernal Close | £ 530,000 | 0.15 KM |