Coombe Park Lane, Plymouth, Devon, PL5
By Homewise
£ 120,500
Reviews
3 out of 5 stars
Homewise says ..
Guide price for a Home for Life Lifetime Lease for OVER 60s tailored to your personal circumstances and requirements. Your price may vary. OVER 60S could benefit from SAVINGS of up to 59% from the market value with a one-off payment for a Lifetime Lease on this property. £12...
Property Oracle says ..
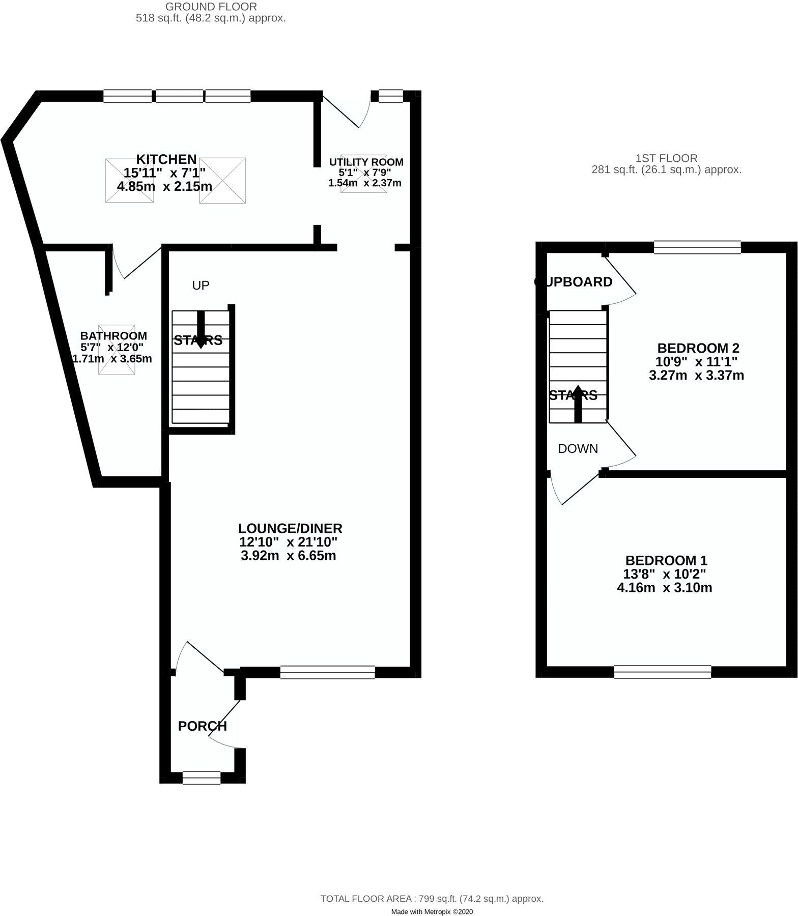
This end-of-terrace property is located in Honicknowle, Plymouth. It features two bedrooms and one bathroom, with a total square footage of 798.68 sqft. The property includes a garden with a shed and a patio area. Nearby amenities include Knowle Primary School (rated ‘Good’ by Ofsted) and several transportation links, including St Budeaux Ferry Road train station. The interior of the property appears to be in good condition, with a modern kitchen and bathroom. The asking price of £120,500 appears to be competitive compared to the average property price in the area.
Therefore, we give this property 7 / 10. *Disclaimer: This is our option and does constitute a recommendation or financial advice. Do your own research. *
- Price
- 8
- Condition
- 7
- Location
- 6
- Land
- 7
- Bedrooms
- 2
- Bathrooms
- 1
- Sqft (est)
- 798.68
The heatmap indicates the level of crime in the area. The color of the heatmap indicates the crime severity and recency.
Metrics Year-on-Year
- Average area value
- 220,976.00 £Increased by 11.12 %
- Est sale value
- 234,811.92 £Increased by 25.64 %
- Average area rental value
- 989.00 £/moIncreased by 15.54 %
- Est letting value
- 798.68 £/moUnchanged by 0.00 %
- Est rental Yield
- 5.37 %Increased by 3.87 %
- Crime Rate
- 5.00 %Unchanged by 0.00 %
Agent Activity
Homewise created the listing.
Nearby Schools
| Name | Type | Ofsted | Distance |
|---|---|---|---|
| Sure Start Four Woods Children'S Centre | Children's Centre | 0.16 KM | |
| Knowle Primary School | Academy Converter | Good | 0.51 KM |
| Mill Ford School | Community Special School | Good | 0.87 KM |
| Ernesettle Community School | Academy Converter | Outstanding | 0.89 KM |
| St Budeaux Foundation Cofe (Aided) Junior School | Voluntary Aided School | Good | 1.11 KM |
Images
Nearby Streets
| Name | Average Price | Average Sqft | Distance |
|---|---|---|---|
| Blackthorn Close | £ 0 | 0 | 0.00 KM |
| Marldon Close | £ 130,000 | 0 | 0.00 KM |
| Kinsale Road | £ 0 | 0 | 0.00 KM |
| Carbis Close | £ 131,250 | 0 | 0.00 KM |
| Horsham Lane | £ 0 | 0 | 0.00 KM |
Nearby Transport
| Name | NLC | TLC | Distance |
|---|---|---|---|
| St Budeaux Ferry Road | 3590 | SBF | 2.57 KM |
| St Budeaux Victoria Road | 3592 | SBV | 2.60 KM |
| Keyham | 3571 | KEY | 2.85 KM |
| Dockyard (Devonport) | 3588 | DOC | 3.46 KM |
| Devonport | 3579 | DPT | 3.72 KM |
Nearby Listings
| Address | Price | Type | Score | Distance |
|---|---|---|---|---|
| Coombe Park Lane, Plymouth, Devon, PL5 | £ 120,500 | BUY | 7 / 10 | 0.00 KM |
| Coombe Park Lane, Plymouth | £ 210,000 | BUY | 5 / 10 | 0.00 KM |
| Coombe Park Lane, Plymouth, Devon | £ 170,000 | BUY | 6 / 10 | 0.01 KM |
| Coombe Park Lane, Honicknowle, Plymouth | £ 180,000 | BUY | 7 / 10 | 0.07 KM |
| Wanstead Grove, Plymouth, Devon | £ 200,000 | BUY | 6 / 10 | 0.08 KM |
Nearby Properties
| Address | Price | Distance |
|---|---|---|
| 76 Coombe Park Lane | £ 170,000 | 0.00 KM |
| 29 Coombe Park Lane | £ 245,000 | 0.00 KM |
| 25 Coombe Park Lane | £ 52,000 | 0.00 KM |
| 70 Coombe Park Lane | £ 111,500 | 0.00 KM |
| 64 Coombe Park Lane | £ 142,500 | 0.00 KM |