Kensington Road, York
By Ashtons Estate Agents
£ 340,000
Reviews
3 out of 5 stars
Ashtons Estate Agents says ..
Tucked away at the end of a peaceful cul-de-sac, this well presented home enjoys a fantastic position within a popular and highly convenient residential area. With local amenities close by, excellent transport links and easy access to the city centre, it offers a great opportunity for families or...
Property Oracle says ..
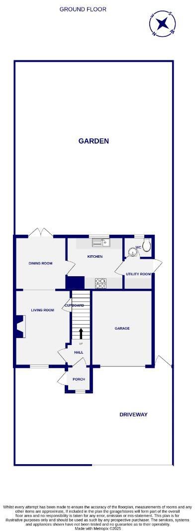
This is a detached property located on Kensington Road in York. It features three bedrooms and one bathroom, with a total square footage of 1,117 sqft. The property includes a garden and a garage, adding to its appeal. While the house is in reasonable condition, it would benefit from some modernisation, particularly in the kitchen and bathrooms. The location is convenient, with nearby schools and transportation options. The asking price of £340,000 appears competitive compared to the average property prices in the area, making it an attractive opportunity for potential buyers willing to invest in some updates.
Therefore, we give this property 7 / 10. *Disclaimer: This is our option and does constitute a recommendation or financial advice. Do your own research. *
- Price
- 8
- Condition
- 6
- Location
- 7
- Land
- 7
- Bedrooms
- 3
- Bathrooms
- 1
- Sqft (est)
- 1,117.00
The heatmap indicates the level of crime in the area. The color of the heatmap indicates the crime severity and recency.
Metrics Year-on-Year
- Average area value
- 591,875.00 £Increased by 5.13 %
- Est sale value
- 532,809.00 £Decreased by 6.47 %
- Average area rental value
- 1,194.00 £/moDecreased by 3.63 %
- Est letting value
- 0.00 £/moDecreased by 100.00 %
- Est rental Yield
- 2.42 %Decreased by 8.33 %
- Crime Rate
- 3.00 %Unchanged by 0.00 %
Agent Activity
Ashtons Estate Agents created the listing.
Nearby Schools
| Name | Type | Ofsted | Distance |
|---|---|---|---|
| Clifton With Rawcliffe Primary School | Academy Converter | Good | 1.08 KM |
| Skelton Primary School | Academy Converter | 1.72 KM | |
| Lakeside Primary Academy | Academy Converter | 1.78 KM | |
| Vale Of York Academy | Academy Sponsor Led | Good | 2.43 KM |
| Manor Church Of England Academy | Academy Converter | 2.43 KM |
Images
Nearby Streets
| Name | Average Price | Average Sqft | Distance |
|---|---|---|---|
| Hatfield Close | £ 0 | 0 | 0.00 KM |
| Coniston Close | £ 330,000 | 0 | 0.00 KM |
| St. James Close Footpath | £ 375,000 | 0 | 0.00 KM |
| St. James Close | £ 0 | 0 | 0.00 KM |
| Hurricane Way | £ 0 | 0 | 0.00 KM |
Nearby Transport
| Name | NLC | TLC | Distance |
|---|---|---|---|
| Poppleton | 8254 | POP | 3.49 KM |
| York | 8263 | YRK | 4.40 KM |
Nearby Listings
| Address | Price | Type | Score | Distance |
|---|---|---|---|---|
| Kensington Road, York | £ 340,000 | BUY | 7 / 10 | 0.00 KM |
| Kensington Road, York, North Yorkshire, YO30 | £ 340,000 | BUY | Unknown | 0.02 KM |
| Manor Lane, York | £ 525,000 | BUY | Unknown | 0.10 KM |
| Kensington Road, Rawcliffe, York, YO30 | £ 420,000 | BUY | 6 / 10 | 0.10 KM |
| Eva Avenue, Rawcliffe | £ 475,000 | BUY | 7 / 10 | 0.16 KM |
Nearby Properties
| Address | Price | Distance |
|---|---|---|
| 11 Kensington Road | £ 255,000 | 0.02 KM |
| 39 Kensington Road | £ 205,000 | 0.02 KM |
| 34 Kensington Road | £ 195,000 | 0.02 KM |
| 42 Kensington Road | £ 264,000 | 0.02 KM |
| 15 Kensington Road | £ 235,000 | 0.02 KM |