Chancellors says ..
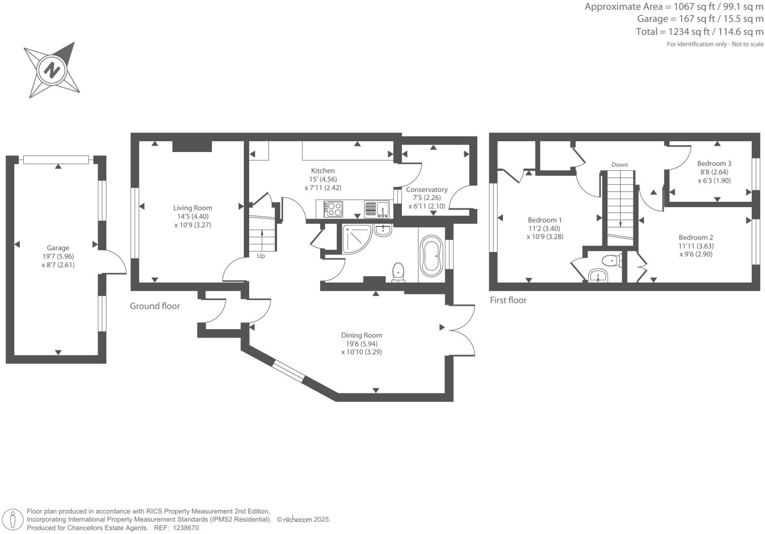
A Three bedroom Semi Detached house that has been extended on the ground floor Downstairs you have in addition to two receptions a downstairs cloakroom . This property also has a great benefit it in being sold with additonal land to the side so has further opportunities to expand STTP
Property Oracle says ..
This three-bedroom semi-detached house in Church Crookham, Fleet, Hampshire, offers a comfortable family home. Located on Coxmoor Close, the property is within walking distance to local shops and schools, benefitting from proximity to Velmead Common. Several outstanding-rated primary schools are nearby. The commute to Fleet and other major towns is also convenient with multiple railway stations within a short driving distance.
The property features a modern fitted kitchen, offering good functionality and appliances. The interior seems functional but could benefit from some cosmetic updates, such as fresh décor and new floor coverings in certain rooms. The garden is a modest size but offers some outdoor space, while the presence of a garage is an added benefit.
The listing price of £500,000 should be considered in the context of other properties in the local area, particularly similar sized and styled semi-detached homes in Church Crookham. A thorough comparison with these comparables is recommended to ascertain the precise value for money. Whilst the property sits within a desirable location and presents a functional living space, the condition and land size may not entirely justify a premium valuation compared to some other homes available in the vicinity. In summary, this property is a reasonable option for buyers looking for a family home in a convenient location, but potential purchasers should conduct further comparative market analysis to confirm the list price is aligned with their expectations given the property’s precise condition and features.
Therefore, we give this property 6 / 10. *Disclaimer: This is our option and does constitute a recommendation or financial advice. Do your own research. *
- Price
- 7
- Condition
- 6
- Location
- 7
- Land
- 4
- Bedrooms
- 3
- Bathrooms
- 2
- Sqft (est)
- 1,234.00
The heatmap indicates the level of crime in the area. The color of the heatmap indicates the crime severity and recency.
Metrics Year-on-Year
- Average area value
- 239,000.00 £Increased by 24.44 %
- Est sale value
- 331,946.00 £Increased by 15.95 %
- Average area rental value
- 850.00 £/moDecreased by 8.60 %
- Est letting value
- 0.00 £/moDecreased by 100.00 %
- Est rental Yield
- 4.27 %Decreased by 26.51 %
- Crime Rate
- 2.00 %Unchanged by 0.00 %
Agent Activity
Chancellors created the listing.
Nearby Schools
| Name | Type | Ofsted | Distance |
|---|---|---|---|
| Tweseldown Infant School | Community School | Outstanding | 0.92 KM |
| Wild Rose Children'S Centre | Children's Centre Linked Site | 0.92 KM | |
| Church Crookham Junior School | Community School | Outstanding | 1.05 KM |
| Velmead Junior School | Community School | Good | 1.06 KM |
| Fleet Infant School | Community School | Outstanding | 1.08 KM |
Images
Nearby Streets
| Name | Average Price | Average Sqft | Distance |
|---|---|---|---|
| Gordon Avenue | £ 550,000 | 0 | 0.00 KM |
| Hamilton Road | £ 0 | 0 | 0.00 KM |
| Redwoods Lane | £ 0 | 0 | 0.00 KM |
| Kenmore Close | £ 925,000 | 0 | 0.00 KM |
| Foxcroft | £ 0 | 0 | 0.00 KM |
Nearby Transport
| Name | NLC | TLC | Distance |
|---|---|---|---|
| Fleet | 5522 | FLE | 2.92 KM |
| Farnham | 5545 | FNH | 6.92 KM |
| Aldershot | 5623 | AHT | 7.49 KM |
| Farnborough (Main) | 5521 | FNB | 8.43 KM |
| Blackwater | 5625 | BAW | 9.13 KM |
Nearby Listings
| Address | Price | Type | Score | Distance |
|---|---|---|---|---|
| Fleet, Hampshire, GU52 | £ 500,000 | BUY | 6 / 10 | 0.00 KM |
| Coxmoor Close, Church Crookham, Hampshire, GU52 | £ 250,000 | BUY | 5 / 10 | 0.06 KM |
| Coxmoor Close, Church Crookham, Fleet, Hampshire, GU52 | £ 270,000 | BUY | 6 / 10 | 0.06 KM |
| Coxmoor Close, Fleet | £ 300,000 | BUY | 6 / 10 | 0.07 KM |
| Grove Road, Church Crookham, Fleet, Hampshire, GU52 | £ 435,000 | BUY | 7 / 10 | 0.14 KM |
Nearby Properties
| Address | Price | Distance |
|---|---|---|
| 58 Coxmoor Close | £ 220,000 | 0.06 KM |
| 64 Coxmoor Close | £ 154,000 | 0.06 KM |
| 50 Coxmoor Close | £ 210,000 | 0.06 KM |
| 60 Coxmoor Close | £ 177,500 | 0.06 KM |
| 52 Coxmoor Close | £ 138,000 | 0.06 KM |