Lon-y-gors, Caerphilly, Caerphilly (County of), CF83
By Cariad Property
£ 250,000
Reviews
3 out of 5 stars
Cariad Property says ..
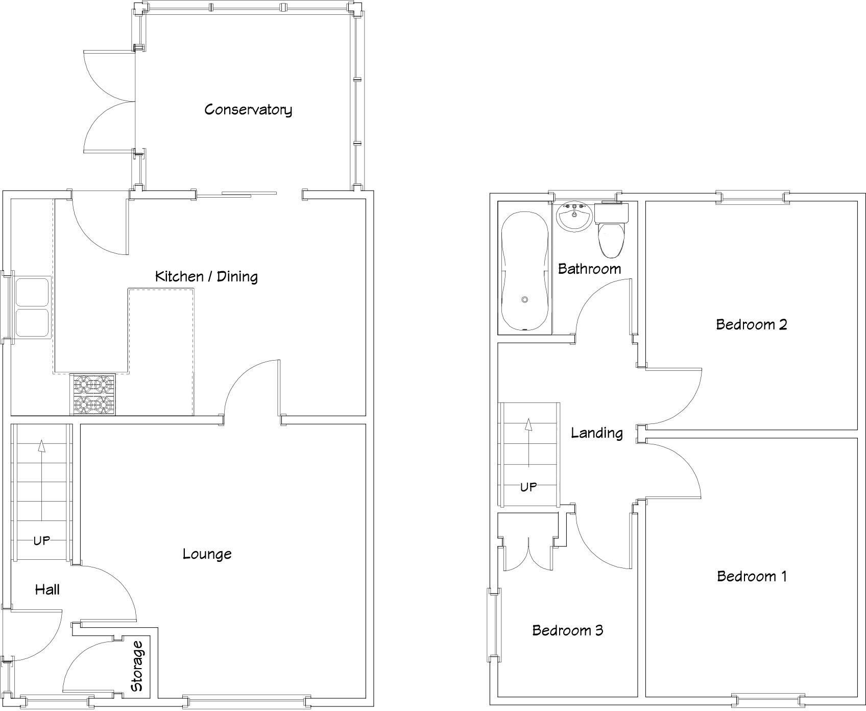
A HOUSE WITH A GARDEN OR A GARDEN WITH A HOUSE! This super three-bedroom property is set in a gloriously large corner plot, with a huge garden and a garage. Spacious inside, light and airy, a sought-after location and chain free.
Property Oracle says ..
This property is a 3-bedroom semi-detached house located in St. Martins, Caerphilly. The location benefits from relatively close proximity to several primary and secondary schools, as well as train stations. The property itself appears to be in need of some modernisation and updating, as evidenced in the provided images. The kitchen and bathroom, in particular, show signs of age and wear. The property includes a garden and a detached garage. While the list price is below the average price for the area, the condition of the property needs to be factored in when considering value for money.
Therefore, we give this property 6 / 10. *Disclaimer: This is our option and does constitute a recommendation or financial advice. Do your own research. *
- Price
- 6
- Condition
- 5
- Location
- 7
- Land
- 6
- Bedrooms
- 3
- Bathrooms
- 1
- Sqft (est)
- 1,225.00
The heatmap indicates the level of crime in the area. The color of the heatmap indicates the crime severity and recency.
Metrics Year-on-Year
- Average area value
- 303,119.00 £Decreased by 0.49 %
- Est sale value
- 324,625.00 £Decreased by 5.36 %
- Average area rental value
- 388.00 £/moDecreased by 58.90 %
- Est letting value
- 0.00 £/mo
- Est rental Yield
- 1.54 %Decreased by 58.60 %
- Crime Rate
- 0.00 %
Agent Activity
Cariad Property created the listing.
Nearby Schools
| Name | Type | Ofsted | Distance |
|---|---|---|---|
| Cwrt Rawlin Primary School | Welsh Establishment | 0.69 KM | |
| Hendre Junior School | Welsh Establishment | 0.99 KM | |
| Hendre Infants School | Welsh Establishment | 0.99 KM | |
| St Cenydd School | Welsh Establishment | 1.14 KM | |
| Ysgol Gynradd Gymraeg Y Castell | Welsh Establishment | 1.23 KM |
Images
Nearby Streets
| Name | Average Price | Average Sqft | Distance |
|---|---|---|---|
| Lon-Y-Waun | £ 265,000 | 0 | 0.00 KM |
| Lon-Y-Llyn | £ 245,000 | 0 | 0.00 KM |
| Lôn y Deri | £ 0 | 0 | 0.00 KM |
| Heol-yr-Ysbyty | £ 395,000 | 0 | 0.00 KM |
| Herons Way | £ 0 | 0 | 0.00 KM |
Nearby Transport
| Name | NLC | TLC | Distance |
|---|---|---|---|
| Aber | 3813 | ABE | 0.70 KM |
| Energlyn And Churchill Park | 375 | ECP | 1.38 KM |
| Caerphilly | 3812 | CPH | 1.92 KM |
| Llanbradach | 4018 | LNB | 3.38 KM |
| Taffs Well | 3880 | TAF | 4.66 KM |
Nearby Listings
| Address | Price | Type | Score | Distance |
|---|---|---|---|---|
| Lon-y-gors, Caerphilly, Caerphilly (County of), CF83 | £ 250,000 | BUY | 6 / 10 | 0.00 KM |
| Lon-Y-Gors, Caerphilly, CF83 | £ 280,000 | BUY | Unknown | 0.02 KM |
| Lon-y-Waun, Caerphilly, CF83 | £ 250,000 | BUY | 6 / 10 | 0.09 KM |
| Lon-y-gors, Caerphilly, CF83 | £ 280,000 | BUY | 7 / 10 | 0.10 KM |
| Sunningdale, Caerphilly, CF83 1BB | £ 350,000 | BUY | 6 / 10 | 0.15 KM |
Nearby Properties
| Address | Price | Distance |
|---|---|---|
| 9 Lon Y Gors | £ 132,500 | 0.00 KM |
| 5 Lon Y Gors | £ 175,500 | 0.00 KM |
| 12 Lon Y Gors | £ 185,000 | 0.00 KM |
| 23 Lon Y Gors | £ 215,000 | 0.00 KM |
| 24 Lon Y Gors | £ 225,000 | 0.00 KM |