Wellstead Avenue, London, N9
By Knights Residential
£ 385,000
Reviews
3 out of 5 stars
Knights Residential says ..
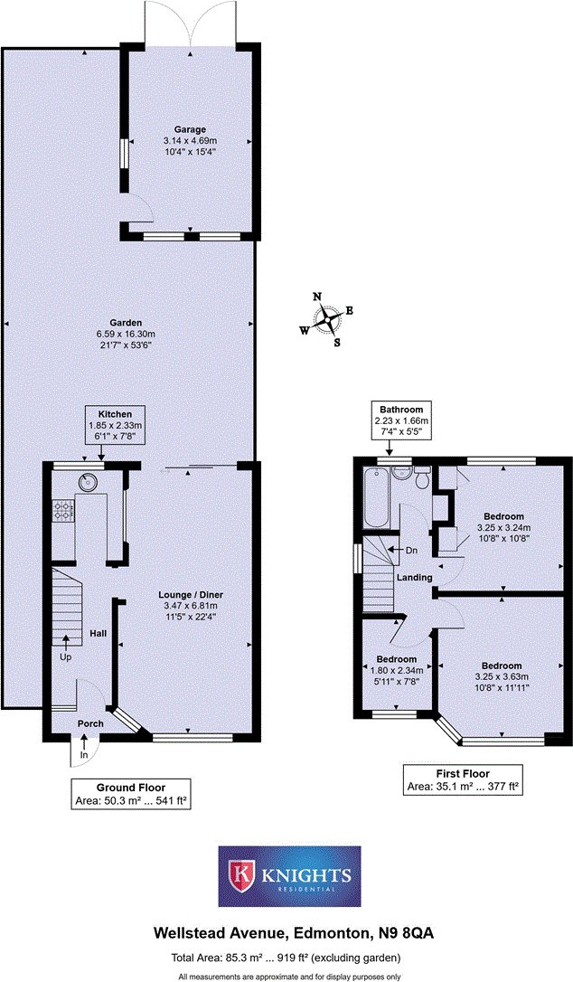
CHAIN FREE! Knights are delighted to present this three bedroom end-of-terrace property, conveniently located within close proximity to Ponders End & Southbury Train Station. This property boasts a wealth of desirable features to include; three bedrooms, spacious through lounge, garden with s...
Property Oracle says ..
This three-bedroom semi-detached house in Enfield, London, presents a mixed bag of opportunities and challenges. The property’s location is a definite plus, offering a balance between suburban tranquility and convenient access to transport links and local amenities. The presence of several schools nearby enhances its appeal to families. However, the property is in need of significant modernisation and refurbishment. The interior decor is dated, and the exterior landscaping requires attention. While the photos show a structurally sound building, potential buyers should budget for substantial renovation costs. The property’s large garden is a significant asset, offering considerable potential for landscaping and outdoor living. The inclusion of a shed/outbuilding adds further value. While the list price of £385,000 seems reasonable in the context of the London property market, a comprehensive survey and detailed cost estimate for renovations are crucial before making an offer. The lack of precise square footage data for comparable properties makes a definitive price-per-square-foot comparison challenging. Overall, this property offers potential for a buyer willing to undertake a renovation project and invest time and resources into transforming it into a desirable family home.
Therefore, we give this property 6 / 10. *Disclaimer: This is our option and does constitute a recommendation or financial advice. Do your own research. *
- Price
- 7
- Condition
- 4
- Location
- 6
- Land
- 7
- Bedrooms
- 3
- Bathrooms
- 1
- Sqft (est)
- 918.16
The heatmap indicates the level of crime in the area. The color of the heatmap indicates the crime severity and recency.
Metrics Year-on-Year
- Average area value
- 343,000.00 £Increased by 16.89 %
- Est sale value
- 460,916.32 £Increased by 61.94 %
- Average area rental value
- 1,405.00 £/moDecreased by 5.00 %
- Est letting value
- 1,836.32 £/moIncreased by 100.00 %
- Est rental Yield
- 4.92 %Decreased by 18.68 %
- Crime Rate
- 4.00 %Unchanged by 0.00 %
Agent Activity
Knights Residential created the listing.
Nearby Schools
| Name | Type | Ofsted | Distance |
|---|---|---|---|
| Delta Primary School | Academy Converter | 0.35 KM | |
| Wren Academy Enfield | Free Schools | 0.47 KM | |
| Aim Academy North London | Academy Sponsor Led | 0.47 KM | |
| Woodpecker Hall Primary Academy | Free Schools | Good | 0.47 KM |
| St Alpheges Children'S Centre | Children's Centre Linked Site | 0.95 KM |
Images
Nearby Streets
| Name | Average Price | Average Sqft | Distance |
|---|---|---|---|
| St Michaels Avenue | £ 0 | 0 | 0.00 KM |
| Wren Close | £ 0 | 0 | 0.00 KM |
| Clifford Road | £ 0 | 0 | 0.00 KM |
| Scarborough Road | £ 0 | 0 | 0.00 KM |
| Goodwin Road | £ 460,000 | 0 | 0.00 KM |
Nearby Transport
| Name | NLC | TLC | Distance |
|---|---|---|---|
| Ponders End | 6819 | PON | 1.17 KM |
| Southbury | 6947 | SBU | 1.98 KM |
| Edmonton Green | 6941 | EDR | 2.36 KM |
| Angel Road | 6909 | AGR | 2.55 KM |
| Brimsdown | 6810 | BMD | 2.67 KM |
Nearby Listings
| Address | Price | Type | Score | Distance |
|---|---|---|---|---|
| Wellstead Avenue, London, N9 | £ 500,000 | BUY | Unknown | 0.00 KM |
| Wellstead Avenue , London, N9 | £ 480,000 | BUY | Unknown | 0.00 KM |
| Wellstead Avenue, Edmonton | £ 439,950 | BUY | 6 / 10 | 0.00 KM |
| Shirley Grove, Edmonton, N9 | £ 435,000 | BUY | 5 / 10 | 0.12 KM |
| Winton Close, Edmonton | £ 439,950 | BUY | 7 / 10 | 0.12 KM |
Nearby Properties
| Address | Price | Distance |
|---|---|---|
| 73 Wellstead Avenue | £ 158,000 | 0.01 KM |
| 29 Wellstead Avenue | £ 327,000 | 0.01 KM |
| 77 Wellstead Avenue | £ 405,000 | 0.01 KM |
| 7 Wellstead Avenue | £ 60,000 | 0.01 KM |
| 1 Wellstead Avenue | £ 173,000 | 0.01 KM |